Büros
ID B3043Provisionsfrei
Aktualisiert
Büroimmobilie - Leipzig, Plagwitz - B3043
Plagwitz, 04179, Leipzig, Sachsen
9 € / m²
- Fläche1.000 m²
- VerfügbarkeitIV quartal 2026
- Objekt
- Ausstattung
- Lage und Verkehrsanbindung
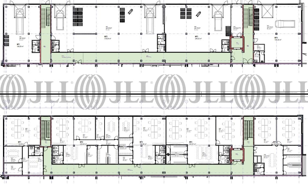
- Grundrisse
- Exposé herunterladen
- Ihr Kontakt
- Anfrage senden
Objekt
Der zweigeschossiger Anbau NEXT 360 ergänzt die innovative Projektentwicklung CUBE 360 und wird nach energetischer Sanierung ab dem zweiten Quartal 2026 bezugsfertig sein. Das Gebäude bietet eine Gesamtanmietfläche von ca. 2.000 m² (2.300 m² bei Single-Tenant Nutzung), davon ca. 1.000 m² Bürofläche.
Im Erdgeschoss stehen bei Bedarf Hallen- und Lagerflächen zur Verfügung. Denkbare Nutzungsmöglichkeiten für diese Fläche sind u.a. die Nutzung als Werkstatt, für Last Mile Logistik oder Labore. Das EG ist über Sektionaltore erschlossen und befahrbar (Deckenhöhe ca. 4,30 m (Rohdecke), Bodentraglasten bis 10,00 kN/m², Angebotsmiete ab 8,00 €).
Im Obergeschoss befinden sich Büroflächen im Rohbau. Eine Kombination aus Erdgeschoss Werkstatt/Produktion und Büronutzung im Obergeschoss ist durch eine innere Erschließung realisierbar. Der Ausbau nach Mieterwunsch ist gegen Aufpreis möglich.
Im Erdgeschoss stehen bei Bedarf Hallen- und Lagerflächen zur Verfügung. Denkbare Nutzungsmöglichkeiten für diese Fläche sind u.a. die Nutzung als Werkstatt, für Last Mile Logistik oder Labore. Das EG ist über Sektionaltore erschlossen und befahrbar (Deckenhöhe ca. 4,30 m (Rohdecke), Bodentraglasten bis 10,00 kN/m², Angebotsmiete ab 8,00 €).
Im Obergeschoss befinden sich Büroflächen im Rohbau. Eine Kombination aus Erdgeschoss Werkstatt/Produktion und Büronutzung im Obergeschoss ist durch eine innere Erschließung realisierbar. Der Ausbau nach Mieterwunsch ist gegen Aufpreis möglich.
Zertifizierungen
Energieausweis
DGNB: GoldVerfügbare Fläche
Lage und Verkehrsanbindung
Das Objekt befindet sich in einem innerstädtischen Gewerbegebiet im Westen Leipzigs. Die Erschließung der Liegenschaft erfolgt über die Saarländer Straße. Im Umfeld haben sich innovative und etablierten Unternehmen angesiedelt. Zu den prominenten Nachbarn zählen die SENEC GmbH, ein führender Anbieter von Energiespeicherlösungen, sowie die Techne Kirow GmbH, ein weltweit agierender Spezialist für Eisenbahnkrane und Transporttechnologie. Die historische Leipziger Baumwollspinnerei, heute ein pulsierendes Zentrum für Kunst und Kultur, verleiht dem Gebiet zusätzlichen Charme und Charakter. Der grüne Bürgerbahnhof Plagwitz, ein Beispiel für gelungene Stadtentwicklung und Bürgerbeteiligung, rundet das vielfältige Umfeld ab. Diese Mischung aus Industrie, Innovation, Kultur und Nachhaltigkeit macht den Standort besonders reizvoll für Unternehmen verschiedener Branchen. Die Lage bietet optimale Voraussetzungen für Geschäftswachstum und Netzwerkbildung in einem dynamischen wirtschaftlichen Umfeld.
- Straßenbahn/Tram, Diezmannstraße, Linien 1, 2, Gehzeit: 3 min
- Bus, Siemensstraße, Linie 60, Gehzeit: 10 min
- S-Bahn, Plagwitz, Gehzeit: 10 min
Ihr Kontakt

Kay Förster
Ihr Kontakt





