Büros
ID B3033Provisionsfrei
Büroimmobilie - Leipzig, Zentrum - B3033
Zentrum, 04103, Leipzig, Sachsen
22 € / m²
- Fläche112 - 5.520 m²
- VerfügbarkeitSofort
- Objekt
- Ausstattung
- Lage und Verkehrsanbindung
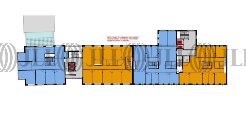
- Grundrisse
- Exposé herunterladen
- Ihr Kontakt
- Anfrage senden
Objekt
Mitte 2025 entstanden in unmittelbarer Nähe zur Leipziger Innenstadt repräsentative Neubauflächen. Zur Verfügung stehen Gewerbeflächen im Bauteil 1 (EG – DG) und im gesamten Bauteil 2 (Fertigstellung Q2/ 2026). Im Bauteil 1 befinden sich auf dem Erdgeschoss und 1. OG bereits etablierte Arztpraxen. Die Etage 5 des Bauteils 1, sowie die Etagen 4 & 5 des Bauteils 2 sind mit Terrassen ausgestattet.
Das Highlight dieser Immobilie ist zweifellos ihre herausragende Energieeffizienz. Die Gebäude sind mit der neuesten und fortschrittlichsten Technik ausgestattet. Eine innovative Geothermikanlage sorgt ganzjährig für wohltemperierte Räume - im Winter wird geheizt, im Sommer gekühlt.
Durch eine auf dem Gelände installierte Photovoltaik-Anlage wird der Strom für die Anlage nahezu autark erzeugt. Das resultiert in deutlich geringeren Nebenkosten.
Die Flächen werden zu einem Angebotspreis ab 22,00 €/m² komplett ausgebaut angeboten. Sonderausbauwünsche können unter Umständen berücksichtigt werden. Ein Glasfaseranschluss ist vorhanden.
Beide Gebäudeteile verfügen über eine Tiefgarage, die weiteren Komfort bietet. Dieses Angebot stellt eine einzigartige Gelegenheit dar, hochmoderne und energieeffiziente Gewerbeflächen zu beziehen.
Das Highlight dieser Immobilie ist zweifellos ihre herausragende Energieeffizienz. Die Gebäude sind mit der neuesten und fortschrittlichsten Technik ausgestattet. Eine innovative Geothermikanlage sorgt ganzjährig für wohltemperierte Räume - im Winter wird geheizt, im Sommer gekühlt.
Durch eine auf dem Gelände installierte Photovoltaik-Anlage wird der Strom für die Anlage nahezu autark erzeugt. Das resultiert in deutlich geringeren Nebenkosten.
Die Flächen werden zu einem Angebotspreis ab 22,00 €/m² komplett ausgebaut angeboten. Sonderausbauwünsche können unter Umständen berücksichtigt werden. Ein Glasfaseranschluss ist vorhanden.
Beide Gebäudeteile verfügen über eine Tiefgarage, die weiteren Komfort bietet. Dieses Angebot stellt eine einzigartige Gelegenheit dar, hochmoderne und energieeffiziente Gewerbeflächen zu beziehen.
Verfügbare Fläche
Lage und Verkehrsanbindung
Das Objekt liegt inmitten des traditionsreichen "Graphischen Viertels" östlich des Leipziger Zentrums. Der Standort zeichnet sich durch sehr aufwendig sanierte Bürogebäude und Stadtvillen sowie repräsentative Neubauten aus. Das Brockhaus-Zentrum, das Seemann-Karreé und das Atrium sind nur einige namenhafte Bauten dieses Viertels. Im näheren Umfeld befindet sich die Handwerkskammer, die Telekom- und die Postbank-Niederlassung. Das Stadtzentrum und der Hauptbahnhof können zu Fuß in lediglich 13 Minuten erreicht werden. Die B 2 verbindet das Objekt mit den Autobahnen A 9 und A 14. Haltestellen des ÖPNV befinden sich in direkter Umgebung. Kurzum dieser Bürostandort wird auch den höchsten Ansprüchen verkehrstechnischer Vernetzung gerecht.
- Hauptbahnhof, Hauptbahnhof Leipzig, Fahrzeit: 7 min
- S-Bahn, Hauptbahnhof Leipzig, Gehzeit: 13 min
- Bundesautobahn, A 14, Fahrzeit: 17 min
- Straßenbahn/Tram, Johannisplatz, Gehzeit: 5 min
- Bundesstraße, B 2, Fahrzeit: 5 min
- Flughafen, Leipzig / Halle , Fahrzeit: 22 min
Ihr Kontakt

Kay Förster
Ihr Kontakt




