Büros
ID B2997Provisionsfrei
Büroimmobilie - Leipzig, Zentrum - B2997
Zentrum, 04109, Leipzig, Sachsen
12,50 € / m²
- Fläche173 - 1.591 m²
- VerfügbarkeitSofort
- Objekt
- Ausstattung
- Lage und Verkehrsanbindung
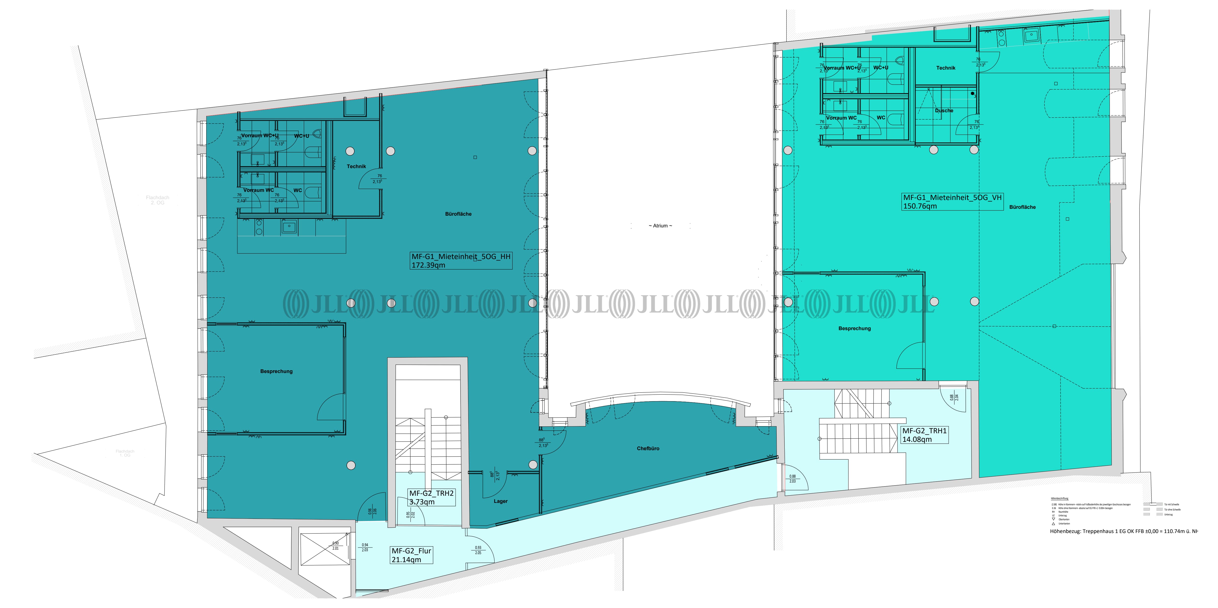
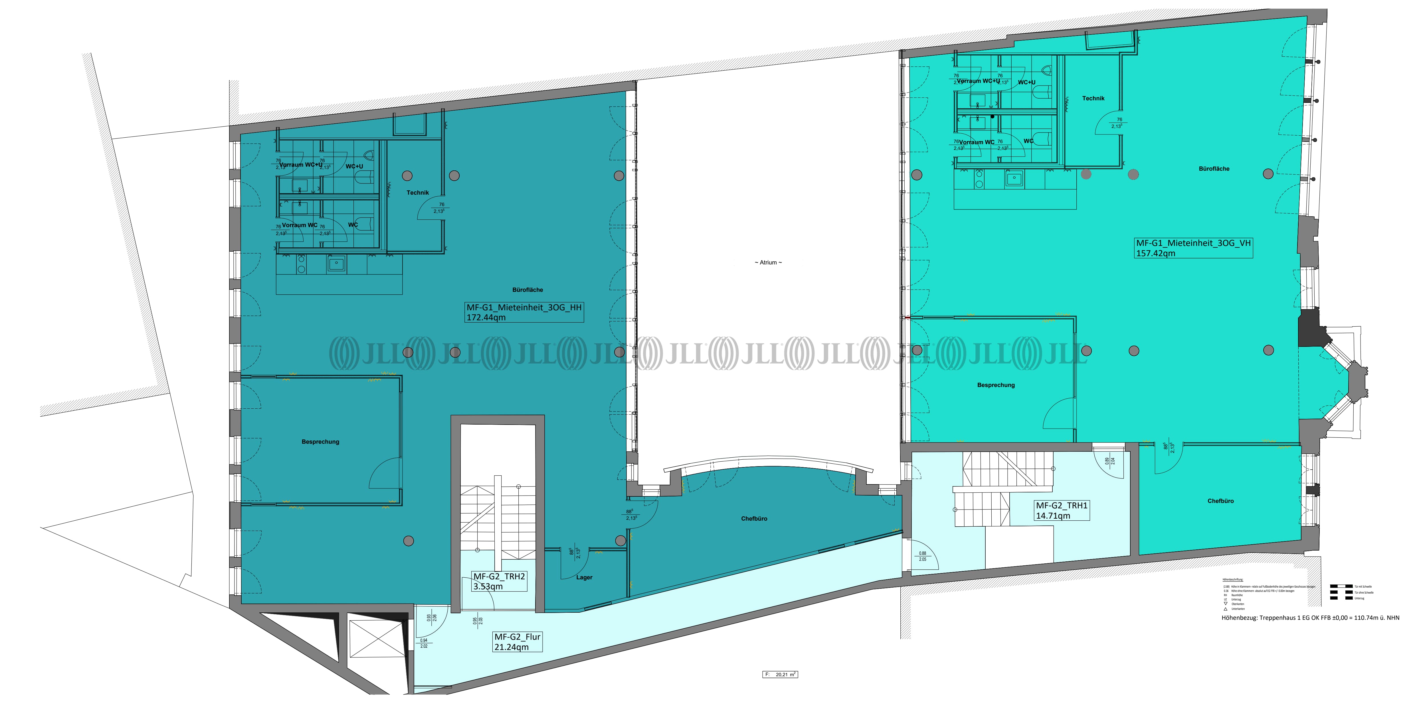
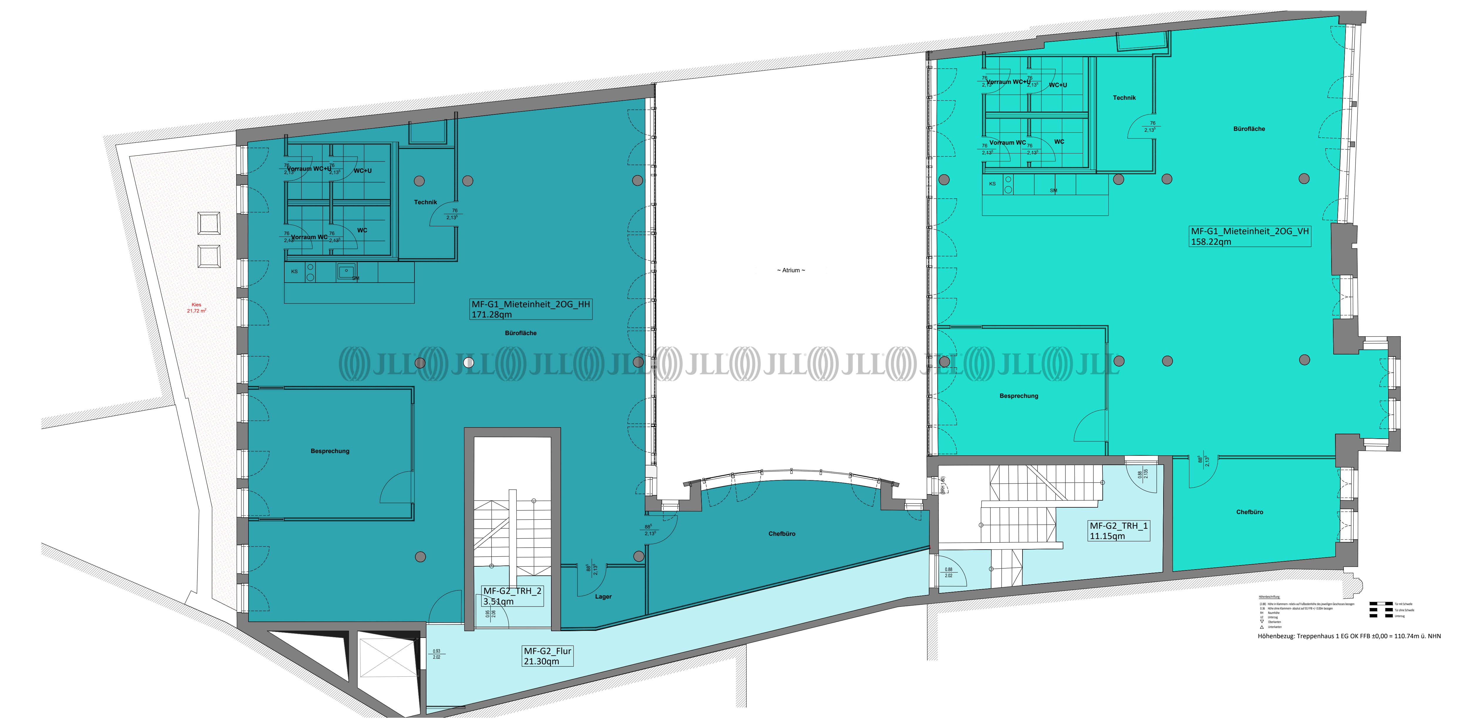
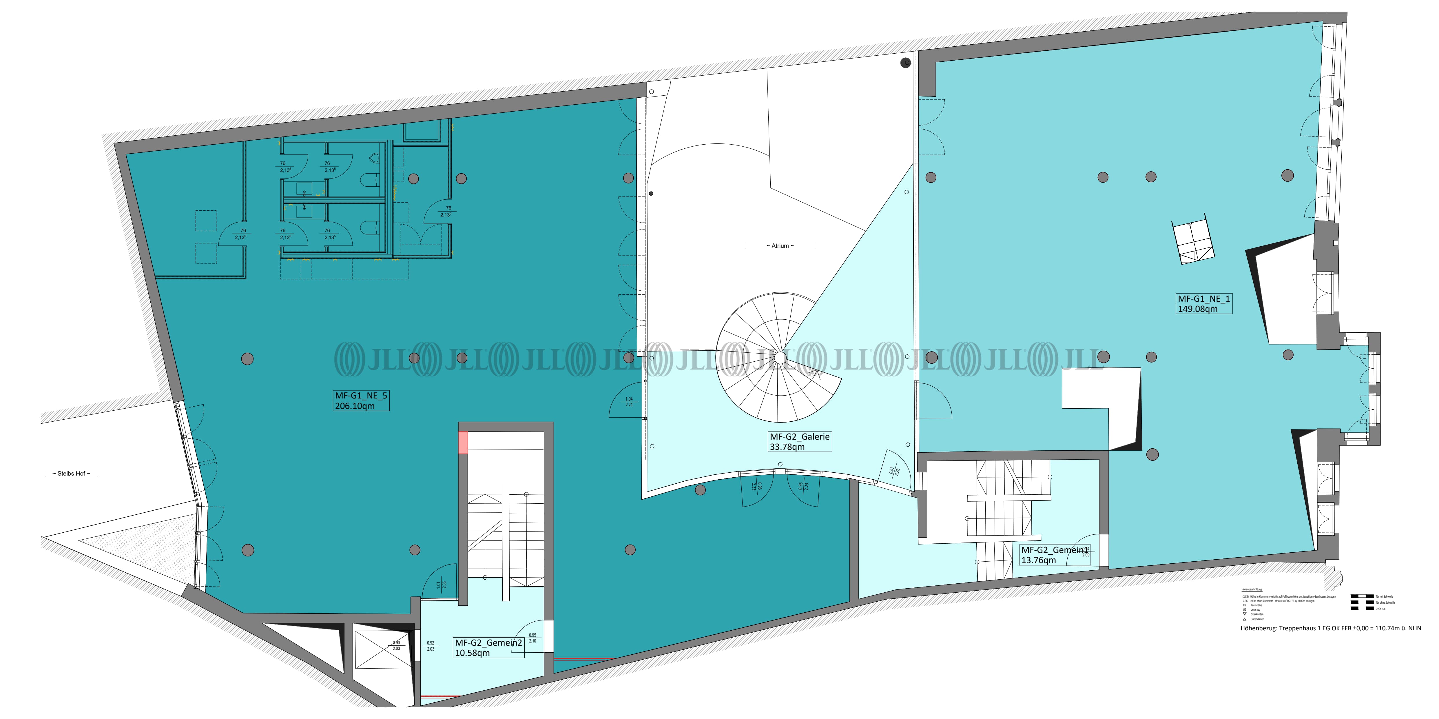
- Grundrisse
- Exposé herunterladen
- Ihr Kontakt
- Anfrage senden
Objekt
Die ehemalige Dussmann-Passage in Leipzig, eine sanierte Immobilie aus den 1990er Jahren, steht am Brühl in Blockrandbebauung und besticht durch ihren charakteristischen Industriebaucharakter. Dieses sechsgeschossige Gebäude mit einem kleineren Rechteckbau und einem schmalen Nebengebäude wurde ursprünglich als Pelzhaus genutzt. Ein besonderes Highlight dieser Passage ist der überglaste Innenhof, der reichlich Tageslicht in das Gebäudeinnere lässt und eine helle, freundliche Atmosphäre schafft. Darüber hinaus bietet die Passage eine Verbindung zum benachbarten Steibs Hof, was zusätzliche Nutzungs- und Erschließungsmöglichkeiten eröffnet. Die Gesamtmietfläche der Büros beläuft sich auf ca. 1.620 m² und bietet dadurch ausreichend Raum für verschiedene gewerbliche Nutzungen. Diese durchdacht sanierte Immobilie vereint historische Architektur mit modernen Elementen und bietet vielseitige Nutzungsmöglichkeiten in zentraler Leipziger Lage.
Die Gesamtgröße der Mietbereiche ist die Summe der angegebenen Mietflächen und der anteiligen Gemeinschafsfläche. Der finale Mietpreis richtet sich nach den gewünschten Grundrissanpassungen, mieterspezifischen Ausbauwünschen und der Vertragslaufzeit.
Die Gesamtgröße der Mietbereiche ist die Summe der angegebenen Mietflächen und der anteiligen Gemeinschafsfläche. Der finale Mietpreis richtet sich nach den gewünschten Grundrissanpassungen, mieterspezifischen Ausbauwünschen und der Vertragslaufzeit.
Zertifizierungen
Energieausweis
BREEAM: Very goodFür diese Liegenschaft liegt ein Bedarfsausweis vom 10.10.2023 vom Eigentümer/Vermieter vor. Der wesentliche Energieträger der Liegenschaft ist –. Der Endenergiebedarf Strom beträgt 26 kWh/(m²*a). Der Endenergiebedarf Wärme beträgt 305 kWh/(m²*a).
Verfügbare Fläche
Lage und Verkehrsanbindung
Die Leipziger Innenstadt zeichnet sich durch eine kompakte City mit sehr attraktiven Handelsstrukturen und einem Mix aus aufwendig sanierten Handelshöfen, Passagen und stilvollen Neubauten aus. Der „Brühl“ ist eine der ältesten Straßen Leipzigs. Sie liegt im Norden der Altstadt und ist fußläufig ca. 3 min vom Hauptbahnhof und ca. 6 min vom Leipziger Markt entfernt. Hier befindet sich die unterirdische Haltestelle der S-Bahn, die seit Ende 2013 die Leipziger Innenstadt mit ihrem mitteldeutschen Umfeld verbindet. Halle/Saale, Zwickau, Dessau und Hoyerswerda sind nunmehr umstandslos zu erreichen.
- Hauptbahnhof, Leipzig, Gehzeit: 4 min
- S-Bahn, Hauptbahnhof; Linien S2, S3, S4, Gehzeit: 4 min
- Straßenbahn/Tram, Hauptbahnhof, Linien 1,2,3,4,7,9,10,11,12,14,15,16, Gehzeit: 3 min
- Bus, Hauptbahnhof, Linien 72,73, Gehzeit: 3 min
- Bundesautobahn, A 14, Fahrzeit: 20 min
- Bundesautobahn, A 9, Fahrzeit: 30 min
- Flughafen, Leipzig/Halle, Fahrzeit: 25 min
Ihr Kontakt

Kay Förster
Ihr Kontakt
Marktinformationen
Mietmarkt
Zentrum, Leipzig
siehe 51 passende MietobjekteErfahren Sie mehr
* Durchschnittspreis auf Grundlage historischer Transaktionen.








