Büros
ID B2979Büroimmobilie - Berlin, Gesundbrunnen - B2979
Gesundbrunnen, 13355, Berlin, Berlin
Provisionspflichtig: bei Anmietung 3 Netto-Monatsmieten zzgl. gesetzlicher Umsatzsteuer.** der Wert kann je nach Vertragslaufzeit variieren.
Kontaktieren Sie uns für den Preis
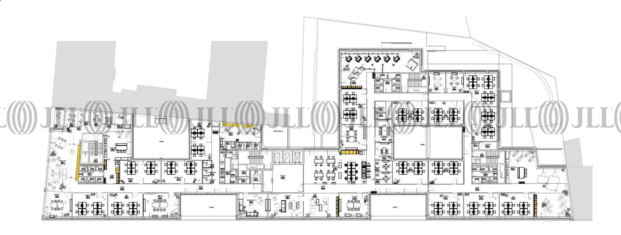
- Fläche814 - 2.202 m²
- VerfügbarkeitSofort
- Ausstattung
- Lage und Verkehrsanbindung
- Grundriss
- Exposé herunterladen
- Ihr Kontakt
- Anfrage senden
Verfügbare Fläche
Lage und Verkehrsanbindung
Das Objekt befindet sich im Berliner Bezirk Mitte, im Ortsteil Gesundbrunnen. Der Bezirk ist bestens angebunden ans restliche Berlin und darüber hinaus. Dienstleister des täglichen Bedarfs befinden sich in der Nähe.
Ihr Kontakt

Tobias Rodewald
Ihr Kontakt






