Büros
ID B2978Provisionsfrei
Aktualisiert
Büroimmobilie - Berlin, Mitte - B2978
Mitte, 10179, Berlin, Berlin
29 € / m²
- Fläche899 m²
- VerfügbarkeitSofort
- Objekt
- Ausstattung
- Lage und Verkehrsanbindung
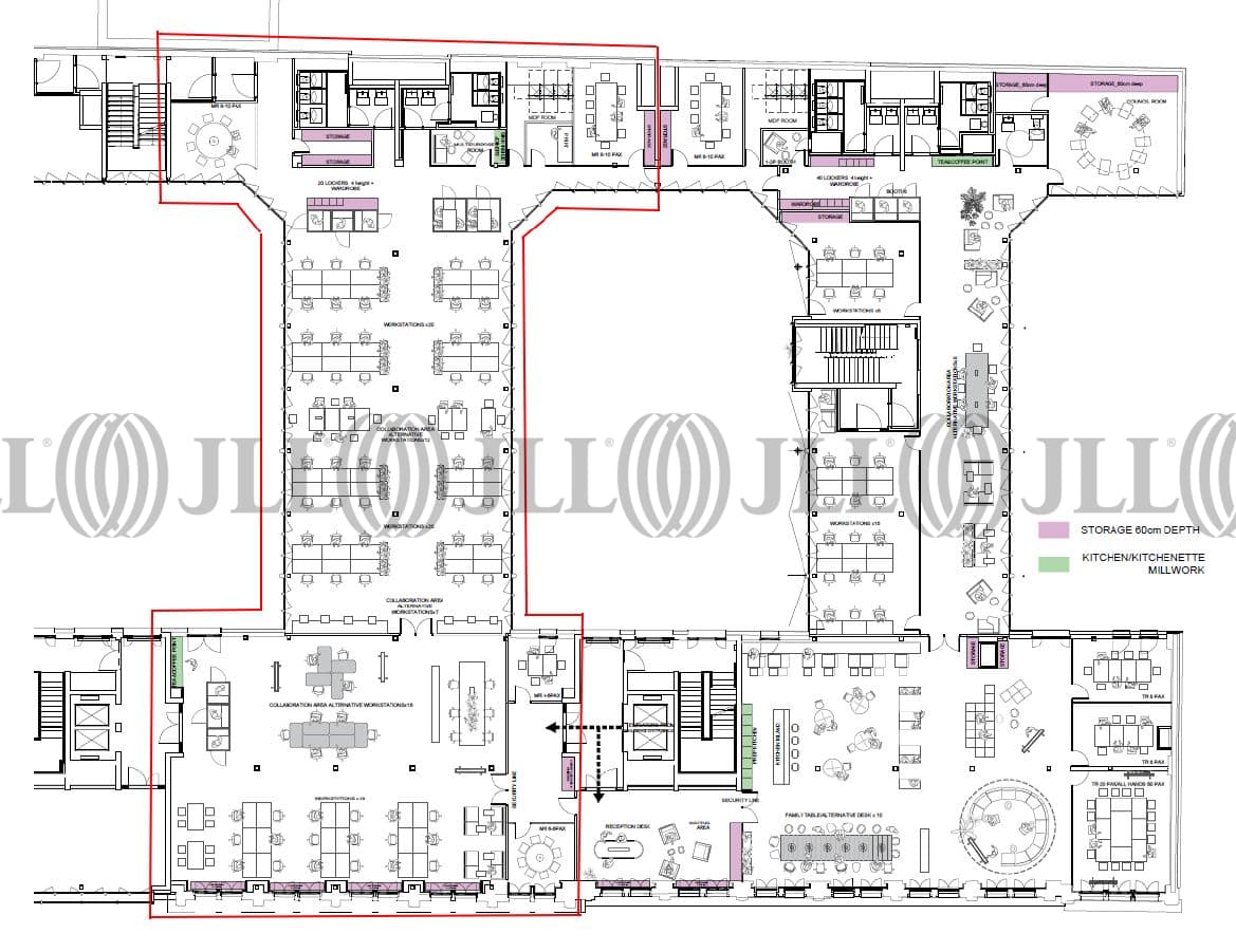
- Grundriss
- Exposé herunterladen
- Ihr Kontakt
- Anfrage senden
Objekt
Dieses Bürogebäude repräsentiert eine gelungene Symbiose aus traditioneller Bausubstanz und zeitgenössischer Architektur. Nach einer umfassenden Modernisierung, die durch eine Aufstockung um drei Etagen ergänzt wurde, bietet das Objekt nun flexible und hochwertig ausgestattete Büroflächen. Im Inneren schaffen Deckenhöhen von über drei Metern eine offene und lichtdurchflutete Atmosphäre. Die Arbeitsbereiche sind konsequent auf eine kollaborative Unternehmenskultur ausgerichtet und bieten Teams jeder Größe ideale Bedingungen – ob für den direkten Austausch, kreative Prozesse oder digitale Konferenzen.
Zu den Annehmlichkeiten zählen ein persönlicher Empfangsservice, flexibel buchbare Konferenzräume sowie ein hauseigenes Café, das als kommunikativer Mittelpunkt für Mieter und Gäste dient. Ein besonderes Highlight ist die rund 600 m² große Dachterrasse, die zur gemeinschaftlichen Nutzung zur Verfügung steht. Sie bietet einen atemberaubenden Blick über die Stadt und kann zudem als exklusive Eventlocation genutzt werden. Ein starker Fokus liegt auf Nachhaltigkeit und Energieeffizienz, was durch angestrebte Zertifizierungen und eine intelligente Gebäudesteuerung für Heizung, Kühlung, Beleuchtung und Sonnenschutz untermauert wird.
Zu den Annehmlichkeiten zählen ein persönlicher Empfangsservice, flexibel buchbare Konferenzräume sowie ein hauseigenes Café, das als kommunikativer Mittelpunkt für Mieter und Gäste dient. Ein besonderes Highlight ist die rund 600 m² große Dachterrasse, die zur gemeinschaftlichen Nutzung zur Verfügung steht. Sie bietet einen atemberaubenden Blick über die Stadt und kann zudem als exklusive Eventlocation genutzt werden. Ein starker Fokus liegt auf Nachhaltigkeit und Energieeffizienz, was durch angestrebte Zertifizierungen und eine intelligente Gebäudesteuerung für Heizung, Kühlung, Beleuchtung und Sonnenschutz untermauert wird.
Verfügbare Fläche
Lage und Verkehrsanbindung
Der Standort befindet sich in einer der dynamischsten Lagen im Herzen Berlins, nur einen kurzen Spaziergang vom Alexanderplatz und der Spree entfernt. Die Anbindung an den öffentlichen Nahverkehr ist exzellent: Mehrere S- und U-Bahnhöfe sind fußläufig erreichbar und garantieren eine schnelle Verbindung in alle Teile der Stadt. Das Viertel selbst pulsiert vor Leben und bietet eine reiche Auswahl an kulturellen Einrichtungen, gastronomischen Highlights und Freizeitmöglichkeiten. In der direkten Umgebung prägen architektonische Zeitzeugen der DDR-Moderne das Stadtbild, die heute als gefragte Veranstaltungsorte für Filmpremieren und Festivals dienen. Eine etablierte Barszene mit erstklassigen Cocktails rundet das Angebot ab. Dank der sehr guten Fahrradinfrastruktur lässt sich die urbane Umgebung auch bequem auf zwei Rädern erkunden. Diese Lage verbindet alles, was für ein modernes Arbeits- und Privatleben notwendig ist, und schafft ein einzigartiges, inspirierendes Umfeld mitten in der Hauptstadt.
Ihr Kontakt

Tobias Rodewald
Ihr Kontakt
Marktinformationen
Mietmarkt
Mitte, Berlin
Gew. Ø-Miete
29 € / m²
siehe 167 passende MietobjekteErfahren Sie mehr* Durchschnittspreis auf Grundlage historischer Transaktionen.



