
Büros
ID B2968Aktualisiert
Büroimmobilie - Berlin, Wilmersdorf - B2968
Wilmersdorf, 10715, Berlin, Berlin
Provisionspflichtig: bei Anmietung 3 Netto-Monatsmieten zzgl. gesetzlicher Umsatzsteuer.** der Wert kann je nach Vertragslaufzeit variieren.
30 € / m²
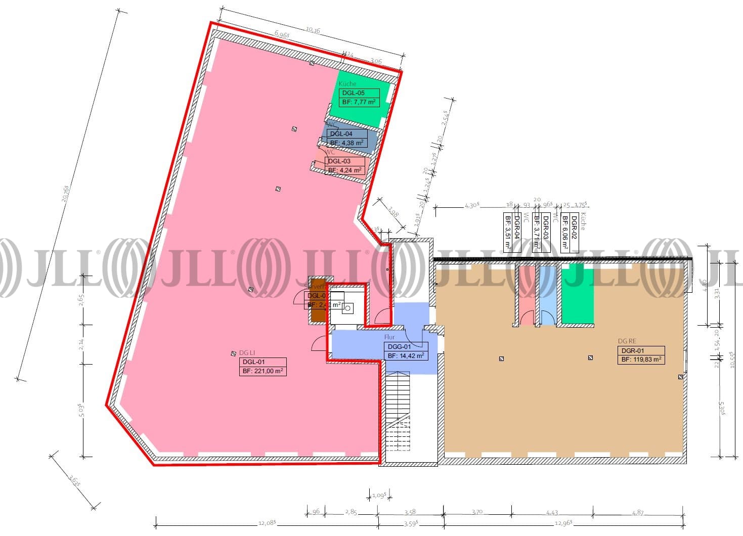
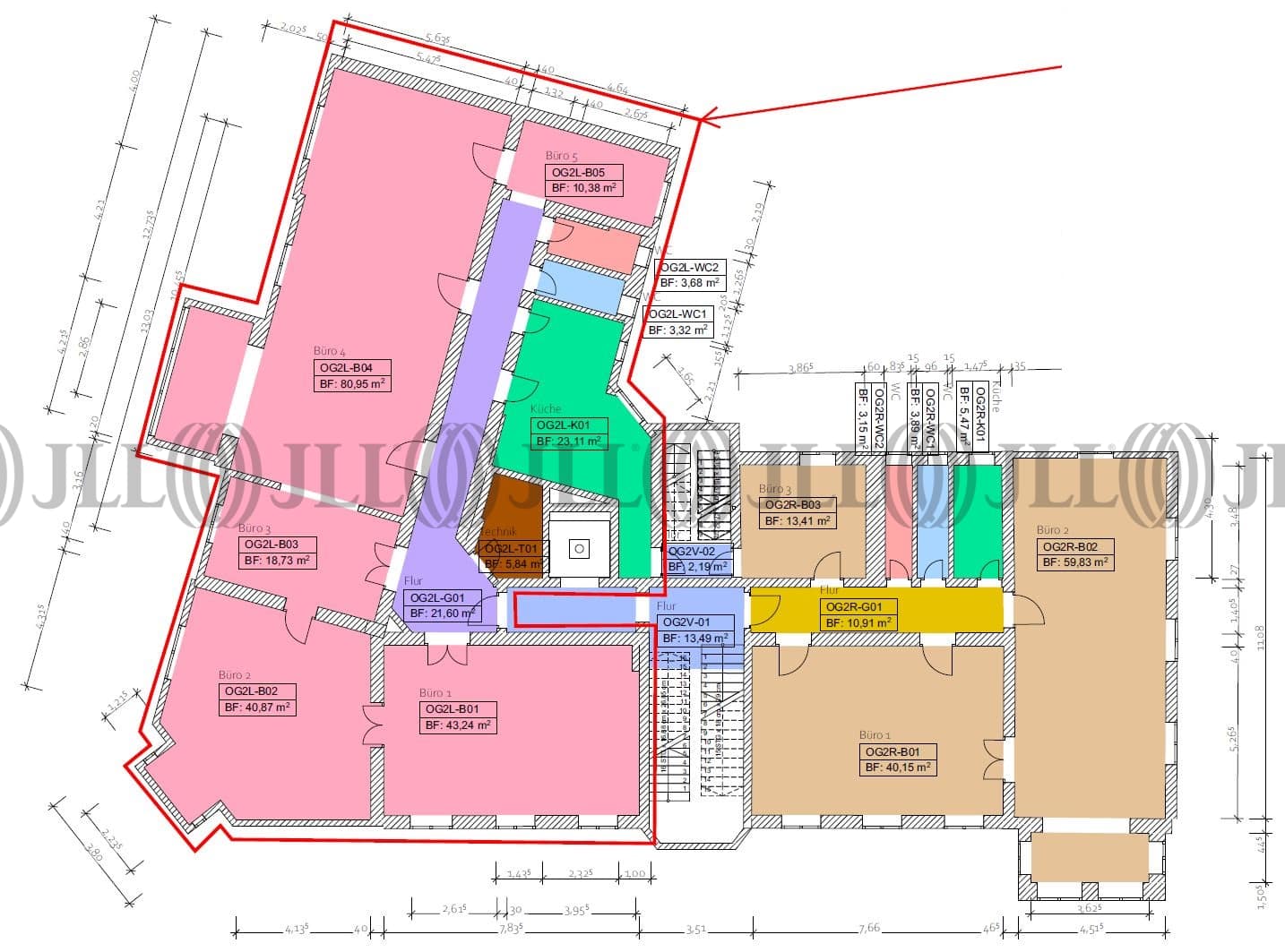
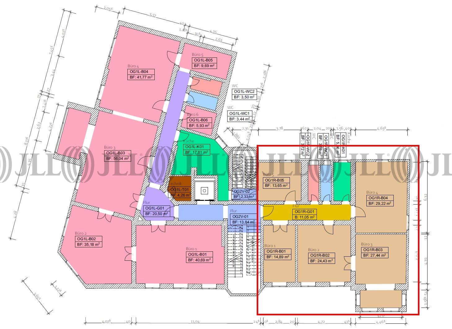
- Fläche149 - 641 m²
- VerfügbarkeitSofort
- Objekt
- Ausstattung
- Lage und Verkehrsanbindung
- Grundrisse
- Exposé herunterladen
- Ihr Kontakt
- Anfrage senden
Objekt
Das repräsentative Bürogebäude befindet sich in einem historisch anmutenden Palais, das moderne Arbeitswelten auf Flächen von 140 m² bis zu 2.000 m² beherbergt. Die Architektur verbindet klassischen Charme mit den Anforderungen an zeitgemäße Bürokonzepte und bietet flexible Raumaufteilungen für unterschiedliche Unternehmensgrößen.
Zertifizierungen
Energieausweis
Für diese Liegenschaft liegt ein Bedarfsausweis vom 19.12.2023 vom Eigentümer/Vermieter vor. Die wesentlichen Energieträger der Liegenschaft sind Fernwärme, KWK, Nahwärme, Strom. Der Endenergiebedarf Strom beträgt 17.3 kWh/(m²*a). Der Endenergiebedarf Wärme beträgt 111.2 kWh/(m²*a).Verfügbare Fläche
Lage und Verkehrsanbindung
Die Immobilie liegt in einer etablierten und urbanen Kiezstruktur an der Grenze der Ortsteile Wilmersdorf und Schöneberg, die für ihre charmanten Altbauten und das bürgerliche Flair bekannt ist. Die unmittelbare Umgebung zeichnet sich durch eine hervorragende Infrastruktur mit einer Vielzahl von Einzelhandelsgeschäften, Supermärkten und gastronomischen Einrichtungen aus, die den täglichen Bedarf decken und zur hohen Aufenthaltsqualität beitragen. Für Erholungspausen im Freien bietet sich ein nahegelegener, weitläufiger Volkspark an.
- Hauptbahnhof, Berlin, Fahrzeit: 17 min
- U-Bahn, Berliner Straße, Linien U7, U9, Gehzeit: 1 min
- Bus, Berliner Straße, Linien 143, M43, Gehzeit: 1 min
- Bundesautobahn, A100, Fahrzeit: 5 min
- Bundesautobahn, A103, Fahrzeit: 6 min
- Flughafen, Berlin Brandenburg, Fahrzeit: 23 min
Ihr Kontakt

Alexandra Teich
Ihr Kontakt
Marktinformationen
Mietmarkt
Wilmersdorf, Berlin
siehe 0 passende MietobjekteErfahren Sie mehr
* Durchschnittspreis auf Grundlage historischer Transaktionen.