Büros
ID B2932Aktualisiert
Büroimmobilie - Berlin, Mitte - B2932
Schinkelplatz 4, 5, An der Kommandantur, Niederlagstraße
Mitte, 10117, Berlin, Berlin
Provisionspflichtig: bei Anmietung 3 Netto-Monatsmieten zzgl. gesetzlicher Umsatzsteuer.** der Wert kann je nach Vertragslaufzeit variieren.
32 € / m²
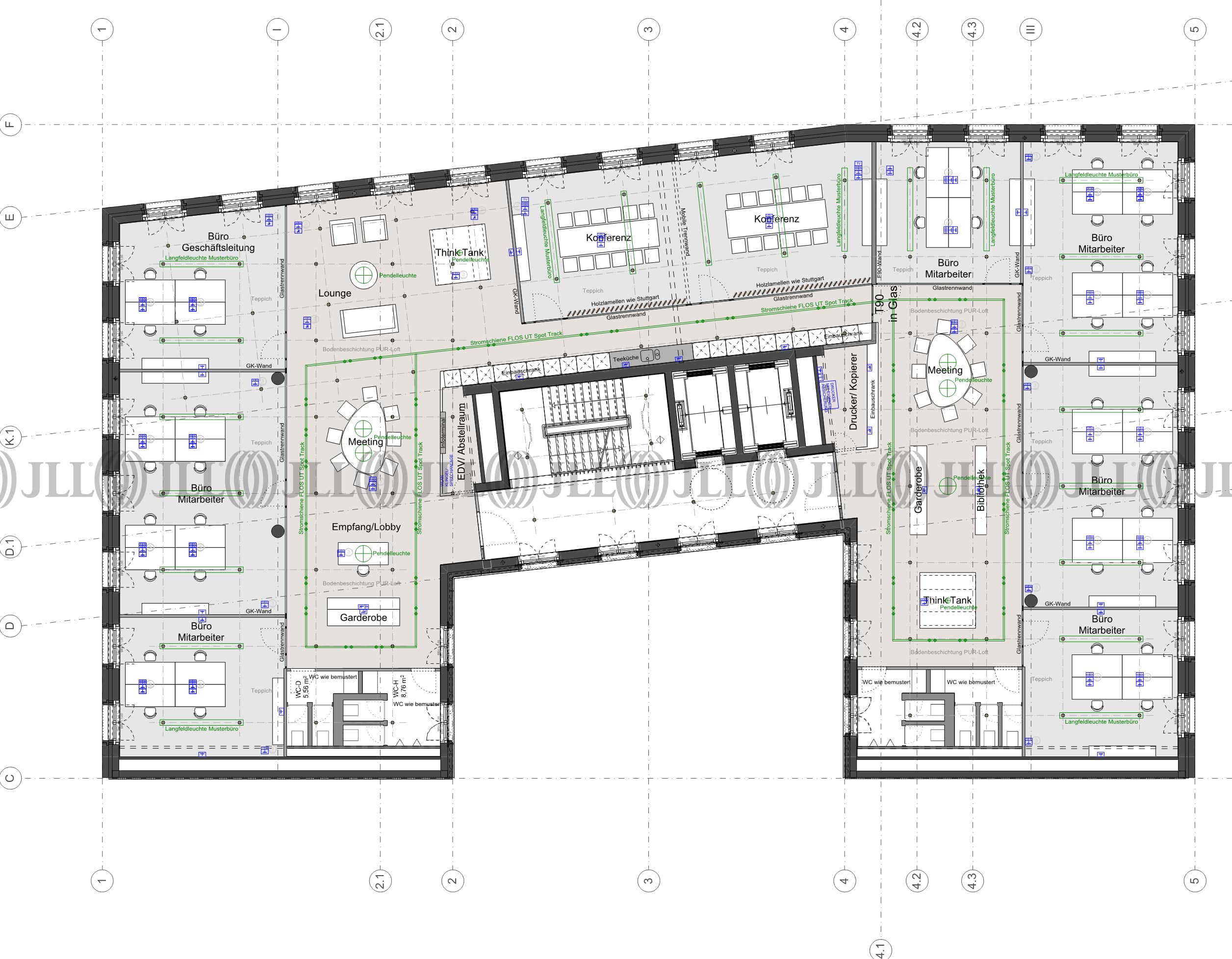
- Fläche665 m²
- VerfügbarkeitJuni 2026
- Objekt
- Ausstattung
- Lage und Verkehrsanbindung
- Grundriss
- Exposé herunterladen
- Ihr Kontakt
- Anfrage senden
Objekt
In einer der prominentesten Lagen im historischen Herzen Berlins erhebt sich ein modernes Bürogebäude, dessen Architektur eine feinsinnige Neuinterpretation der umliegenden historischen Fassaden darstellt und so eine Brücke zwischen Vergangenheit und Gegenwart schlägt. Die fein detaillierte Lochfassade aus geschlämmtem Beton erinnert an die Bossierung historischer Sockelgeschosse und verleiht dem Gebäude eine einzigartige Identität. Die Grundrisse sind flexibel gestaltbar und ermöglichen sowohl Großraum-, Kombi- als auch Einzelbüros.
Verfügbare Fläche
Lage und Verkehrsanbindung
Das Objekt befindet sich im Berliner Bezirk Mitte, eingerahmt von den Sehenswürdigkeiten und mit unverbaubarem Blick auf das Humboldt-Forum. Vom Schinkelplatz aus erreicht man fußläufig den Boulevard Unter den Linden, die Museumsinsel, das Nikolaiviertel, den Gendarmenmarkt oder die belebte Friedrichstraße. Hier befinden sich eine Vielzahl von Cafés, Restaurants sowie Einkaufsmöglichkeiten für den täglichen Bedarf. Dienstleister des täglichen Bedarfs befinden sich in der Nähe.
Ihr Kontakt

Alexandra Teich
Ihr Kontakt
Marktinformationen
Mietmarkt
Mitte, Berlin
Gew. Ø-Miete
32 € / m²
siehe 166 passende MietobjekteErfahren Sie mehr* Durchschnittspreis auf Grundlage historischer Transaktionen.










