Büros
ID B2900Provisionsfrei
Büroimmobilie - Berlin, Charlottenburg - B2900
Charlottenburg, 10707, Berlin, Berlin
33,50 € / m²
- Fläche300 - 600 m²
- VerfügbarkeitSofort
- Ausstattung
- Lage und Verkehrsanbindung
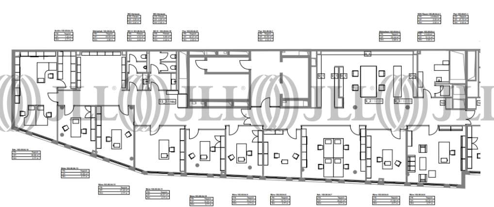
- Grundriss
- Exposé herunterladen
- Ihr Kontakt
- Anfrage senden
Verfügbare Fläche
Lage und Verkehrsanbindung
Das Objekt befindet sich auf dem Kurfürstendamm und liegt an der Kreuzung zur Bleibtreustraße. Es verfügt somit über eine exzellente Innenstadtlage mit einer hervorragenden Anbindung an das öffentliche Verkehrsnetz. Darüber hinaus ist ein funktionales infrastrukturelles Umfeld vorhanden. Ein idealer Standort im Herzen Berlins. Dienstleister des täglichen Bedarfs befinden sich in der Nähe.
Ihr Kontakt

Tobias Rodewald
Ihr Kontakt
Marktinformationen
Mietmarkt
Charlottenburg, Berlin
Gew. Ø-Miete
33,50 € / m²
siehe 101 passende MietobjekteErfahren Sie mehr* Durchschnittspreis auf Grundlage historischer Transaktionen.






