Büros
ID B2885Provisionsfrei
Aktualisiert
Büroimmobilie - Berlin, Tempelhof - B2885
Tempelhof, 12099, Berlin, Berlin
19,50 € / m²
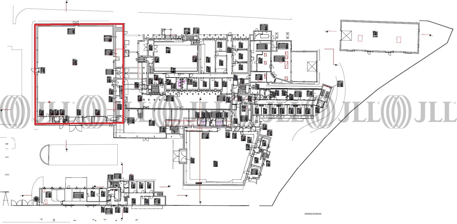
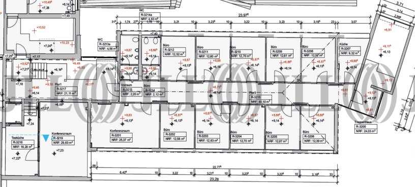
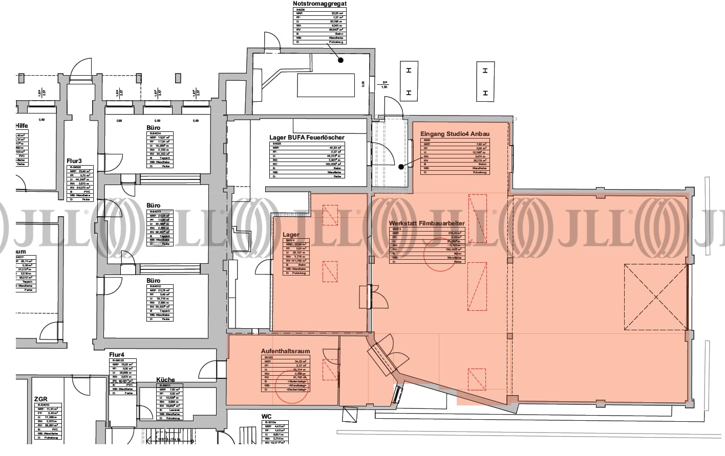
- Fläche215 - 1.133 m²
- VerfügbarkeitSofort
- Objekt
- Ausstattung
- Lage und Verkehrsanbindung
- Grundrisse
- Exposé herunterladen
- Ihr Kontakt
- Anfrage senden
Objekt
Auf dem Gelände eines der frühesten Film-, Fernseh- und Postproduktionsstudiostandorte Europas ist ein preisgekrönter neuer Kreativcampus entstanden, der 23.800 m² flexible Büro-, Veranstaltungs- und Studioflächen für zweck-orientierte Organisationen sowie Sozialunternehmen und Start-ups bietet. Eine fortschrittliche Gemeinschaft von Organisationen, die in den Bereichen Film, Medien, Bildung, Klimawandel, Menschenrechte und Lebensmittelproduktion tätig sind, hat den Campus bereits zu ihrer Heimat gemacht, mit fünf Studios und 13 Gebäuden, zwischen denen umfangreiche neue Begrünungen und Gärten liegen.
Haus 1 ist der neue zentrale Mittelpunkt des Campus – nachhaltig umgebaut von den weltbekannten Architekten MVRDV, um auf vier Etagen flexible, hochwertige Büroflächen zu bieten, die sich über einem Gemeinschaftscafé und mietbaren Besprechungsräumen befinden. Eine neue gemeinschaftliche Dachterrasse und ein Veranstaltungspavillon sind über eine skulpturale Zick-Zack-Treppe erreichbar und bieten einen unvergleichlichen Blick über das Tempelhofer Feld und die Skyline der Stadt. Auf dem Rest des Campus stehen zahlreiche größere, flexible Veranstaltungsräume und Studios zur Miete zur Verfügung. Zu den jüngsten Buchungen zählen unter anderem Google, Netflix, das Nature of Cities Festival und Lego.
Haus 1 ist der neue zentrale Mittelpunkt des Campus – nachhaltig umgebaut von den weltbekannten Architekten MVRDV, um auf vier Etagen flexible, hochwertige Büroflächen zu bieten, die sich über einem Gemeinschaftscafé und mietbaren Besprechungsräumen befinden. Eine neue gemeinschaftliche Dachterrasse und ein Veranstaltungspavillon sind über eine skulpturale Zick-Zack-Treppe erreichbar und bieten einen unvergleichlichen Blick über das Tempelhofer Feld und die Skyline der Stadt. Auf dem Rest des Campus stehen zahlreiche größere, flexible Veranstaltungsräume und Studios zur Miete zur Verfügung. Zu den jüngsten Buchungen zählen unter anderem Google, Netflix, das Nature of Cities Festival und Lego.
Verfügbare Fläche
Lage und Verkehrsanbindung
Atelier Gardens befindet sich an der südlichen Grenze des Flughafens Tempelhof in Berlin.
- Flughafen, Berlin-Brandenburg, Fahrzeit: 18 min
- Bundesautobahn, A 100, Fahrzeit: 5 min
- Hauptbahnhof, S-Bahn, Fern-/Regionalzüge, div. Linien, Fahrzeit: 16 min
- S-Bahn, Südkreuz, S-Bahn, Fern-/Regionalzüge, div. Linien, Fahrzeit: 6 min
Ihr Kontakt

Chiara Costa Jacinto
Ihr Kontakt
Marktinformationen
Mietmarkt
Tempelhof, Berlin
siehe 4 passende MietobjekteErfahren Sie mehr
* Durchschnittspreis auf Grundlage historischer Transaktionen.







