Büros
ID B2850Provisionsfrei
Büroimmobilie - Leipzig - B2850
04109, Leipzig, Sachsen
15 € / m²
- Fläche312 m²
- VerfügbarkeitSofort
- Objekt
- Ausstattung
- Lage und Verkehrsanbindung
- Grundriss
- Exposé herunterladen
- Ihr Kontakt
- Anfrage senden
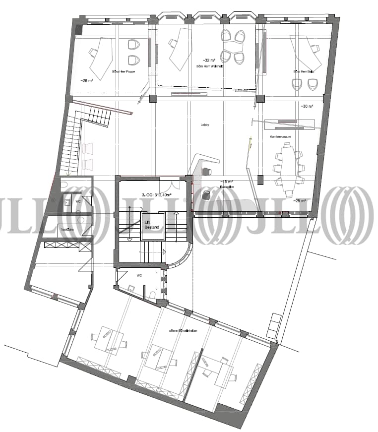
Objekt
Das beeindruckende viergeschossige Gebäude wurde während der Jahre 1911 und 1912 durch den renommierten Baumeister Franz Roch, der zugleich als Bauherr fungierte, als exklusives Geschäftshaus erbaut. Imposant und bewundernswert, steht im dritten Obergeschoss eine äußerst gut ausgebaute Bürofläche mit einer großzügigen Gesamtfläche von etwa 312 m² zur Verfügung.
Die großzügig bemessene Bürofläche ist in insgesamt vier separate Bereiche unterteilt, welche nur durch elegante Glasabtrennungen voneinander getrennt sind. Dadurch wird eine angenehme und offene Arbeitsatmosphäre geschaffen, die sowohl Privatsphäre als auch Kollaborationsmöglichkeiten gewährleistet.
Zusätzlich zu den Büroflächen bietet das Büro auch einen großzügig gestalteten Besprechungsraum, der für Meetings und Präsentationen genutzt werden kann.
Neben den beeindruckenden Büroflächen und dem Besprechungsraum stehen den Mietern auch Sanitärräume und eine Teeküche zur Verfügung. Die ursprüngliche interne Treppe, die einst zwei Etagen verband, wird nun lediglich als gemütliche Sitzgelegenheit für informelle Meetings genutzt.
Die großzügig bemessene Bürofläche ist in insgesamt vier separate Bereiche unterteilt, welche nur durch elegante Glasabtrennungen voneinander getrennt sind. Dadurch wird eine angenehme und offene Arbeitsatmosphäre geschaffen, die sowohl Privatsphäre als auch Kollaborationsmöglichkeiten gewährleistet.
Zusätzlich zu den Büroflächen bietet das Büro auch einen großzügig gestalteten Besprechungsraum, der für Meetings und Präsentationen genutzt werden kann.
Neben den beeindruckenden Büroflächen und dem Besprechungsraum stehen den Mietern auch Sanitärräume und eine Teeküche zur Verfügung. Die ursprüngliche interne Treppe, die einst zwei Etagen verband, wird nun lediglich als gemütliche Sitzgelegenheit für informelle Meetings genutzt.
Verfügbare Fläche
Lage und Verkehrsanbindung
Die Leipziger Innenstadt zeichnet sich durch eine kompakte City mit sehr attraktiven Handelsstrukturen und einem Mix aus aufwendig sanierten Handelshöfen, Passagen und stilvollen Neubauten aus. Die Hainstraße, in der sich das Objekt befindet, ist eine der traditionellsten und hoch frequentierten Einkaufsstraßen der Stadt Leipzig. Die Immobilie ist nur ca. 2 Gehminuten vom Leipziger Markt entfernt. Hier befindet sich die unterirdische Haltestelle der S-Bahn, die seit Ende 2013 die Leipziger Innenstadt mit ihrem mitteldeutschen Umfeld verbindet. Halle/Saale, Zwickau, Dessau und Hoyerswerda sind nunmehr umstandslos zu erreichen.
- Hauptbahnhof, Leipzig, Gehzeit: 8 min
- Hauptbahnhof, Leipzig, Fahrzeit: 5 min
- S-Bahn, Leipzig Markt Linie S4,S6,S5..., Gehzeit: 2 min
- Flughafen, Leipzig/ Halle, Fahrzeit: 24 min
- Bundesautobahn, A 14, Fahrzeit: 15 min
- Bundesautobahn, A 38, Fahrzeit: 20 min
- Bundesstraße, B 87, Fahrzeit: 3 min
- Bundesstraße, B 2, Fahrzeit: 8 min
Ihr Kontakt

Kay Förster
Ihr Kontakt
Marktinformationen
Mietmarkt
, Leipzig
siehe 35 passende MietobjekteErfahren Sie mehr
* Durchschnittspreis auf Grundlage historischer Transaktionen.







