Büros
ID B2837Provisionsfrei
Aktualisiert
Büroimmobilie - Berlin, Weißensee - B2837
Weißensee, 13086, Berlin, Berlin
12 € / m²
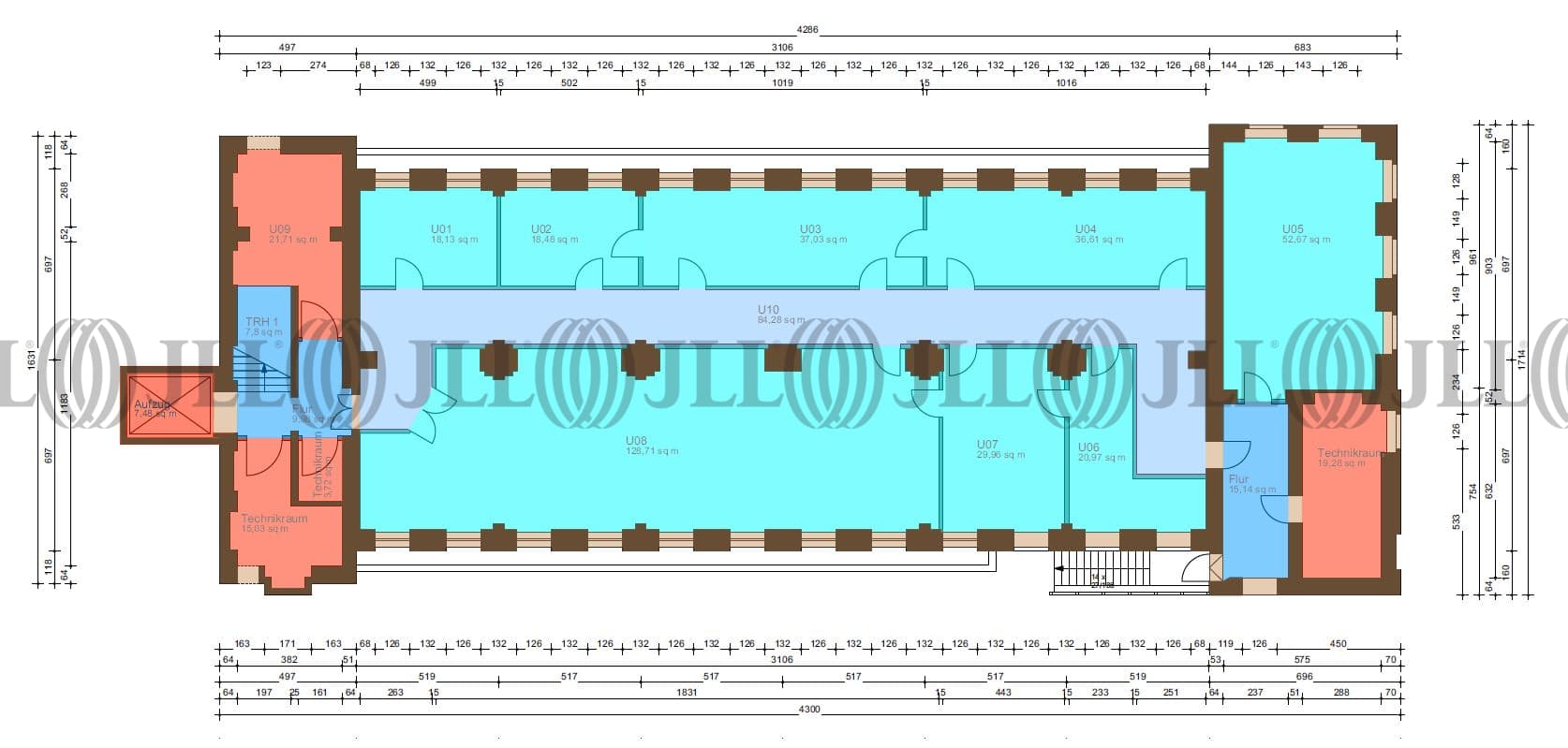
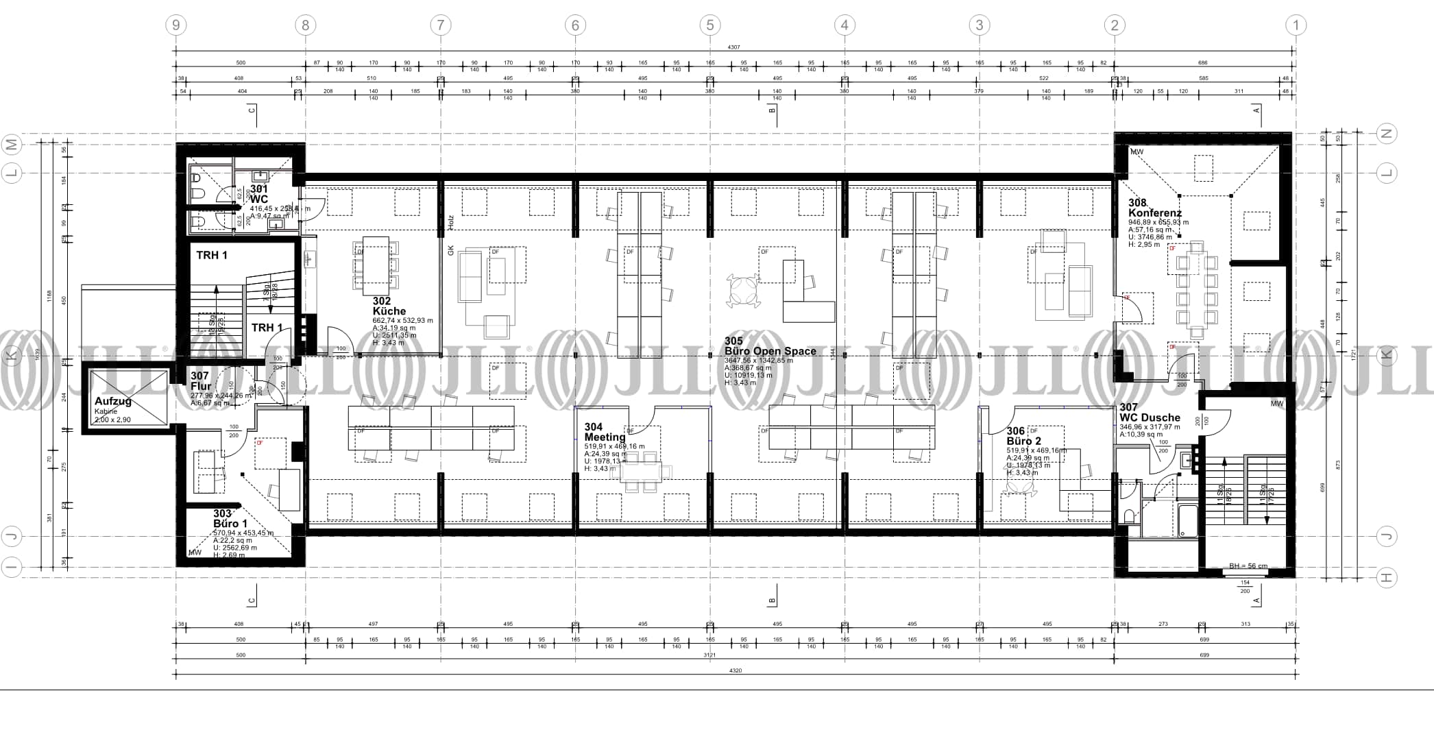
- Fläche106 - 692 m²
- VerfügbarkeitSofort
- Objekt
- Ausstattung
- Lage und Verkehrsanbindung
- Grundrisse
- Exposé herunterladen
- Ihr Kontakt
- Anfrage senden
Objekt
Dieser historische Backsteinbau war Ende des 19. Jahrhunderts als Goldleistenfabrik errichtet worden und ist heute Teil des Gründerviertels, genauso wie viele andere Gewerbehöfe. Die Anlage besteht aus mehreren Gebäuden, die mittlerweile unter Denkmalschutz stehen.
Der Komplex wird sorgfältig instand gehalten und bietet eine entspannte Atmosphäre, die Kreativität fördert.
Der Komplex wird sorgfältig instand gehalten und bietet eine entspannte Atmosphäre, die Kreativität fördert.
Verfügbare Fläche
Lage und Verkehrsanbindung
Das Geschäftshaus liegt im beliebten Stadtteil Weißensee (Bezirk Pankow), in unmittelbarer Nähe zum begehrten Komponistenviertel - einer ruhigen und grünen Wohngegend. Durch die Nähe zum Prenzlauer Berg, zur Einkaufsmeile Berliner Allee und zum malerischen Weißen See ist dieser Standort besonders interessant und immer attraktiver für Unternehmen, die nach einem neuen Bürostandort suchen. Mit einer Entfernung von etwa 10 Straßenbahnminuten zum Alexanderplatz ist das Objekt gut an den öffentlichen Nahverkehr angebunden.
- Hauptbahnhof, Berlin, Fahrzeit: 25 min
- S-Bahn, Greifswalder Straße, Gehzeit: 15 min
- Straßenbahn/Tram, Behaimstr.; Line 12, 50, M1, M2, M13, Gehzeit: 5 min
- Bus, Roelckestr./Langhansstr.; Linie 158, Gehzeit: 5 min
- Bundesautobahn, A 100, Fahrzeit: 40 min
- Bundesautobahn, A 10, Fahrzeit: 15 min
- Flughafen, Berlin Brandenburg, Fahrzeit: 50 min
Ihr Kontakt

Alexandra Teich
Ihr Kontakt







