Büros
ID B2835Aktualisiert
Büroimmobilie - Berlin, Lichterfelde - B2835
Lichterfelde, 14167, Berlin, Berlin
Provisionspflichtig: bei Anmietung 3 Netto-Monatsmieten zzgl. gesetzlicher Umsatzsteuer.** der Wert kann je nach Vertragslaufzeit variieren.
20 € / m²
- Fläche263 - 7.396 m²
- VerfügbarkeitAuf Anfrage
- Objekt
- Lage und Verkehrsanbindung
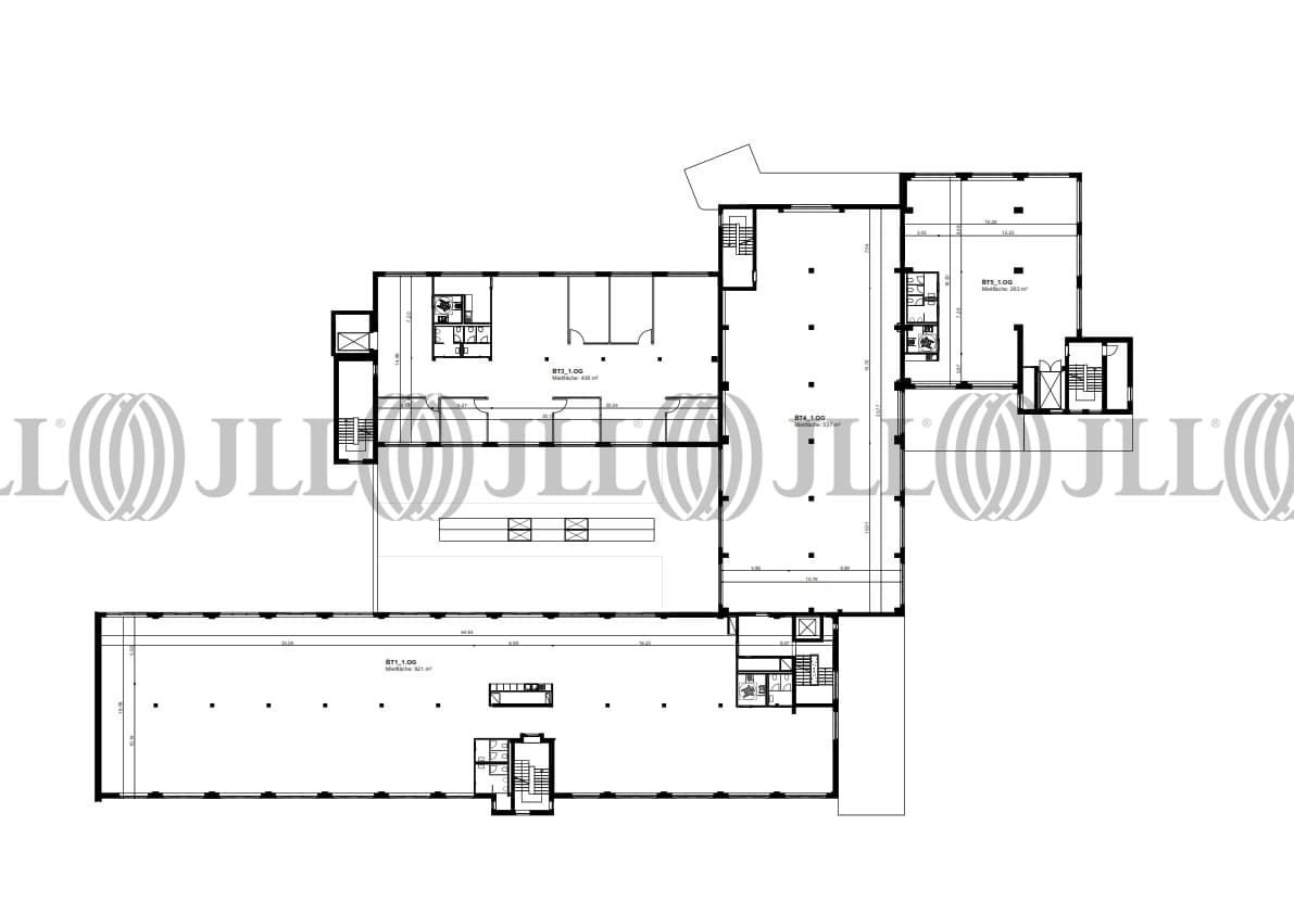
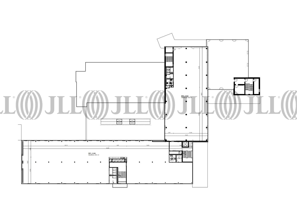
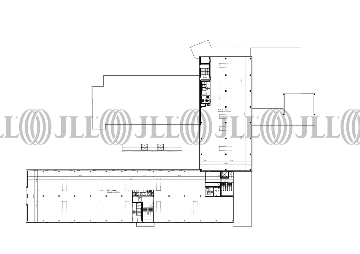
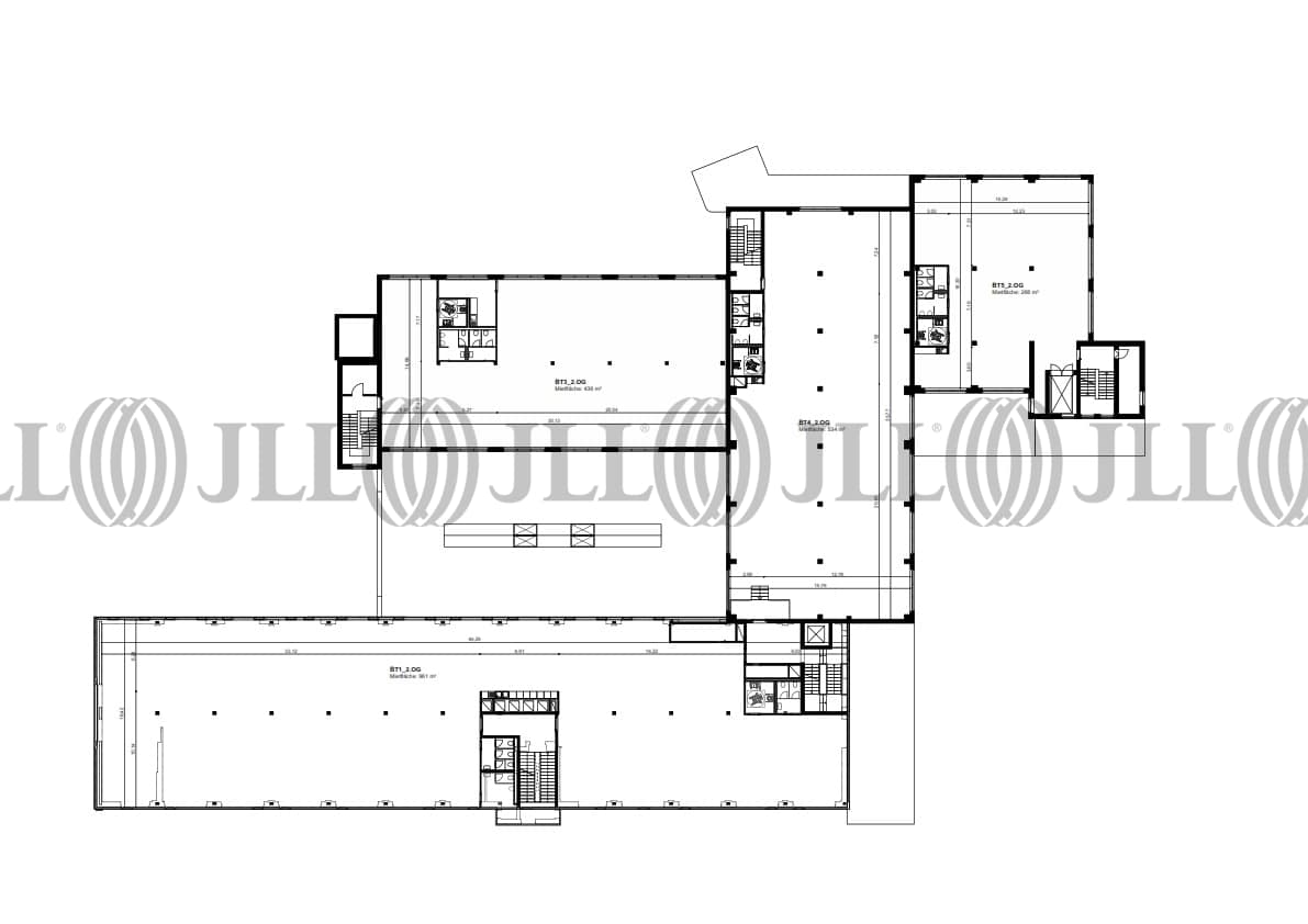
- Grundrisse
- Exposé herunterladen
- Ihr Kontakt
- Anfrage senden
Objekt
Das ca. 23.000 m² große Grundstück ist aktuell mit einer im Jahr 2016 modernisierten Logistikhalle sowie , einem mehrstöckig, flexibel nutzbaren Gebäude - sowie einem Bürogebäude bebaut. Darüber hinaus stehen eine Vielzahl von PKW- und Sprinterstellplätzen zur Verfügung.
Geplant ist die Aufstockung des Mehrzweckgebäudes (2. - 4.OG) bis Ende Q4-2021.
Geplant ist die Aufstockung des Mehrzweckgebäudes (2. - 4.OG) bis Ende Q4-2021.
Verfügbare Fläche
Lage und Verkehrsanbindung
Die Liegenschaft ist Teil des Gewerbeareals Zehlendorf / Steglitz und zeichnet sich durch eine gute Anbindung zur Berliner Innenstadt und zur Stadtautobahn A 115 aus. Über den Teltower Damm und die neue B 101 ist der Berliner Autobahnring A 10 ebenfalls gut in ca. 20 Fahrminuten zu erreichen.
- Flughafen, Berlin Brandenburg, Fahrzeit: 28 min
- Bundesautobahn, A 115, Fahrzeit: 21 min
- Bundesautobahn, A 103, Fahrzeit: 10 min
- Bundesstraße, B 1, Fahrzeit: 18 min
- Bundesstraße, B 101, Fahrzeit: 10 min
- Bus, Alsterweg, Linie 285, Gehzeit: 2 min
Ihr Kontakt

Tobias Rodewald
Ihr Kontakt



