Büros
ID B2784Büroimmobilie - Berlin, Tiergarten - B2784
Tiergarten, 10787, Berlin, Berlin
Provisionspflichtig: bei Anmietung 3 Netto-Monatsmieten zzgl. gesetzlicher Umsatzsteuer.** der Wert kann je nach Vertragslaufzeit variieren.
Kontaktieren Sie uns für den Preis
- Fläche1.275 - 6.513 m²
- VerfügbarkeitSofort
- Objekt
- Ausstattung
- Lage und Verkehrsanbindung
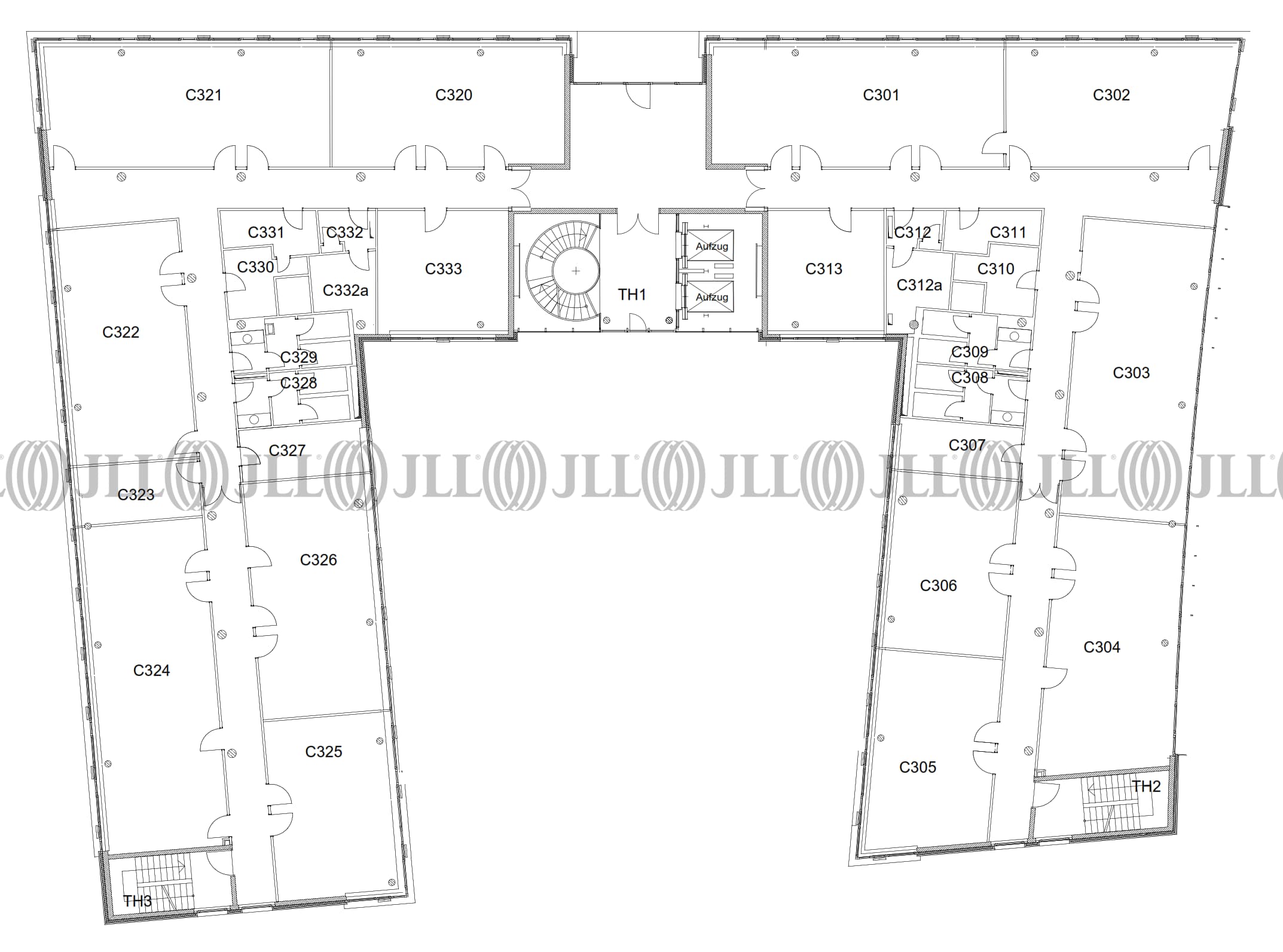
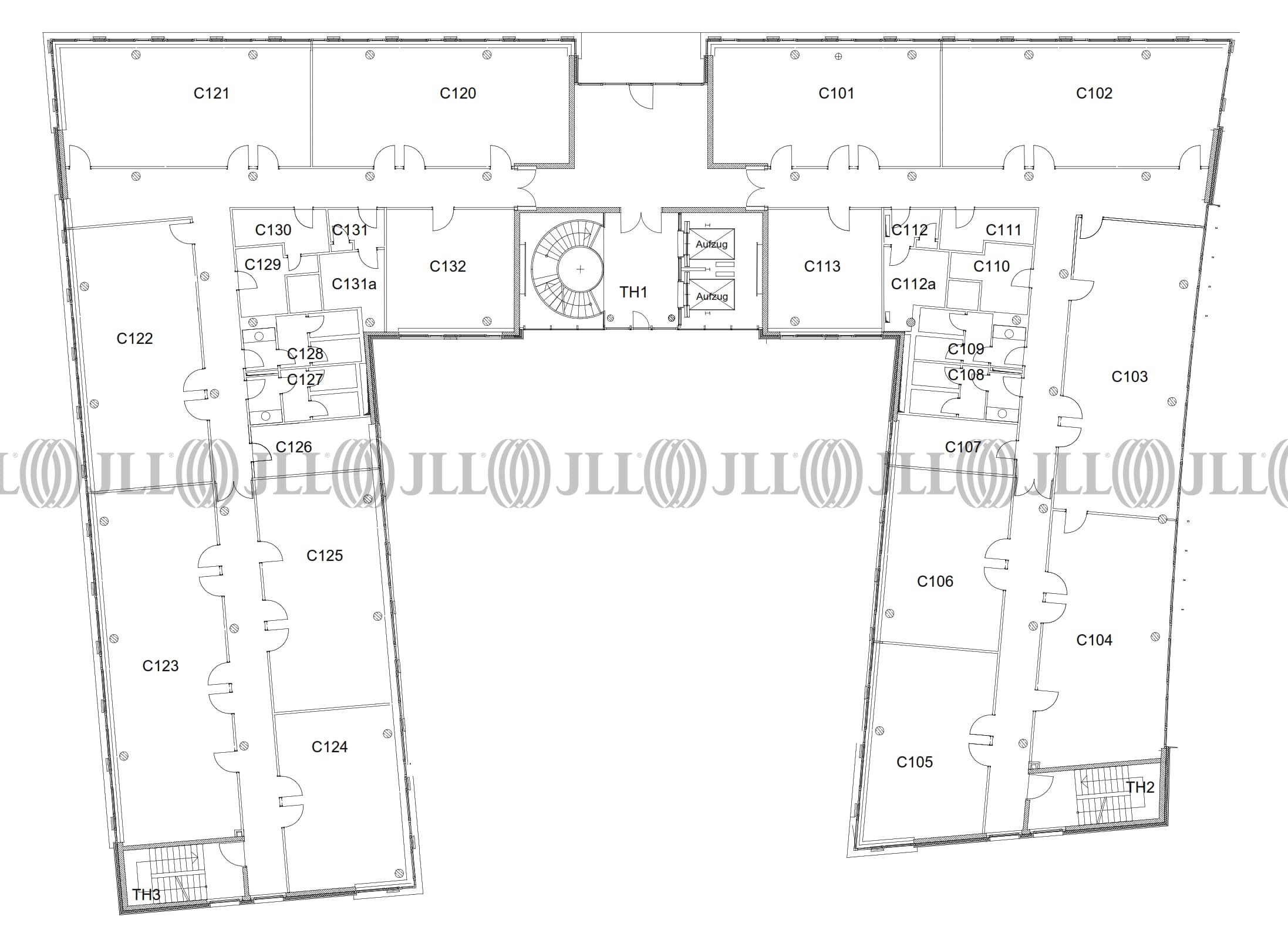
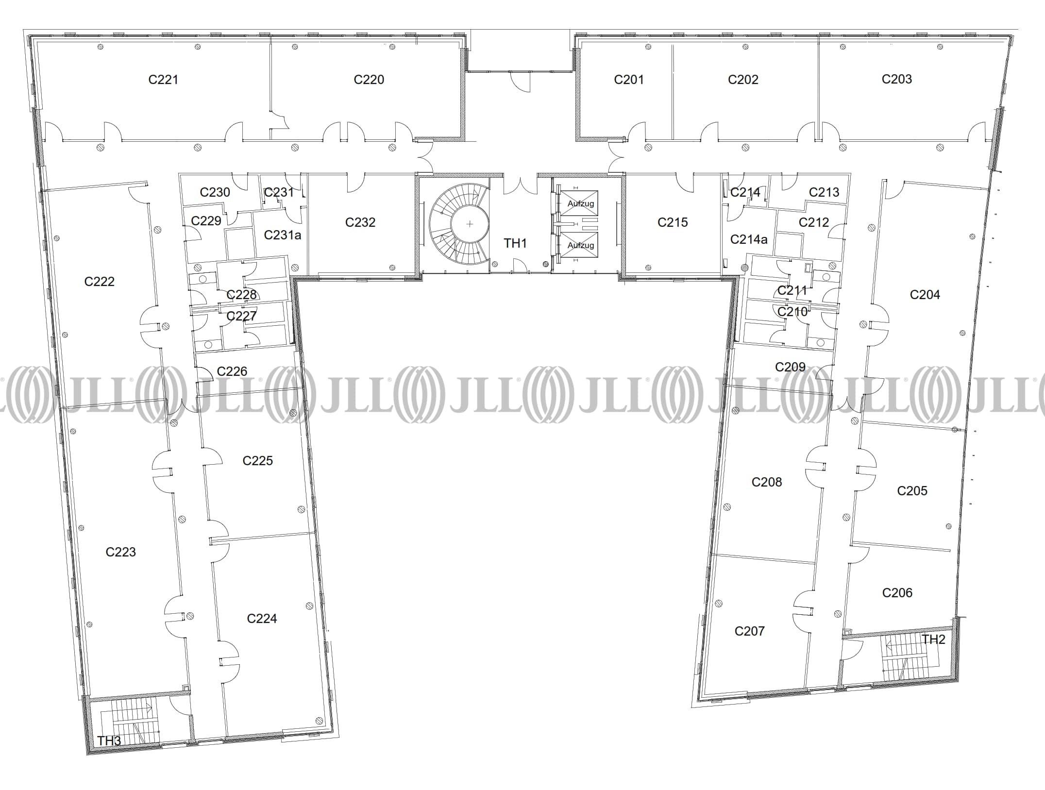
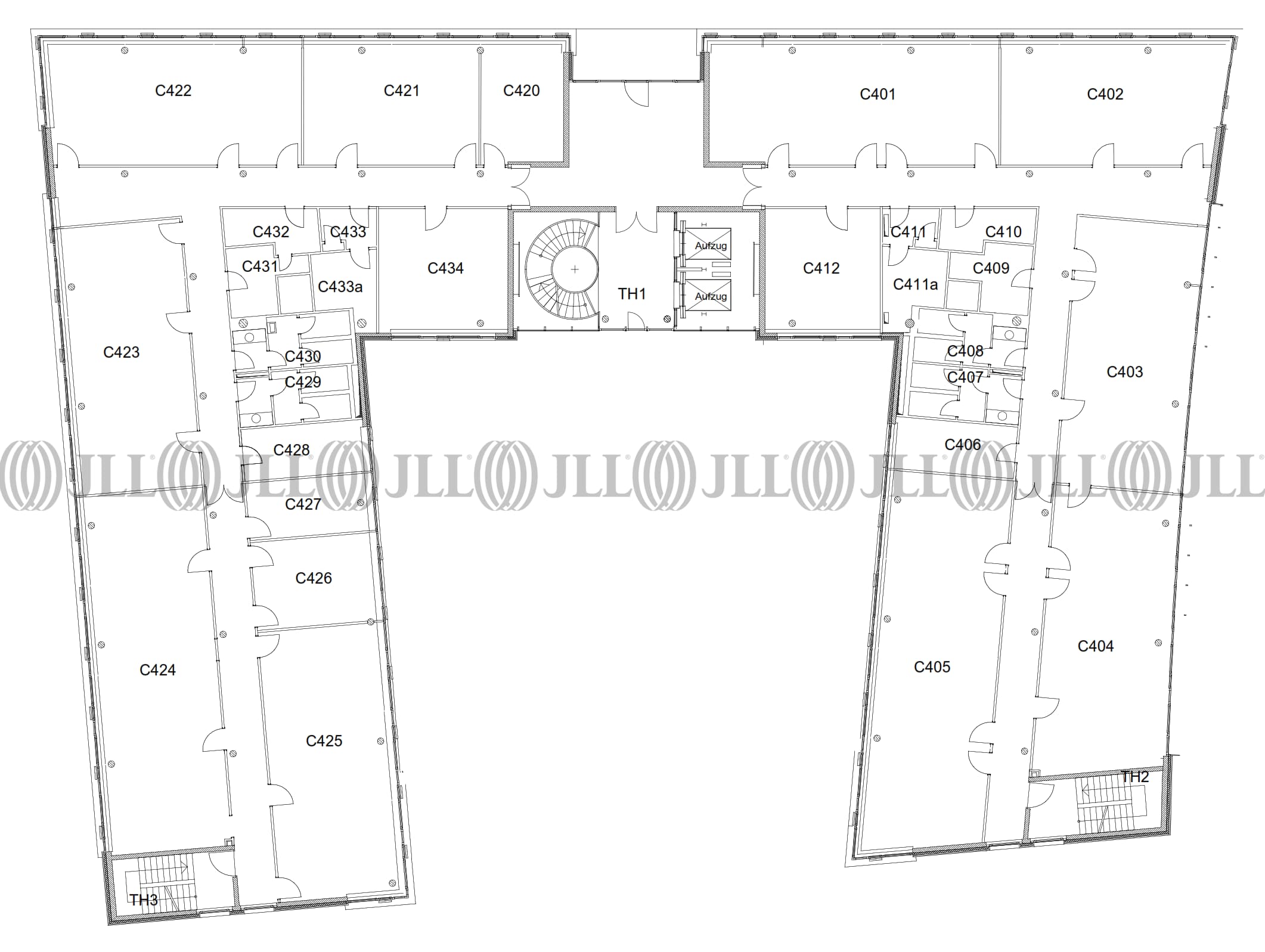
- Grundrisse
- Exposé herunterladen
- Ihr Kontakt
- Anfrage senden
Objekt
Das Bürohaus präsentiert sich als modernes und ansprechendes Gebäude mit fünf Vollgeschossen und einer Tiefgarage. Die U-förmige Struktur ermöglicht eine angenehme Gestaltung der Innenräume und die Erschließung wird über drei Treppenhäuser gewährleistet.
Die Lage des Bürogebäudes im Tiergartendreieck, direkt am Rande des Tiergartens und gegenüber dem renommierten Zoologischen Garten, ist unschlagbar! Das Objekt profitiert von einer erstklassigen Lage direkt am Landwehrkanal, zwischen dem Botschaftsviertel und der City West. Ein perfektes Zusammenspiel aus exklusiver Sichtbarkeit und hervorragender Anbindung an die wichtigsten Geschäftszentren der Stadt.
Nicht nur das Design und die Lage zeichnen dieses Bürohaus aus, sondern auch seine nachhaltige Ausrichtung. Das Dach ist mit einer hochmodernen Photovoltaikanlage ausgestattet, die zur umweltfreundlichen Energieerzeugung beiträgt. Zusätzlich wurde das Dach neu gestaltet und erhielt eine begehrte Auszeichnung vom Bundesverband der Gründächer e.V. für sein außergewöhnliches Gründachkonzept. Das Bürohaus ist stolzer Inhaber des DGNB-Zertifikats in Platin für nachhaltige Büro- und Verwaltungsgebäude.
Das Bürohaus bietet vielseitige Nutzungsmöglichkeiten: Ob als Single-Tenant oder als Multi-Tenant - all das ist hier möglich. Die flexiblen Räumlichkeiten lassen sich an individuellen Bedürfnisse und Arbeitsanforderungen anpassen.
Die Lage des Bürogebäudes im Tiergartendreieck, direkt am Rande des Tiergartens und gegenüber dem renommierten Zoologischen Garten, ist unschlagbar! Das Objekt profitiert von einer erstklassigen Lage direkt am Landwehrkanal, zwischen dem Botschaftsviertel und der City West. Ein perfektes Zusammenspiel aus exklusiver Sichtbarkeit und hervorragender Anbindung an die wichtigsten Geschäftszentren der Stadt.
Nicht nur das Design und die Lage zeichnen dieses Bürohaus aus, sondern auch seine nachhaltige Ausrichtung. Das Dach ist mit einer hochmodernen Photovoltaikanlage ausgestattet, die zur umweltfreundlichen Energieerzeugung beiträgt. Zusätzlich wurde das Dach neu gestaltet und erhielt eine begehrte Auszeichnung vom Bundesverband der Gründächer e.V. für sein außergewöhnliches Gründachkonzept. Das Bürohaus ist stolzer Inhaber des DGNB-Zertifikats in Platin für nachhaltige Büro- und Verwaltungsgebäude.
Das Bürohaus bietet vielseitige Nutzungsmöglichkeiten: Ob als Single-Tenant oder als Multi-Tenant - all das ist hier möglich. Die flexiblen Räumlichkeiten lassen sich an individuellen Bedürfnisse und Arbeitsanforderungen anpassen.
Zertifizierungen
Energieausweis
DGNB: PlatinumFür diese Liegenschaft liegt ein Verbrauchsausweis vom 18.10.2022 vom Eigentümer/Vermieter vor. Die wesentlichen Energieträger der Liegenschaft sind Fernwärme, Heizwerk, fossil, Nahwärme. Der Endenergieverbrauch Strom beträgt 138.00 kWh/(m²*a). Der Endenergieverbrauch Wärme beträgt 140.00 kWh/(m²*a).
Verfügbare Fläche
Lage und Verkehrsanbindung
- Hauptbahnhof, Berlin, Fahrzeit: 10 min
- U-Bahn, U Wittenbergplatz; Linien U1, U2, U3, Gehzeit: 13 min
- Bus, Corneliusbrücke; Line 200, Gehzeit: 1 min
- Bundesautobahn, A 100, Fahrzeit: 12 min
- Flughafen, Berlin Brandenburg, Fahrzeit: 35 min
Ihr Kontakt

Gerald Dietzold
Ihr Kontakt
Marktinformationen
Mietmarkt
Tiergarten, Berlin
siehe 1 passende MietobjekteErfahren Sie mehr
* Durchschnittspreis auf Grundlage historischer Transaktionen.









