Büros
ID B2783Provisionsfrei
Büroimmobilie - Berlin, Charlottenburg - B2783
Charlottenburg, 10707, Berlin, Berlin
28,90 € / m²
- Fläche439 m²
- VerfügbarkeitSofort
- Ausstattung
- Lage und Verkehrsanbindung
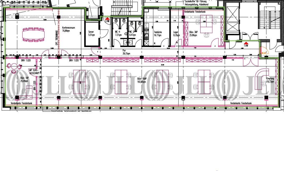
- Grundriss
- Exposé herunterladen
- Ihr Kontakt
- Anfrage senden
Verfügbare Fläche
Lage und Verkehrsanbindung
Das Objekt befindet sich im Berliner Stadtteil Wilmersdorf direkt am Olivaer Platz - zwischen Kurfürstendamm und Lietzenburger Straße. Der Kufürstendamm zeichnet sich durch eine Vielzahl von renommierten Restaurants und Einzelhändlern aus. Dienstleister des täglichen Bedarfs befinden sich in der Nähe.
Ihr Kontakt

Alexandra Teich
Ihr Kontakt
Marktinformationen
Mietmarkt
Charlottenburg, Berlin
Gew. Ø-Miete
28,90 € / m²
siehe 101 passende MietobjekteErfahren Sie mehr* Durchschnittspreis auf Grundlage historischer Transaktionen.





