Büros
ID B2782Büroimmobilie - Berlin, Charlottenburg - B2782
Charlottenburg, 14057, Berlin, Berlin
Provisionspflichtig: bei Anmietung 3 Netto-Monatsmieten zzgl. gesetzlicher Umsatzsteuer.** der Wert kann je nach Vertragslaufzeit variieren.
35 € / m²
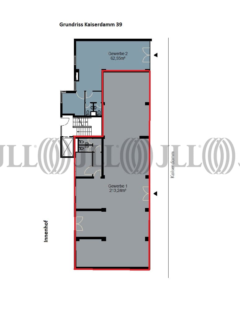
- Fläche213 m²
- VerfügbarkeitSofort
- Objekt
- Lage und Verkehrsanbindung
- Grundriss
- Exposé herunterladen
- Ihr Kontakt
- Anfrage senden
Objekt
Das Wohn- und Geschäftshaus wurde im Jahr 1976 errichtet. Es verfügt über eine moderne Ausstattung, die den heutigen Anforderungen an Arbeits- und Wohnkomfort gerecht wird. Die angebotenen Gewerbeeinheiten eignen sich sowohl für Büro- als auch für Praxisräume.
Zertifizierungen
Energieausweis
Für diese Liegenschaft liegt ein Verbrauchsausweis vom 19.03.2018 vom Eigentümer/Vermieter vor. Der wesentliche Energieträger der Liegenschaft ist Fernwärme. Endenergieverbrauch: 90 kWh/(m²*a)Verfügbare Fläche
Lage und Verkehrsanbindung
Das Bürogebäude befindet sich in einer prominenten Lage im westlichen Zentrum Berlins, im Bezirk Charlottenburg-Wilmersdorf. Dieser Stadtteil ist bekannt für seine überdurchschnittliche Kaufkraft und hohe Beliebtheit, was sich in einer vielfältigen Branchenlandschaft widerspiegelt. In unmittelbarer Nähe haben sich zahlreiche Unternehmen aus der Medien- und Kommunikationsbranche angesiedelt, angezogen von der Nähe zum Rundfunk Berlin-Brandenburg (rbb) und dem Messegelände. Die Lage zeichnet sich durch eine exzellente Anbindung an den öffentlichen Nahverkehr und die Stadtautobahn aus, was den Standort für Unternehmen besonders attraktiv macht. Diverse Einkaufsstraßen von internationalem Renommee wie der Kurfürstendamm sind schnell zu erreichen und bieten ein hochwertiges Umfeld.
- Flughafen, Berlin-Brandenburg, Fahrzeit: 25 min
- Bundesautobahn, A 100, Fahrzeit: 3 min
- Hauptbahnhof, Berlin , Fahrzeit: 15 min
- U-Bahn, Theodor-Heuss-Platz, Linie U2, Gehzeit: 3 min
- Bus, U Theodor-Heuss-Platz, Linien 143, 218, 349, Gehzeit: 3 min
Ihr Kontakt

Alexandra Teich
Ihr Kontakt
Marktinformationen
Mietmarkt
Charlottenburg, Berlin
Gew. Ø-Miete
35 € / m²
siehe 102 passende MietobjekteErfahren Sie mehr* Durchschnittspreis auf Grundlage historischer Transaktionen.

