Büros
ID B2781Provisionsfrei
Aktualisiert
Büroimmobilie - Leipzig, Zentrum - B2781
Zentrum, 04109, Leipzig, Sachsen
17 € / m²
- Fläche429 - 1.363 m²
- VerfügbarkeitSofort
- Objekt
- Lage und Verkehrsanbindung
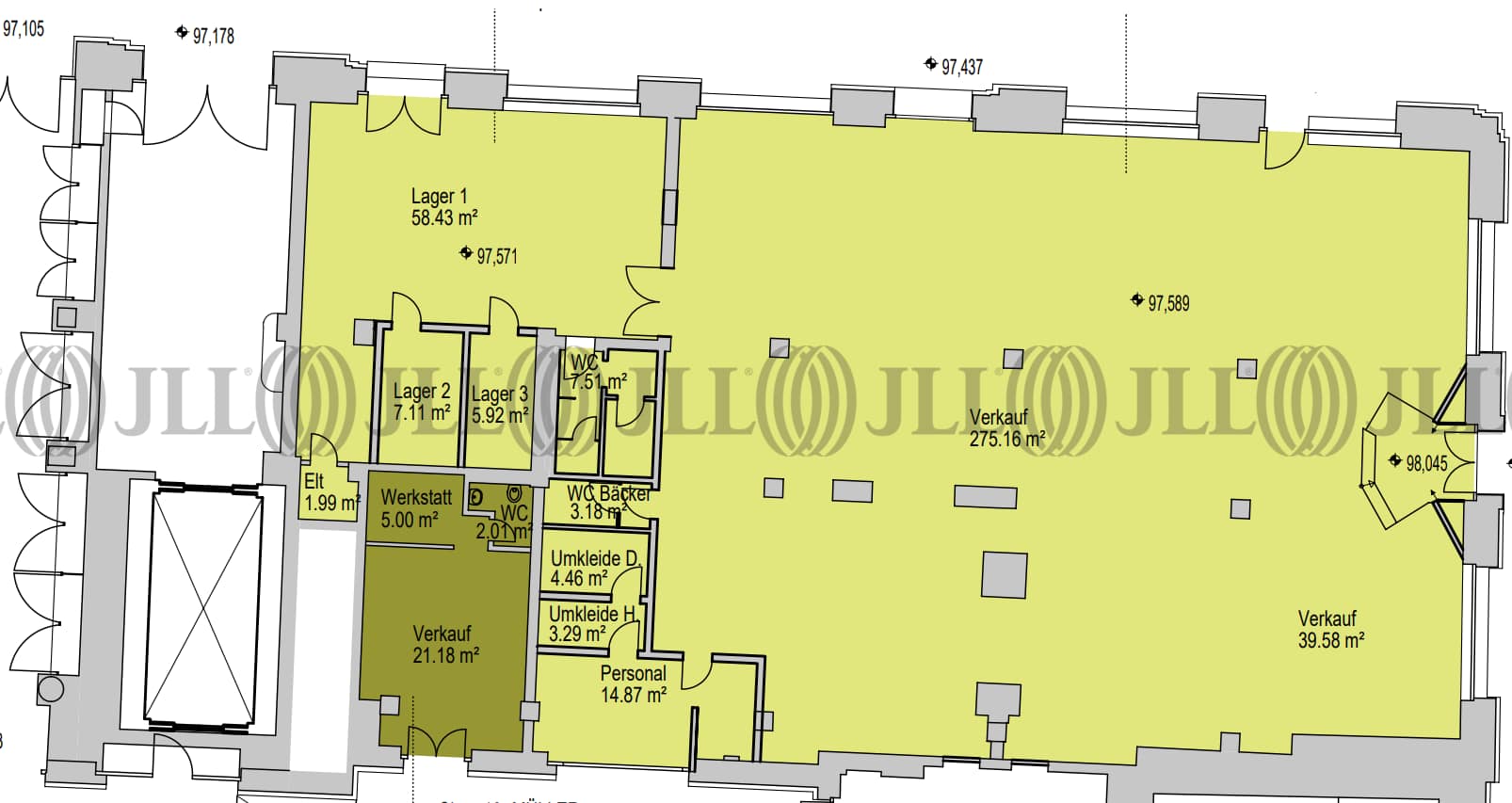
- Grundrisse
- Exposé herunterladen
- Ihr Kontakt
- Anfrage senden
Objekt
Das ehemalige Messehaus wurde nach Plänen der Architekten Rayher, Korber und Müller in den Jahren 1894 bis 1901 in drei Bauabschnitten errichtet. In den Jahren 1993 – 1996 wurde das Ensemble mit der neobarocken Fassade und den Treppenhäusern grundlegend saniert. Das Büro- und Geschäftshaus beherbergt kein Kaufhaus, sondern die klassische Mischung aus Einzelhandel, Gastronomie und Büroflächen. Es gibt eine Bürofläche im Erdgeschoß über 429 m² sowie eine vakante Fläche im 4. Obergeschoss. Die Letztere besteht aus zwei Teilbereichen, verbunden durch eine Schleuse.
Die Fläche bietet verschiedene Nutzungsmöglichkeiten:
Teilbereich 1: Klassische Bürostruktur mit kleineren Räumen
Teilbereich 2: Großraum mit zusätzlicher offener Galeriefläche, erreichbar über eine Treppe
Die unterschiedlichen Grundrisse ermöglichen eine flexible Anpassung an diverse Arbeitskonzepte. Die Fläche eignet sich für Unternehmen, die eine Kombination aus konzentrierten Arbeitsbereichen und offenen Kollaborationsflächen suchen.
Der finale Mietpreis basiert auf gewünschten Grundrissanpassungen, mieterspezifischen Ausbauwünschen und der vereinbarten Vertragslaufzeit.
Die Fläche bietet verschiedene Nutzungsmöglichkeiten:
Teilbereich 1: Klassische Bürostruktur mit kleineren Räumen
Teilbereich 2: Großraum mit zusätzlicher offener Galeriefläche, erreichbar über eine Treppe
Die unterschiedlichen Grundrisse ermöglichen eine flexible Anpassung an diverse Arbeitskonzepte. Die Fläche eignet sich für Unternehmen, die eine Kombination aus konzentrierten Arbeitsbereichen und offenen Kollaborationsflächen suchen.
Der finale Mietpreis basiert auf gewünschten Grundrissanpassungen, mieterspezifischen Ausbauwünschen und der vereinbarten Vertragslaufzeit.
Zertifizierungen
Energieausweis
Für diese Liegenschaft liegt ein Verbrauchsausweis vom 18.05.2009 vom Eigentümer/Vermieter vor. Der wesentliche Energieträger der Liegenschaft ist Fernwärme. Der Endenergieverbrauch Strom beträgt 172.76 kWh/(m²*a). Der Endenergieverbrauch Wärme beträgt 163.60 kWh/(m²*a).Verfügbare Fläche
Lage und Verkehrsanbindung
Die Leipziger Innenstadt zeichnet sich durch eine kompakte City mit sehr attraktiven Handelsstrukturen und einem Mix aus aufwendig sanierten Handelshöfen, Passagen und stilvollen Neubauten aus. Das Geschäftshaus befindet sich am Neumarkt 24 unmittelbar am ehemaligen Kartstadt Leipzig im Herzen der Stadt zwischen dem Leipziger Markt, dem Augustusplatz und dem Wilhelm-Leuschner-Platz. Die Liegenschaft ist lediglich 4 Gehminuten vom Leipziger Markt entfernt. Hier befindet sich die unterirdische Haltestelle der S-Bahn, die seit Ende 2013 die Leipziger Innenstadt mit ihrem mitteldeutschen Umfeld verbindet. Halle/Saale, Zwickau, Dessau und Hoyerswerda sind nunmehr umstandslos zu erreichen.
- Hauptbahnhof, Leipzig, Gehzeit: 11 min
- S-Bahn, Leipzig Markt, Gehzeit: 3 min
- Bus, Leipzig Markt, Gehzeit: 3 min
- Flughafen, Leipzig/ Halle, Fahrzeit: 26 min
Ihr Kontakt

Kay Förster
Ihr Kontakt
Marktinformationen
Mietmarkt
Zentrum, Leipzig
siehe 48 passende MietobjekteErfahren Sie mehr
* Durchschnittspreis auf Grundlage historischer Transaktionen.
















