Büros
ID B2748Provisionsfrei
Büroimmobilie - Berlin, Wedding - B2748
Wedding, 13353, Berlin, Berlin
24 € / m²
- Fläche600 - 21.463 m²
- VerfügbarkeitSofort
- Objekt
- Ausstattung
- Lage und Verkehrsanbindung
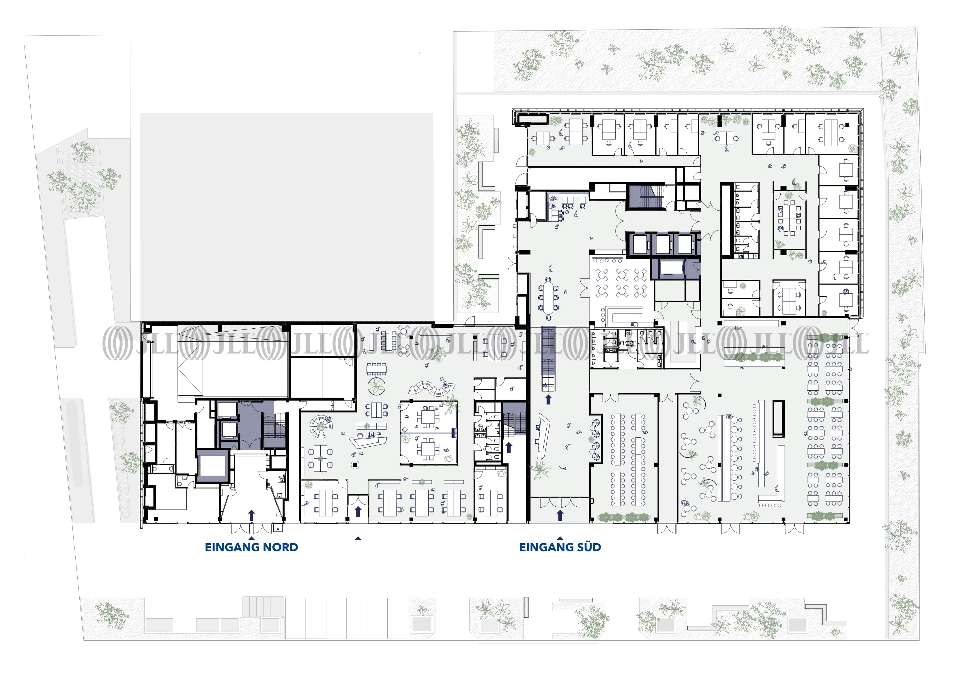
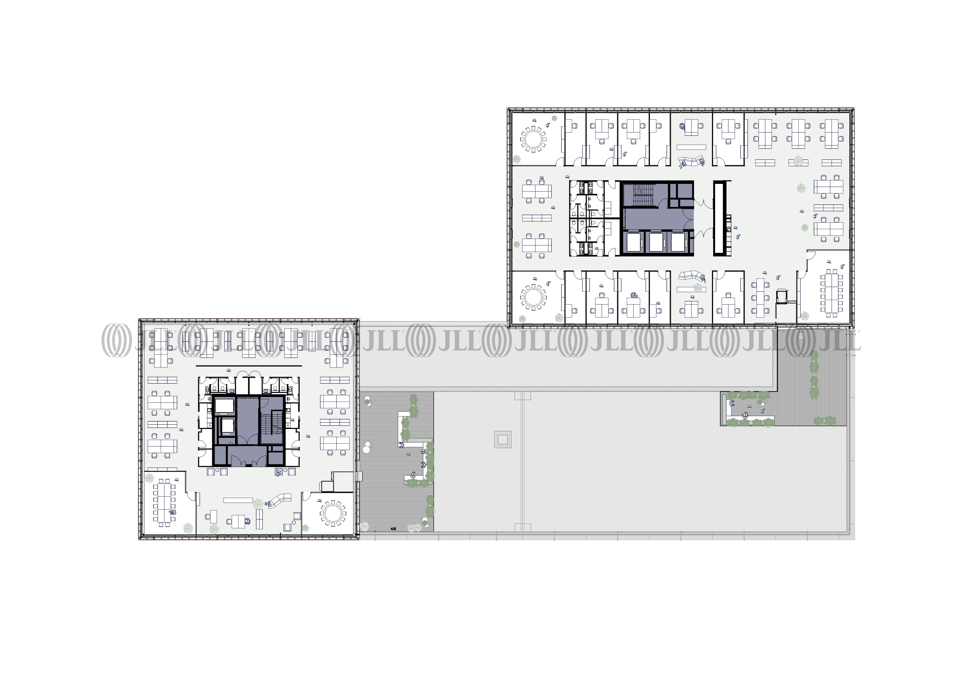
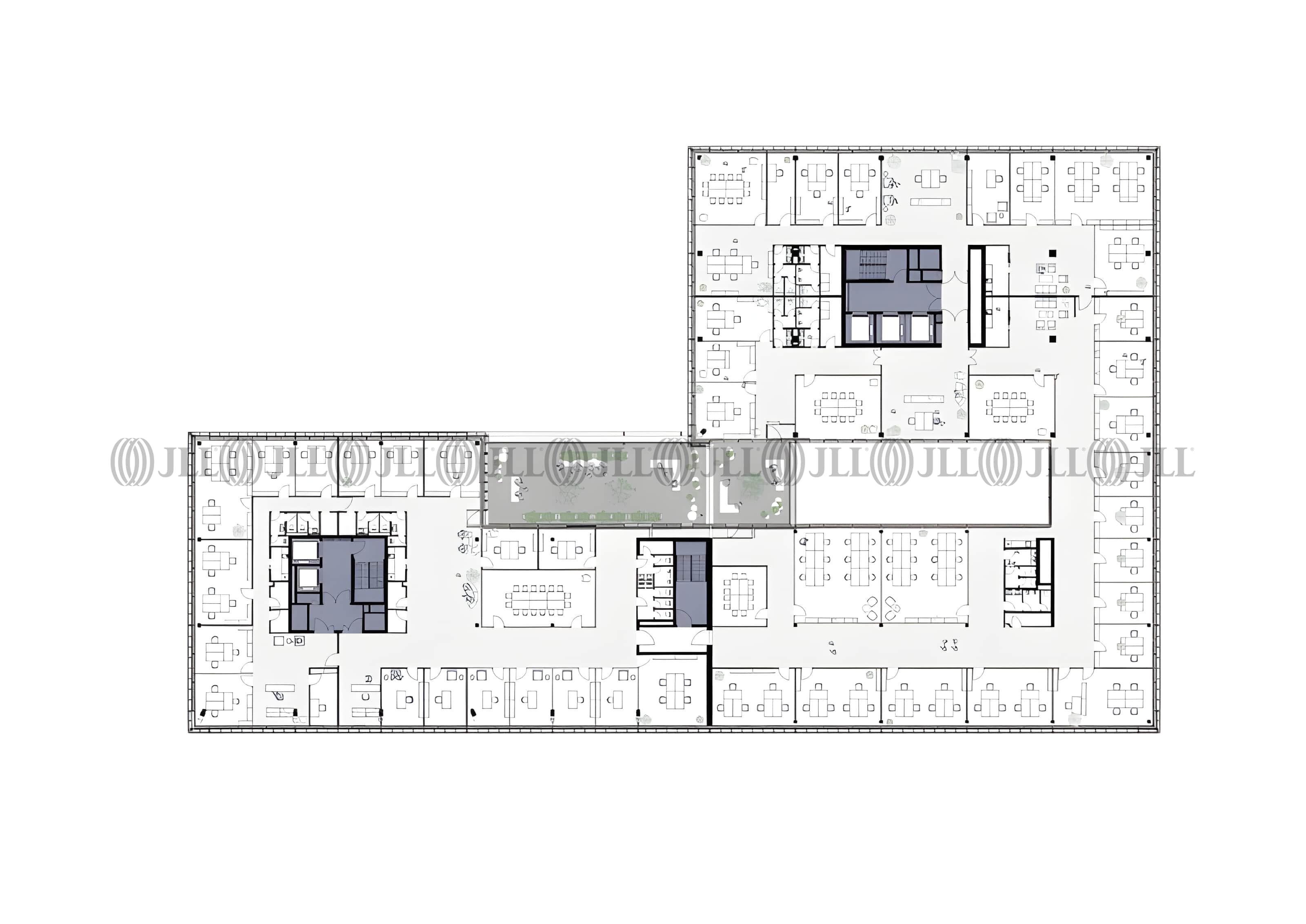
- Grundrisse
- Exposé herunterladen
- Ihr Kontakt
- Anfrage senden
Objekt
Dieses repräsentative Bürogebäude besticht durch seine moderne und markante Architektur mit einer hochwertigen Fassadengestaltung. Bodentiefe Fenster sorgen für lichtdurchflutete und helle Arbeitsbereiche auf allen Etagen. Die flexibel gestaltbaren Grundrisse ermöglichen die Umsetzung verschiedenster Bürokonzepte, von Einzelbüros bis hin zu offenen Arbeitslandschaften, und passen sich so optimal den Bedürfnissen zukünftiger Nutzer an. Ein besonderes Highlight sind die großzügigen Dachterrassen, die einen beeindruckenden Blick über die Stadt bieten und als exklusive Erholungs- und Veranstaltungsflächen dienen. Eine hochmoderne technische Ausstattung sowie hauseigene Tiefgaragenstellplätze und Fahrradabstellmöglichkeiten mit Duschräumen runden das hochwertige Gesamtkonzept ab und schaffen ein erstklassiges Arbeitsumfeld.
Zertifizierungen
Energieausweis
LEED: Platinum WELL: Gold WIREDSCORE: GoldVerfügbare Fläche
Lage und Verkehrsanbindung
Der Standort befindet sich in einem aufstrebenden und dynamischen Quartier im Herzen Berlins, das sich durch eine Mischung aus modernen Büro- und Wohngebäuden sowie die Nähe zum Wasser auszeichnet. Die exzellente Verkehrsanbindung ist ein entscheidender Vorteil: Der Hauptbahnhof, ein zentraler Knotenpunkt für den öffentlichen Nah- und Fernverkehr, ist in wenigen Minuten fußläufig erreichbar. Das direkte Umfeld bietet eine hervorragende Infrastruktur mit einer Vielzahl an Restaurants, Cafés und Einkaufsmöglichkeiten für den täglichen Bedarf. Zudem sind das Regierungsviertel, zahlreiche kulturelle Einrichtungen und große innerstädtische Grünflächen schnell zu erreichen, was den Standort sowohl für die Arbeit als auch für die Freizeitgestaltung äußerst attraktiv macht.
- Flughafen, Berlin Brandenburg, Fahrzeit: 40 min
- Bundesautobahn, A 100, Fahrzeit: 15 min
- Bus, U-Bahnhof Reinickendorfer Straße; Linie 120, Gehzeit: 5 min
- U-Bahn, Reinickendorfer Straße; Linie U6, Gehzeit: 5 min
- Hauptbahnhof, Berlin, Fahrzeit: 7 min
Ihr Kontakt

Gerald Dietzold
Ihr Kontakt










