Büros
ID B2746Provisionsfrei
Büroimmobilie - Leipzig, Zentrum - B2746
Zentrum, 04109, Leipzig, Sachsen
16 € / m²
- Fläche180 - 567 m²
- VerfügbarkeitSofort
- Objekt
- Ausstattung
- Lage und Verkehrsanbindung
- Grundrisse
- Exposé herunterladen
- Ihr Kontakt
- Anfrage senden
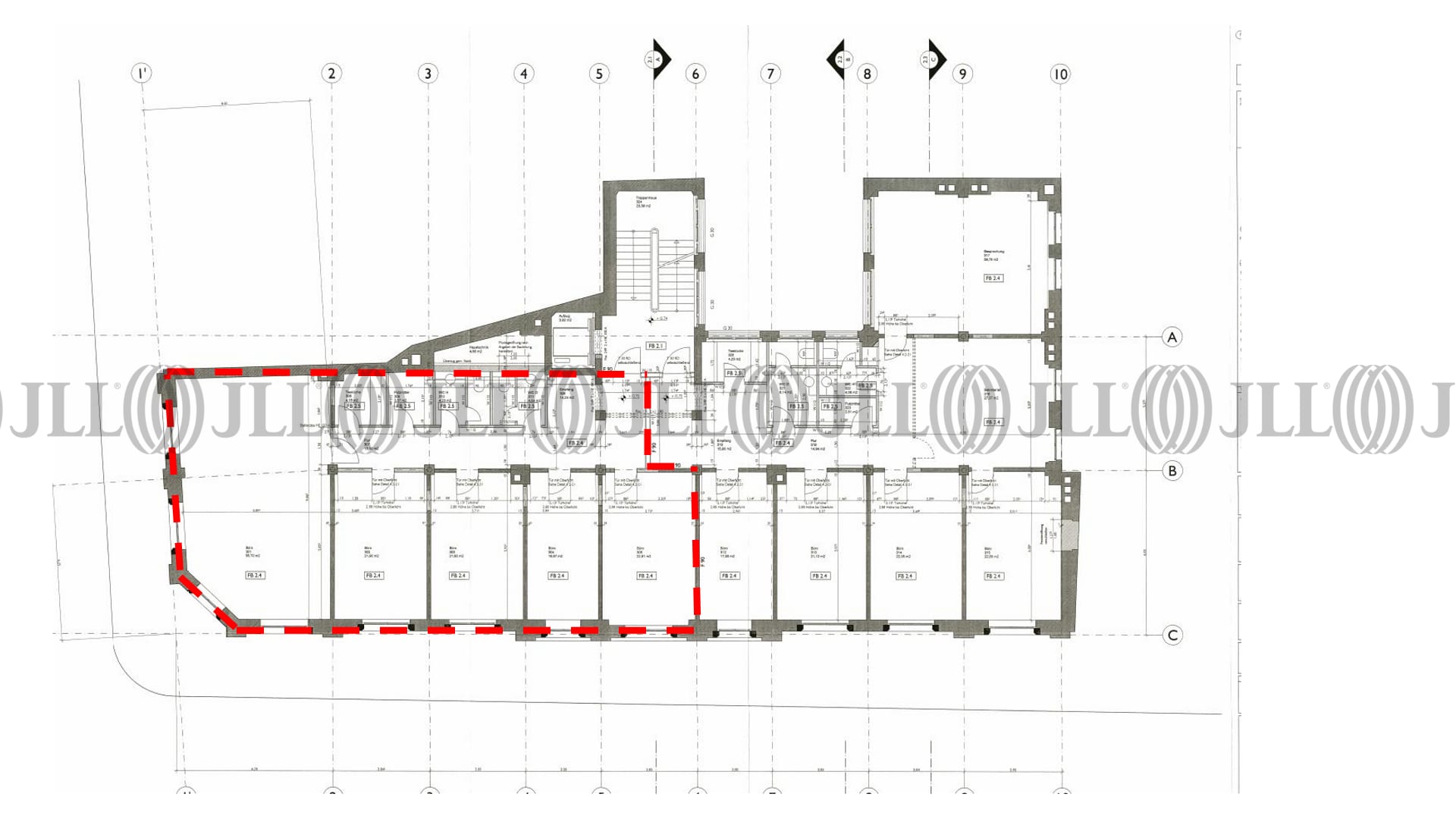
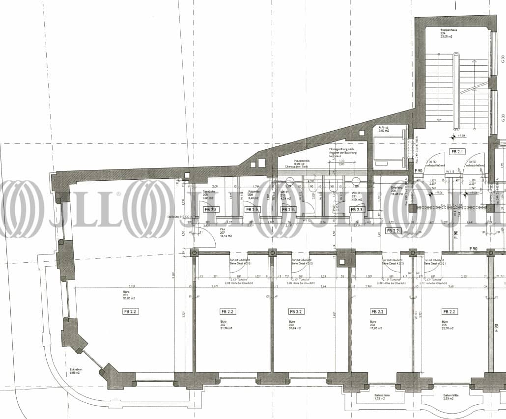
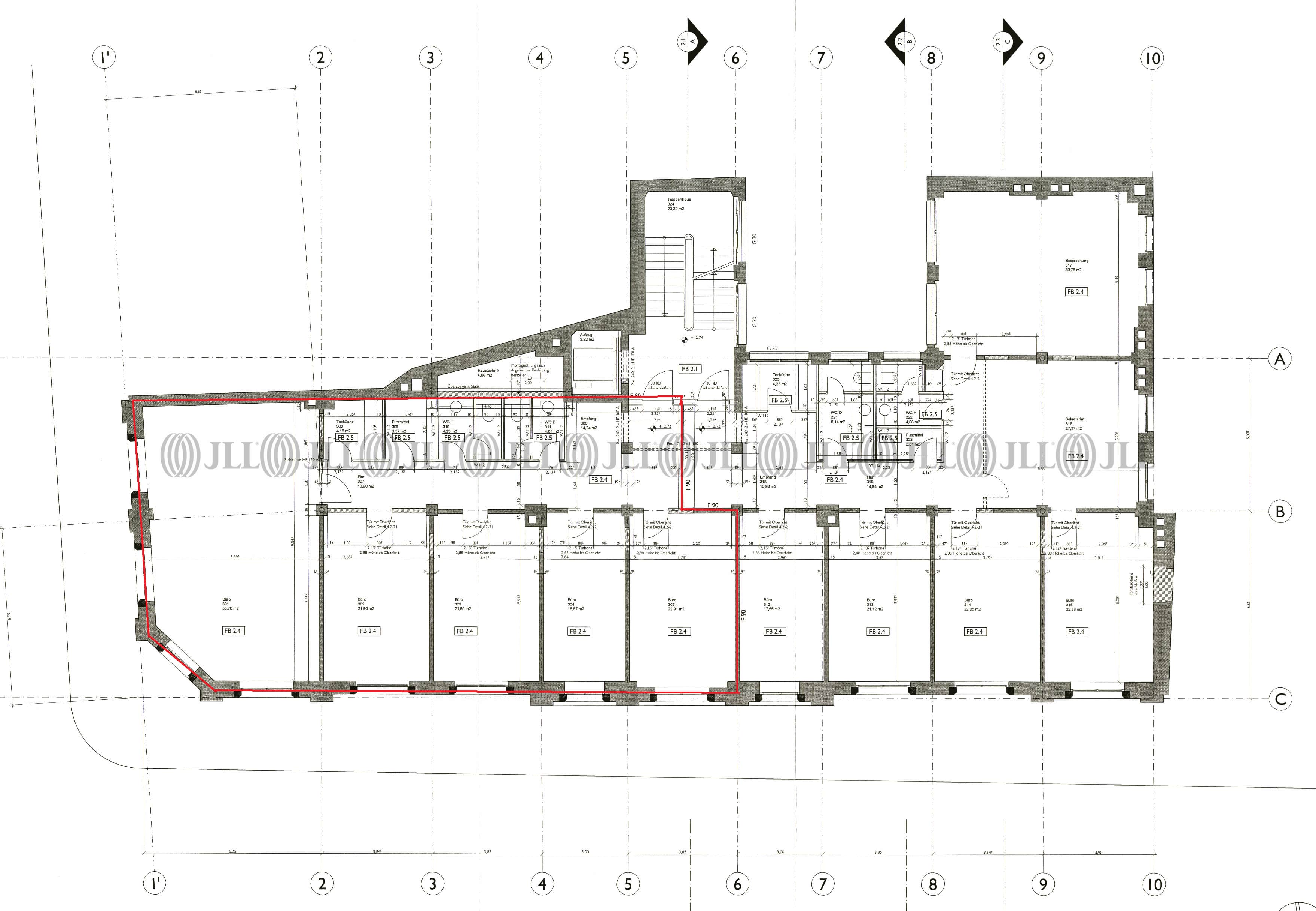
Objekt
Im 1. OG bis 3. OG steht jeweils eine Mietfläche frei. Erstere zeigt eine offene Struktur mit großzügigen Open Space-Bereich. Der Charme vergangener Zeiten wird durch wunderschöne, fast bodentiefe Rundbogenfenster und teilweise Parkettfußboden unterstrichen. Die Flächen im 2. und 3. OG besitzen eine klassische Bürostruktur mit unterschiedlich großen Räumen. Die Immobilie besticht durch eine repräsentative Fassade und verleiht Ihren geschäftlichen Aktivitäten einen professionellen und ansprechenden Auftritt.
Bitte beachten Sie, dass der Grundriss des 1. OG im Exposé nicht den tatsächlichen Bestand zeigt. Der finale Mietpreis richtet sich nach dem gewünschten Ausbau und der angestrebten Vertragslaufzeit.
Bitte beachten Sie, dass der Grundriss des 1. OG im Exposé nicht den tatsächlichen Bestand zeigt. Der finale Mietpreis richtet sich nach dem gewünschten Ausbau und der angestrebten Vertragslaufzeit.
Verfügbare Fläche
Lage und Verkehrsanbindung
Die Leipziger Innenstadt zeichnet sich durch eine kompakte City mit sehr attraktiven Handelsstrukturen und einem Mix aus aufwendig sanierten Handelshöfen, Passagen und stilvollen Neubauten aus. Die Ritterstraße, an jener sich das Objekt befindet, verläuft in nördlicher Richtung von der Grimmaischen Straße zum Leipziger Hauptbahnhof. Eine breite Auswahl verschiedener Einkaufsmöglichkeiten und gastronomischer Angebote ist durch die zentrale Lage des Geschäftshauses gegeben. Die Immobilie ist lediglich 9 Gehminuten vom Leipziger Markt entfernt. Hier befindet sich die unterirdische Haltestelle der S-Bahn, die die Leipziger Innenstadt mit ihrem mitteldeutschen Umfeld verbindet. Halle/Saale, Zwickau, Dessau und Hoyerswerda sind nunmehr umstandslos zu erreichen.
- Flughafen, Leipzig/Halle, Fahrzeit: 25 min
- Hauptbahnhof, Leipzig, Gehzeit: 5 min
- Bus, Goethestraße Linie 89, Gehzeit: 3 min
Ihr Kontakt

Kay Förster
Ihr Kontakt
Marktinformationen
Mietmarkt
Zentrum, Leipzig
siehe 40 passende MietobjekteErfahren Sie mehr
* Durchschnittspreis auf Grundlage historischer Transaktionen.





