Büros
ID B2741Provisionsfrei
Aktualisiert
Büroimmobilie - Leipzig, Zentrum - B2741
Zentrum, 04109, Leipzig, Sachsen
Kontaktieren Sie uns für den Preis
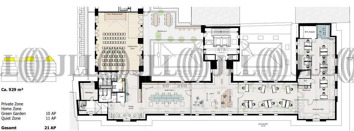
- Fläche929 - 5.153 m²
- VerfügbarkeitIV quartal 2026
- Objekt
- Ausstattung
- Lage und Verkehrsanbindung
- Grundrisse
- Exposé herunterladen
- Ihr Kontakt
- Anfrage senden
Objekt
Büromieter finden im Dresdner Hof in zentralster Lage ein einzigartiges Flächenangebot: ca. 5.135 m² auf der 1. & 2. sowie auf der 5. & 6. Etage bieten ein klassisches Loftambiente und große Flexibilität der Grundrisse, die verschiedenste Raumkonzepte von Open-Space bis Einzelbüros möglich machen. Die repräsentativen Büroräume mit leistungsstarker Konnektivität und dem authentischen Charme eines Baudenkmals sind perfekte Voraussetzungen, um einen identitätsstiftenden Unternehmensstandort und attraktive Arbeitswelten zu schaffen.
Der finale Mietpreis richtet sich nach den gewünschten Grundrissanpassungen, mieterspezifischen Ausbauwünschen und der Vertragslaufzeit.
Der finale Mietpreis richtet sich nach den gewünschten Grundrissanpassungen, mieterspezifischen Ausbauwünschen und der Vertragslaufzeit.
Zertifizierungen
Energieausweis
DGNB: GoldVerfügbare Fläche
Lage und Verkehrsanbindung
Die Leipziger Innenstadt zeichnet sich durch eine kompakte City mit sehr attraktiven Handelsstrukturen und einem Mix aus aufwendig sanierten Handelshöfen, Passagen und stilvollen Neubauten aus. Das Geschäftshaus befindet sich am Neumarkt 24 unmittelbar am ehemaligen Kartstadt Leipzig im Herzen der Stadt zwischen dem Leipziger Markt, dem Augustusplatz und dem Wilhelm-Leuschner-Platz. Die Liegenschaft ist lediglich 4 Gehminuten vom Leipziger Markt entfernt. Hier befindet sich die unterirdische Haltestelle der S-Bahn, die seit Ende 2013 die Leipziger Innenstadt mit ihrem mitteldeutschen Umfeld verbindet. Halle/Saale, Zwickau, Dessau und Hoyerswerda sind nunmehr umstandslos zu erreichen.
- S-Bahn, Leipzig-Markt, Gehzeit: 4 min
- Hauptbahnhof, Leipzig, Gehzeit: 10 min
- Hauptbahnhof, Leipzig, Fahrzeit: 6 min
- Bus, Reichstraße Linie 89, Gehzeit: 3 min
- Flughafen, Leipzig/Halle, Fahrzeit: 23 min
- Bundesautobahn, A14, Fahrzeit: 15 min
- Bundesautobahn, A38, Fahrzeit: 15 min
Ihr Kontakt

Kay Förster
Ihr Kontakt
Marktinformationen
Mietmarkt
Zentrum, Leipzig
siehe 40 passende MietobjekteErfahren Sie mehr
* Durchschnittspreis auf Grundlage historischer Transaktionen.












