Büros
ID B2721Provisionsfrei
Büroimmobilie - Berlin, Oberschöneweide - B2721
Oberschöneweide, 12459, Berlin, Berlin
24 € / m²
- Fläche2.000 - 7.830 m²
- VerfügbarkeitIV quartal 2027
- Objekt
- Ausstattung
- Lage und Verkehrsanbindung
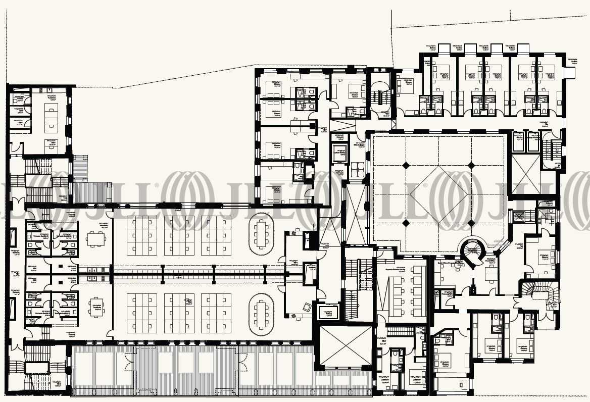
- Grundrisse
- Exposé herunterladen
- Ihr Kontakt
- Anfrage senden
Objekt
Die Mauern des denkmalgeschützten Gebäude-Ensembles der ehemaligen Accumulatorenfabrik aus dem Jahr 1912 strahlen auch heute die magische Energie eines langen gesellschaftlichen und kulturellen Lebens aus. Genau an diese Bedeutung als Ort für Menschen knüpft das Objekt heute wieder an.
Die drei historischen Bestandsgebäude werden sorgsam saniert und um einen Neubau erweitert. Stilistisch greift das renommierte Architekturbüro Bruno Fioretti Marquez den Glanz der Vergangenheit auf und erweitert diesen harmonisch zu einer zeitgemäßen, charaktervollen Einheit. Wilhelmine erhält dadurch neue und vielseitige Entfaltungsmöglichkeiten als Standort für Zusammenarbeit, Innovation und Kreativität.
Das Objekt liegt etwas zurückgesetzt zur Straße. Dadurch entstehen attraktive Flächen – abseits vom direkten Stadtgeschehen. Ein Säulengang erschließt den Eingang und ermöglicht einen geschützten Raum für künftige Happenings. Zudem wird dem Kulturhaus neues Licht geschenkt: die großen, historischen Fenster werden wieder geöffnet. Dadurch erhält das Gebäude vielfältige und zeitgemäße Möglichkeiten der Nutzung. Hauptprofiteur ist das Herzstück, der 600 m² große Saal, der durch das Tageslicht wieder zum Leben erwacht. Auch der gesamte Dachstuhl wird rückseitig mit Fensterflächen ausgestattet. Ein geschütztes Atrium mit begehbarem Dachgarten entsteht im hinteren Bereich – eine Ruhe-Oase inmitten des turbulenten Großstadtlebens. Für den nötigen Weitblick sorgen eine Dachterrasse und zahlreiche Dachgeschoss-Austritte. Das Objekt wird zukünftig viel Licht und Raum für eine moderne Work-Life-Balance bieten.
- Rund 8.017 m² Gesamtmietfläche
- Großer Saal im Kulturhaus mit rund 500 m²
- Rund 490 m² Gastronomie mit Außenterrasse/Garten
- Atrium mit begehbarem Dachgarten
- Verschiedene Dachterrassen
- Variable Nutzungen
Die drei historischen Bestandsgebäude werden sorgsam saniert und um einen Neubau erweitert. Stilistisch greift das renommierte Architekturbüro Bruno Fioretti Marquez den Glanz der Vergangenheit auf und erweitert diesen harmonisch zu einer zeitgemäßen, charaktervollen Einheit. Wilhelmine erhält dadurch neue und vielseitige Entfaltungsmöglichkeiten als Standort für Zusammenarbeit, Innovation und Kreativität.
Das Objekt liegt etwas zurückgesetzt zur Straße. Dadurch entstehen attraktive Flächen – abseits vom direkten Stadtgeschehen. Ein Säulengang erschließt den Eingang und ermöglicht einen geschützten Raum für künftige Happenings. Zudem wird dem Kulturhaus neues Licht geschenkt: die großen, historischen Fenster werden wieder geöffnet. Dadurch erhält das Gebäude vielfältige und zeitgemäße Möglichkeiten der Nutzung. Hauptprofiteur ist das Herzstück, der 600 m² große Saal, der durch das Tageslicht wieder zum Leben erwacht. Auch der gesamte Dachstuhl wird rückseitig mit Fensterflächen ausgestattet. Ein geschütztes Atrium mit begehbarem Dachgarten entsteht im hinteren Bereich – eine Ruhe-Oase inmitten des turbulenten Großstadtlebens. Für den nötigen Weitblick sorgen eine Dachterrasse und zahlreiche Dachgeschoss-Austritte. Das Objekt wird zukünftig viel Licht und Raum für eine moderne Work-Life-Balance bieten.
- Rund 8.017 m² Gesamtmietfläche
- Großer Saal im Kulturhaus mit rund 500 m²
- Rund 490 m² Gastronomie mit Außenterrasse/Garten
- Atrium mit begehbarem Dachgarten
- Verschiedene Dachterrassen
- Variable Nutzungen
Verfügbare Fläche
Lage und Verkehrsanbindung
Eingebettet zwischen Ostkreuz, Rummelsburg und Adlershof liegt Oberschöneweide, direkt im Zentrum der neuen Boom-Achse zum BER. Durch die reizvolle Lage, und in unmittelbarer Nähe zur Spree, bietet der Standort zahlreiche Möglichkeiten für eine neue Unternehmen mit innovativer, umweltbewusster Haltung und wirtschaftlicher Zielsetzung. Direkt gegenüber vom Objekt befindet sich einer der größten Standorte der Hochschule für Technik und Wirtschaft. Die Präsenz der HTW prägt das gesamte Umfeld nachhaltig. In keinem anderen Berliner Bezirk ist das Durchschnittsalter so jung wie in Oberschöneweide. Dieses Potenzial schafft belebende Synergien für Unternehmen aus Technik und Forschung, die sich hier bereits mit Innovations-Hubs angesiedelt haben.
- Flughafen, Berlin Brandenburg, Fahrzeit: 25 min
- Bundesautobahn, A 113, Fahrzeit: 15 min
- Bundesstraße, B 96, Fahrzeit: 30 min
- Straßenbahn/Tram, Rathenaustr./HTW; Linien 27., 60, 61, 67, Gehzeit: 2 min
- Hauptbahnhof, Berlin, Fahrzeit: 40 min
Ihr Kontakt

Steve Ritt
Ihr Kontakt





