Büros
ID B2707Provisionsfrei
Aktualisiert
Büroimmobilie - Berlin, Johannisthal - B2707
Johannisthal, 12489, Berlin, Berlin
18 € / m²
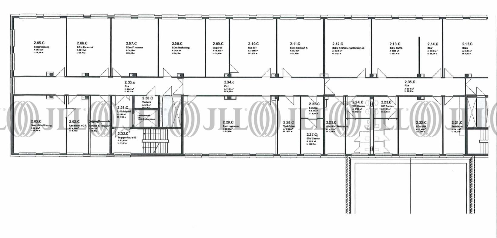
- Fläche175 m²
- VerfügbarkeitSofort
- Objekt
- Ausstattung
- Lage und Verkehrsanbindung
- Grundrisse
- Exposé herunterladen
- Ihr Kontakt
- Anfrage senden
Objekt
Bei dem Gebäude handelt es sich um ein modernes Labor- und Bürogebäude, das speziell für Unternehmen aus den Bereichen Analytik, Biotechnologie und Umwelttechnologie konzipiert wurde. Es beherbergt unter anderem Europas modernstes Laborzentrum für Produktqualität. Die Architektur ermöglicht eine flexible Nutzung der Flächen, die sowohl zeitgemäße Bürokonzepte als auch Forschung und Entwicklung, Prototyping und Showrooms umfassen. Der Komplex bietet skalierbare Flächen und ist auf die Bedürfnisse innovativer Unternehmen ausgerichtet. Im Inneren finden sich neben Büros auch chemische und physikalische Labore sowie Reinräume und Werkstätten.
Verfügbare Fläche
Lage und Verkehrsanbindung
Der Standort befindet sich im Südosten Berlins, in Deutschlands größtem Wissenschafts- und Technologiepark. Dieses Areal gilt als einer der erfolgreichsten Hochtechnologiestandorte Europas und ist ein bedeutender Cluster für Branchen wie Photonik, Optik, erneuerbare Energien und Informationstechnologie. In direkter Nachbarschaft haben sich rund 1.300 Unternehmen sowie 18 wissenschaftliche Einrichtungen, darunter Institute der Humboldt-Universität, angesiedelt. Die Infrastruktur ist hervorragend ausgebaut mit direkter Anbindung an die Autobahn A113 und den öffentlichen Nahverkehr durch S-Bahn, Tram und Buslinien, die eine schnelle Erreichbarkeit der Berliner Innenstadt und des Flughafens Berlin Brandenburg (BER) gewährleisten. Zahlreiche Geschäfte, Hotels, Restaurants und auch Wohnungen prägen das Umfeld und sorgen für eine hohe Aufenthaltsqualität.
- Hauptbahnhof, Berlin, Fahrzeit: 40 min
- S-Bahn, Adlershof; Linien S45, S46, S8, S9, Gehzeit: 8 min
- Straßenbahn/Tram, Adlershof; Linien 67, 68, Gehzeit: 8 min
- Bus, Adlershof; Linien 162, 163, 164, 260, Gehzeit: 8 min
- Flughafen, Berlin Brandenburg, Fahrzeit: 15 min
Ihr Kontakt

Tobias Rodewald
Ihr Kontakt





