Büros
ID B2685Provisionsfrei
Büroimmobilie - Berlin, Moabit - B2685
Moabit, 10553, Berlin, Berlin
23 € / m²
- Fläche2.500 - 18.815 m²
- Verfügbarkeit24 Monate ab Vertragsunterzeichnung
- Objekt
- Ausstattung
- Lage und Verkehrsanbindung
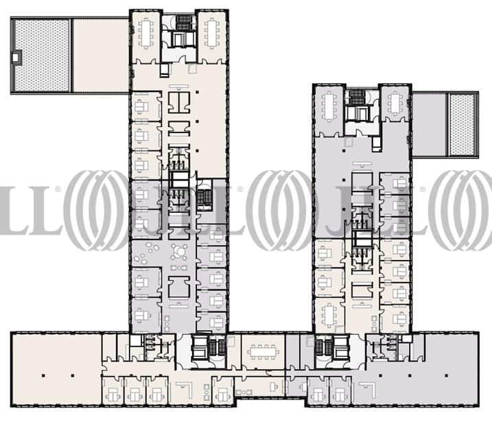
- Grundrisse
- Exposé herunterladen
- Ihr Kontakt
- Anfrage senden
Objekt
Hochflexible, sehr effiziente Grundrisse. Individuell umsetzbar: Open Space, Zellenbürostrukturen oder Mischformen.
Durch die kleinteiligen Nutzungseinheiten lässt sich der Flächenbedarf maßgeschneidert abbilden.
Durch die kleinteiligen Nutzungseinheiten lässt sich der Flächenbedarf maßgeschneidert abbilden.
Zertifizierungen
Energieausweis
DGNB: GoldVerfügbare Fläche
Lage und Verkehrsanbindung
Das Objekt liegt im Nordwesten des Stadtbezirks Berlin-Mitte im Ortsteil Moabit, innerhalb des Berliner S-Bahn-Rings.
- Hauptbahnhof, Berlin, Fahrzeit: 15 min
- S-Bahn, Beusselstraße; Linien S41, S42. S46, S47, Gehzeit: 5 min
- Bus, S-Beusselstraße; Linien 106, 123, N23, Gehzeit: 5 min
- Bundesautobahn, A 100, Fahrzeit: 2 min
- Bundesstraße, B 96, Fahrzeit: 5 min
- Flughafen, Berlin Brandenburg, Fahrzeit: 35 min
Ihr Kontakt

Gerald Dietzold
Ihr Kontakt
Marktinformationen
Mietmarkt
Moabit, Berlin
Gew. Ø-Miete
23 € / m²
siehe 33 passende MietobjekteErfahren Sie mehr* Durchschnittspreis auf Grundlage historischer Transaktionen.




