Büros
ID B2595Provisionsfrei
Büroimmobilie - Berlin, Moabit - B2595
Moabit, 10557, Berlin, Berlin
30 € / m²
- Fläche485 - 5.021 m²
- VerfügbarkeitSofort
- Objekt
- Ausstattung
- Lage und Verkehrsanbindung
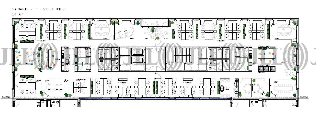
- Grundrisse
- Exposé herunterladen
- Ihr Kontakt
- Anfrage senden
Objekt
Das Büro gmp Architekten hat das zweigeteilte Ensemble nahe dem Nordhafen mit hellen, großstädtischen Fassaden entworfen, an denen Bronze- und Messinggeländer optische Akzente setzen.
Einzelhandel und Gastronomie sorgen für belebte Erdgeschosszonen, auch Büroflächen sind in beiden Gebäuden enthalten. Die beiden Gebäude stellen die nördliche und südliche Einfassung des attraktiven Nordhafenplatzes dar.
Einzelhandel und Gastronomie sorgen für belebte Erdgeschosszonen, auch Büroflächen sind in beiden Gebäuden enthalten. Die beiden Gebäude stellen die nördliche und südliche Einfassung des attraktiven Nordhafenplatzes dar.
Verfügbare Fläche
Lage und Verkehrsanbindung
Das Quartier Heidestraße wird als Herzstück der entstehenden Europacity geplant. Die einzigartige Vernetzung wird durch die zentrale Lage und die Nähe zum Hauptbahnhof gewährleistet. Ausgeprägte Grünflächen prägen das Gesamtkonzept. Ab voraussichtlich 2026 nimmt die S Bahnstation Perleberger Brücke (S21) den Betrieb auf. Die Station liegt in unmittelbarer Nähe zum Objekt.
- S-Bahn, Hauptbahnhof, S3, S5, S7, S75, Gehzeit: 10 min
- U-Bahn, Hauptbahnhof; Linie U5, U55, Gehzeit: 10 min
- Straßenbahn/Tram, Hauptbahnhof; Linien M5, M8, M10, Gehzeit: 10 min
- Bus, Lesser-Ury-Weg, Linien 147, M85, Gehzeit: 5 min
- Bundesautobahn, A 100, Fahrzeit: 15 min
- Flughafen, Berlin Brandenburg, Fahrzeit: 45 min
Ihr Kontakt

Gerald Dietzold
Ihr Kontakt
Marktinformationen
Mietmarkt
Moabit, Berlin
Gew. Ø-Miete
30 € / m²
siehe 33 passende MietobjekteErfahren Sie mehr* Durchschnittspreis auf Grundlage historischer Transaktionen.

