Büros
ID B2557Premium JLL
Provisionsfrei
Büroimmobilie - Berlin, Friedrichshain - B2557
Friedrichshain, 10243, Berlin, Berlin
25 € - 35 € / m²
- Fläche497 m²
- VerfügbarkeitSofort
- Objekt
- Ausstattung
- Lage und Verkehrsanbindung
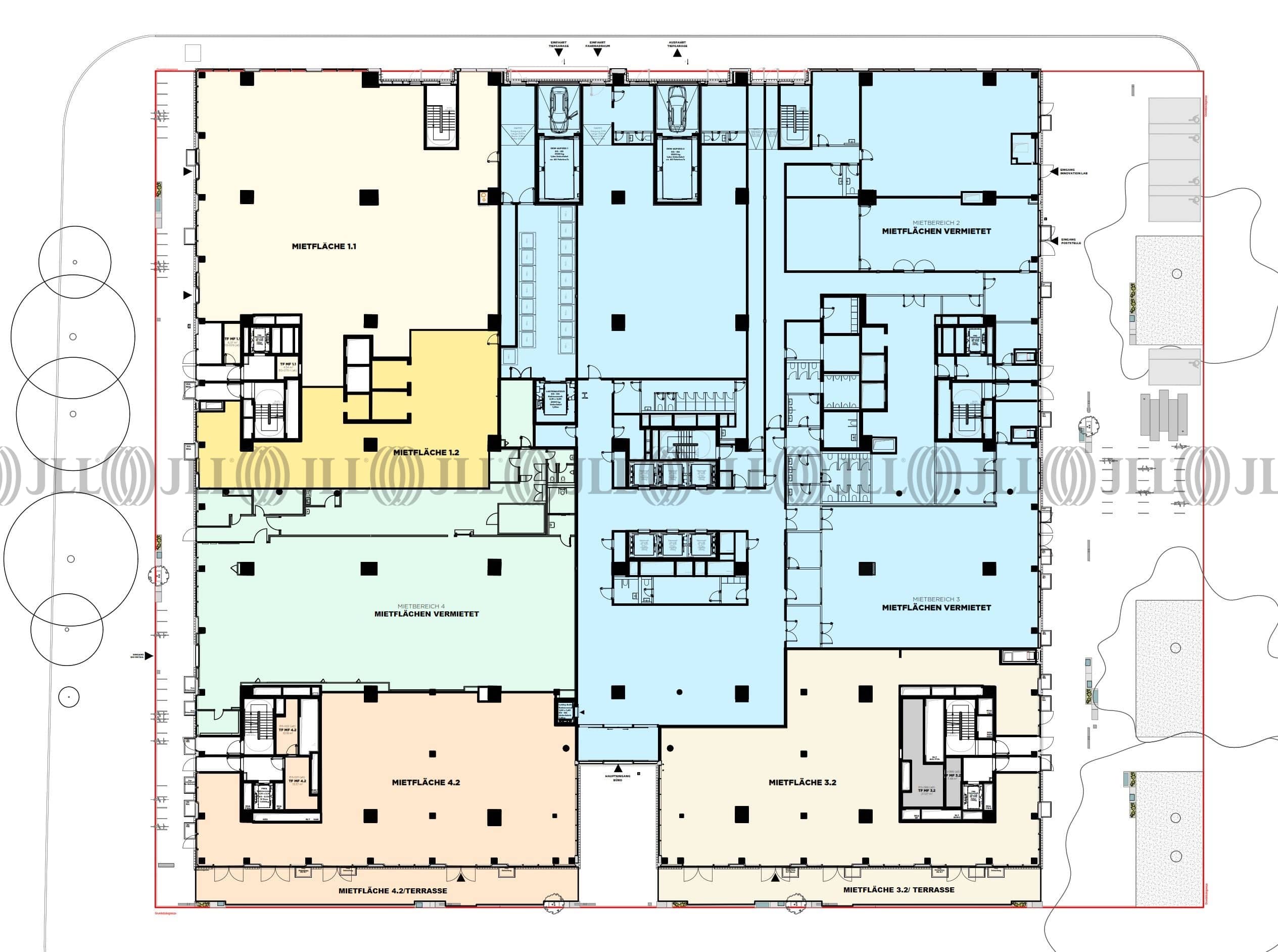
- Grundriss
- Exposé herunterladen
- Ihr Kontakt
- Anfrage senden
Objekt
Bei dem Objekt namens UP! handelt es sich um das ehemalige „Kaufhaus am Ostbahnhof“. Im Zuge des Umbaus wurde der Gebäudekomplex auf allen Seiten mit teils keilförmigen Einschnitten über die gesamte Höhe geöffnet. So sind nach der umfassenden Kernsanierung des Bestandes und der kompletten Erneuerung der Fassade auf einer Bruttogeschossfläche von 55.000 m² neue, einmalige und attraktive Loft-Büros sowie Einzelhandelsflächen entstanden.
Zertifizierungen
Energieausweis
LEED: GoldVerfügbare Fläche
Lage und Verkehrsanbindung
Das Objekt befindet sich direkt am Ostbahnhof in Berlin - Friedrichshain, nahe der Grenze zur Berlin-Mitte und Berlin-Kreuzberg. Die Lage rund um den Ostbahnhof hat sich in den letzten Jahren zu einem Szenekiez, mit eigener Restaurant- und Kneipenkultur entwickelt. Auch in Zukunft wird der Standort durch eine Vielzahl bereits realisierter oder im Bau befindlicher Projekte, wie z.B. entlang der sorg. Mediaspree eine deutliche Aufwertung erfahren. Im Gebäude sind Zalando, SumUp und Enpal ansässig. In unmittelbarer Nähe befinden sich die Zentralen namhafter internationaler Unternehmen sowie der Uber Arena. Durch den Ostbahnhof und diverse Buslinien ist das Objekt hervorragend an den öffentlichen Nahverkehr angebunden.
- Hauptbahnhof, Berlin , Fahrzeit: 25 min
- S-Bahn, Ostbahnhof, Linien S3, S5, S7, S9 sowie Regionalbahnen und Fernverkehr, Gehzeit: 3 min
- Bus, Ostbahnhof, Linien 140, 142, 147, 240, 300, Gehzeit: 3 min
- Bundesautobahn, A 100, Fahrzeit: 30 min
- Bundesautobahn, A 113, Fahrzeit: 25 min
- Flughafen, Berlin Brandenburg, Fahrzeit: 40 min
Ihr Kontakt

Cornelia Vogel
Ihr Kontakt
Marktinformationen
Mietmarkt
Friedrichshain, Berlin
siehe 51 passende MietobjekteErfahren Sie mehr
* Durchschnittspreis auf Grundlage historischer Transaktionen.









