Büros
ID B2555Provisionsfrei
Büroimmobilie - Chemnitz, Schloßchemnitz - B2555
Schloßchemnitz, 09113, Chemnitz, Sachsen
10 € / m²
- Fläche340 - 2.725 m²
- VerfügbarkeitAuf Anfrage
- Objekt
- Ausstattung
- Lage und Verkehrsanbindung
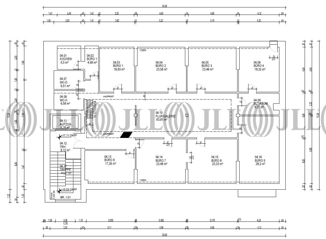
- Grundrisse
- Exposé herunterladen
- Ihr Kontakt
- Anfrage senden
Objekt
Hinter den repräsentativen Mauern des denkmalgeschützten Backsteingebäudes einer ehemaligen Textilfabrik verbergen sich großzügige Bürolofts und pragmatische Lagerhallen. Das „Hübsch Quartier“ mit einer Nutzfläche von insgesamt ca. 12.500 m² besticht durch sein Industriedesign und seine zeitgemäße technische Ausstattung. Derzeit vakante Büroflächen befinden sich im „Haus Goethe“ und Haus Schiller. Hier stehen insgesamt ca. 2.725 m² verteilt auf drei Etagen zur Verfügung. Die Flächen zeigen aktuell eine überwiegend offene Struktur. Die historischen Stützen sind teilweise erhalten geblieben und unterstreichen den industriellen Charme. Ein individueller Ausbau der Flächen, der dem Nutzungsverhalten des Mieters Rechnung trägt ist möglich. Insgesamt stehen 100 Stellplätze, teilweise mit Ladesäulen ausgestattet zur Verfügung.
Verfügbare Fläche
Lage und Verkehrsanbindung
Die Stadt Chemnitz ist mit 245.000 Einwohnern das wirtschaftliche und kulturelle Zentrum der südwestlichen Region des Bundeslandes Sachsen. Die Liegenschaft befindet sich nahe dem Chemnitzer Innenstadtring, im Viertel „Schlosschemnitz“. Letzteres ist charakterisiert durch umfassende Grünflächen, wie z. B. den Schlosspark mit Schlossteich und den Schönherr-Park. Ebenfalls besteht eine sehr gute Verkehrsanbindung an die Innenstadt. Das Mietobjekt befindet sich parallel zur B95 und ca. 10 Autominuten von der A4 entfernt. Eine Haltestelle des ÖPNV befindet sich am Objekt.
- Flughafen, Dresden, Fahrzeit: 54 min
- Flughafen, Leipzig/Halle, Fahrzeit: 70 min
- Bundesautobahn, A 4, Fahrzeit: 10 min
- Bundesautobahn, A 72, Fahrzeit: 15 min
- Bundesstraße, B 107, Fahrzeit: 2 min
- Bundesstraße, B 95, Fahrzeit: 6 min
- Bus, Hilbersdorfer Str., Buslinie 32, Gehzeit: 1 min
Ihr Kontakt

Kay Förster
Ihr Kontakt











