Büros
ID B2520Büroimmobilie - Berlin, Tempelhof - B2520
Tempelhof, 12099, Berlin, Berlin
Provisionspflichtig: bei Anmietung 3 Netto-Monatsmieten zzgl. gesetzlicher Umsatzsteuer.** der Wert kann je nach Vertragslaufzeit variieren.
15 € / m²
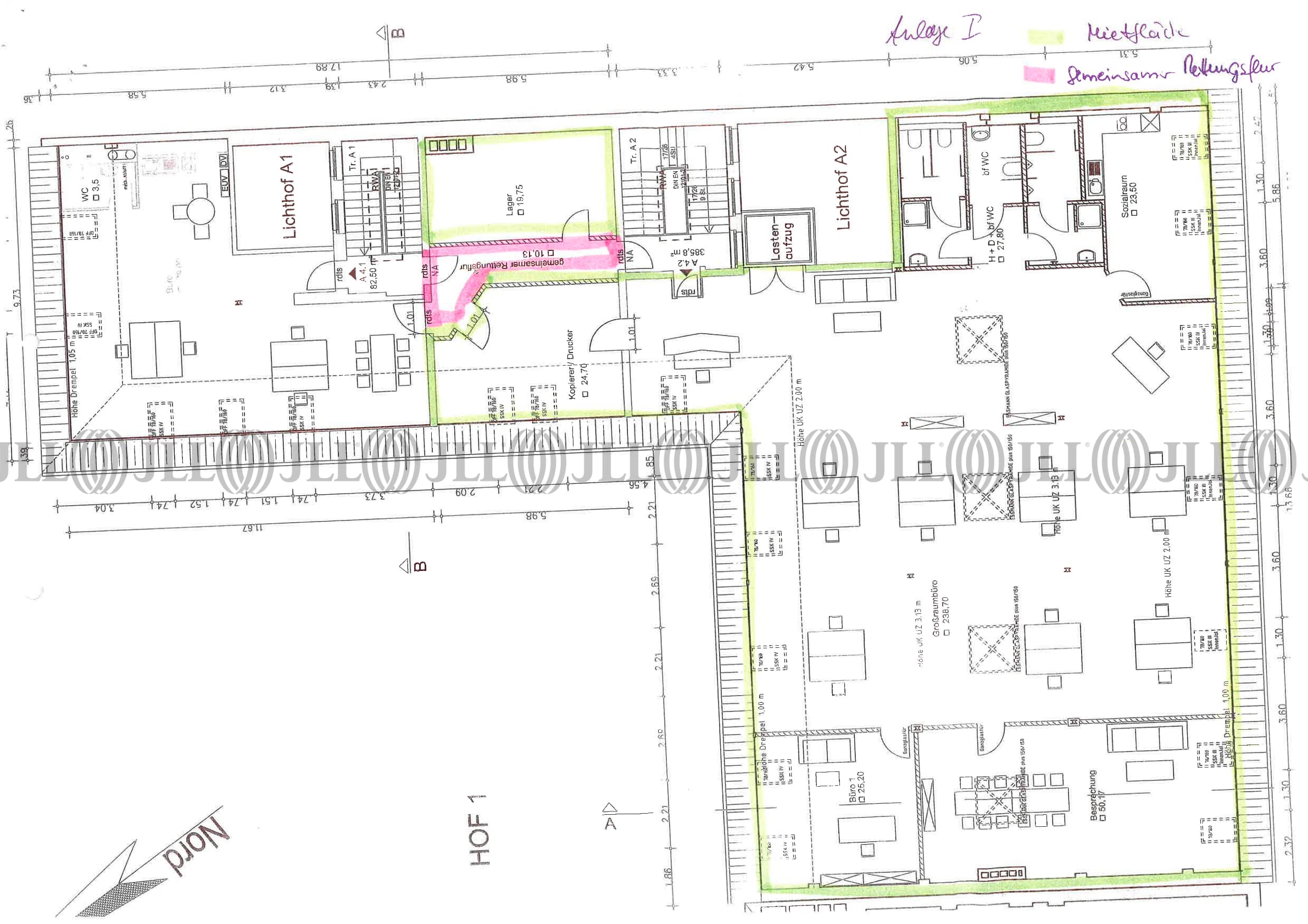
- Fläche400 m²
- VerfügbarkeitSofort
- Objekt
- Ausstattung
- Lage und Verkehrsanbindung
- Grundriss
- Exposé herunterladen
- Ihr Kontakt
- Anfrage senden
Objekt
Das Gewerbeobjekt präsentiert sich als ein charaktervoller Gewerbebau, der Flexibilität für unterschiedliche Nutzungen wie Büro- oder Produktionsflächen bietet. Die Architektur zeichnet sich durch eine helle Raumhöhe von bis zu acht Metern im First des Erdgeschosses aus, was ein großzügiges und lichtdurchflutetes Arbeitsumfeld schafft. Die Konstruktion des Gebäudes erlaubt eine flexible Raumaufteilung und ist somit für diverse betriebliche Anforderungen geeignet.
Verfügbare Fläche
Lage und Verkehrsanbindung
Der Standort befindet sich im Berliner Ortsteil Tempelhof, der zum Bezirk Tempelhof-Schöneberg gehört. Diese Gegend zeichnet sich durch eine ausgewogene Mischung aus Gewerbe-, Büro- und Wohnbebauung aus. Die unmittelbare Umgebung ist als Gewerbegebiet ausgewiesen und liegt südlich des S-Bahnhofs Tempelhof, parallel zur S-Bahn-Ringbahn. Damit fungiert die Straße als eine bedeutende Gewerbe- und Zulieferachse mit direkter Anbindung an die Stadtautobahn A100 und die Bundesstraße B96. Der Bezirk Tempelhof-Schöneberg ist ein bedeutender Wirtschaftsstandort in Berlin, der sowohl internationale Konzerne als auch eine Vielzahl mittlerer und kleiner Unternehmen beheimatet. Die Wirtschaftsstruktur ist durch einen Mix aus Traditionsbranchen und High-Tech-Sektoren geprägt. Ein besonderes Merkmal der Lage ist die Nähe zum ehemaligen Flughafen Tempelhof, der sich zu einem der größten innerstädtischen Parks der Welt entwickelt hat und vielfältige Freizeit- und Erholungsmöglichkeiten bietet.
- S-Bahn, Tempelhof, Linien S41, S42, S45, S46, Gehzeit: 6 min
- U-Bahn, Tempelhof, Linie U6, Gehzeit: 6 min
- Bus, Felixstrasse, Linien 246, M46, Gehzeit: 3 min
- Bundesautobahn, A 100, Fahrzeit: 3 min
- Bundesstraße, B 96, Fahrzeit: 2 min
- Flughafen, Berlin Brandenburg, Fahrzeit: 20 min
Ihr Kontakt

Alexandra Teich
Ihr Kontakt
Marktinformationen
Mietmarkt
Tempelhof, Berlin
siehe 4 passende MietobjekteErfahren Sie mehr
* Durchschnittspreis auf Grundlage historischer Transaktionen.


