Büros
ID B2508Provisionsfrei
Büroimmobilie - Berlin, Moabit - B2508
Moabit, 10559, Berlin, Berlin
21,50 € / m²
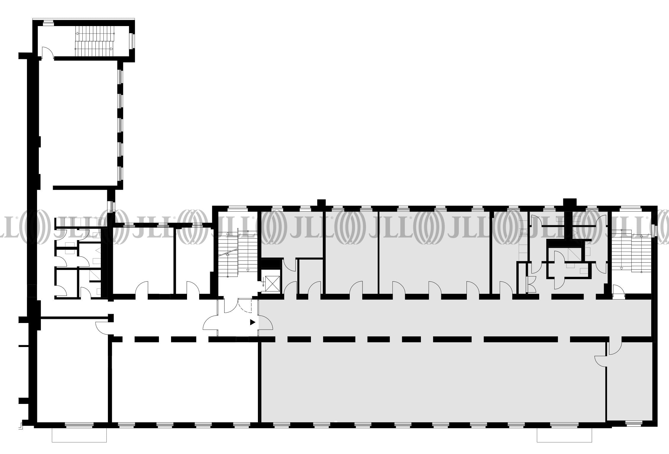
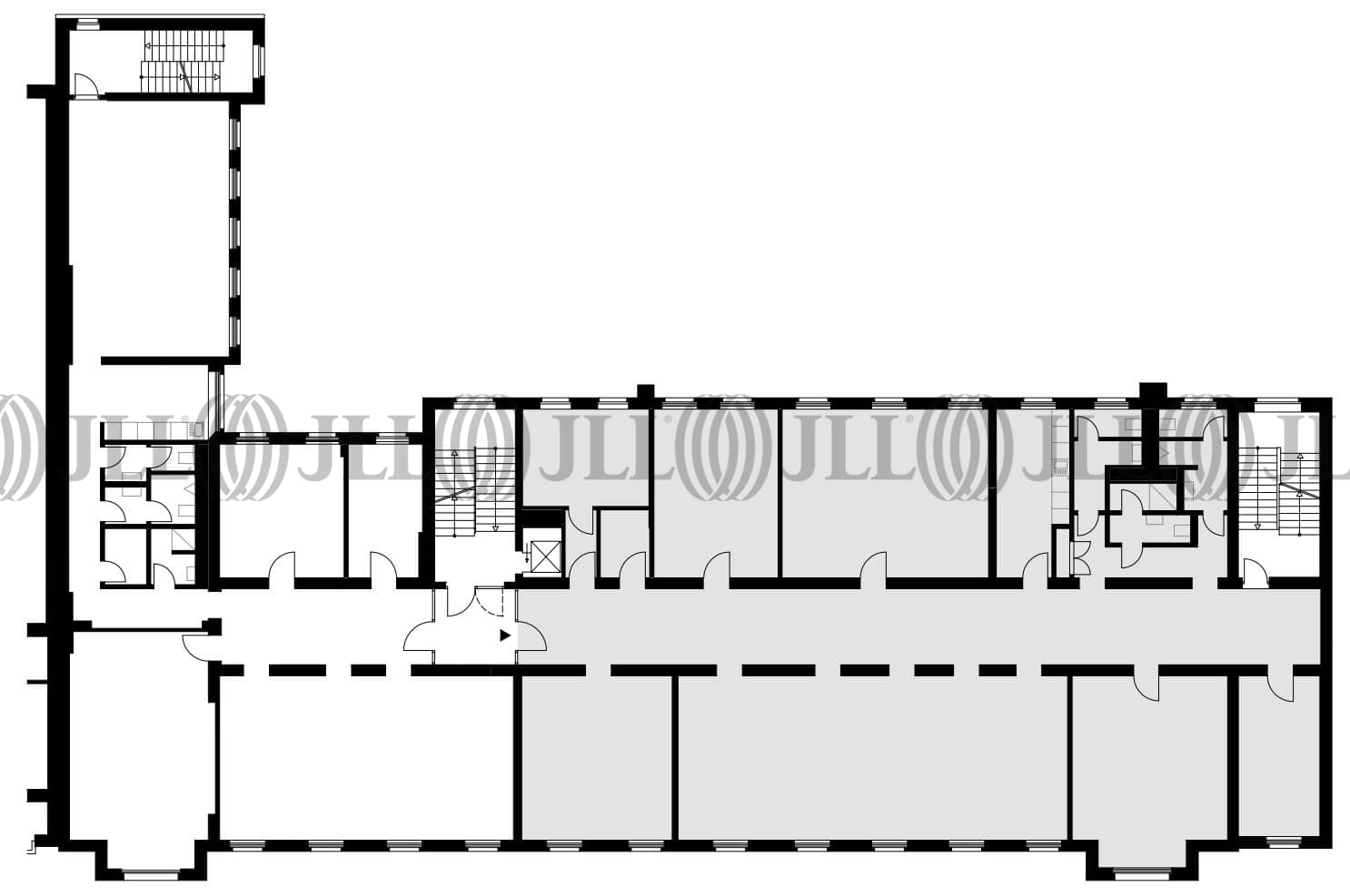
- Fläche439 - 869 m²
- VerfügbarkeitSofort
- Objekt
- Ausstattung
- Lage und Verkehrsanbindung
- Grundrisse
- Exposé herunterladen
- Ihr Kontakt
- Anfrage senden
Objekt
Dieses historische Gebäudeensemble, dessen Ursprünge in die Gründerzeit zurückreichen, wurde umfassend saniert und um ein modernes Staffelgeschoss erweitert. Die markante Fassade aus rotem Vormauerziegel, kombiniert mit einer dunkel verputzten Erdgeschosszone, verleiht dem Bau einen repräsentativen Charakter. Im Inneren trifft klassischer Altbaucharme, sichtbar an aufgearbeitetem Fischgrätparkett und erhaltenen Kastendoppelfenstern, auf moderne Arbeitswelten. Großzügige, lichtdurchflutete Büroeinheiten wurden durch die Verbindung ehemaliger Verwaltungsräume geschaffen und bieten flexible Nutzungsmöglichkeiten. Ein besonderes Highlight ist die gläserne Dachaufstockung, die einen Panoramablick über die Stadt ermöglicht und über eine umlaufende Terrasse verfügt.
Verfügbare Fläche
Lage und Verkehrsanbindung
Das Objekt befindet sich im Bezirk Tiergarten - direkt an der Spree und am kleinen Tiergarten gelegen und bietet durch die attraktive Umgebung ein angenehmes Arbeitsumfeld. Dienstleister des täglichen Bedarfs befinden sich in der Nähe.
- Flughafen, Berlin Brandenburg, Fahrzeit: 35 min
- Bundesautobahn, A 100, Fahrzeit: 20 min
- Bus, Kleiner Tiergarten; Linie 245, Gehzeit: 1 min
- Hauptbahnhof, Berlin, Fahrzeit: 7 min
- U-Bahn, Turmstraße; Linie U9, Gehzeit: 5 min
Ihr Kontakt

Alexandra Teich
Ihr Kontakt
Marktinformationen
Mietmarkt
Moabit, Berlin
Gew. Ø-Miete
21,50 € / m²
siehe 30 passende MietobjekteErfahren Sie mehr* Durchschnittspreis auf Grundlage historischer Transaktionen.







