Büros
ID B2438Provisionsfrei
Aktualisiert
Büroimmobilie - Berlin, Reinickendorf - B2438
Reinickendorf, 13403, Berlin, Berlin
10,50 € / m²
- Fläche220 - 1.878 m²
- VerfügbarkeitAuf Anfrage
- Objekt
- Ausstattung
- Lage und Verkehrsanbindung
- Grundrisse
- Exposé herunterladen
- Ihr Kontakt
- Anfrage senden
Objekt
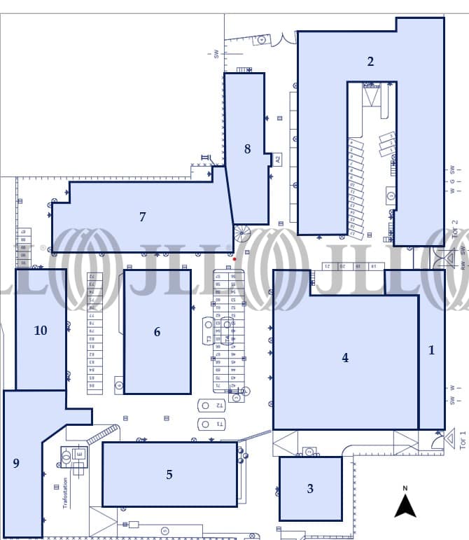
Der Gewerbehof liegt verkehrsgünstig im Norden von Berlin. Die Immobilie umfasst 10 Gebäude mit 59 Gewerbeflächen, die ein unterschiedliches Nutzungsspektrum bieten, von Büro- bis Produktions- und Lagerflächen.
Verfügbare Fläche
Lage und Verkehrsanbindung
Die Liegenschaft befindet sich im nördlichen Stadtteil Reinickendorf in einem Gewerbegebiet mit hohem Durchgangsverkehr in unmittelbarer Nähe zum Kurt-Schuhmacher-Platz, dem Einkaufsgebiet des Stadtteils.
- Flughafen, Berlin Brandenburg, Fahrzeit: 35 min
- Bundesautobahn, A 111, Fahrzeit: 5 min
- Bundesstraße, B 96, Fahrzeit: 2 min
- Bundesstraße, B 2, Fahrzeit: 15 min
- Bus, Waldstr./Gewerbegebiet, Linien 322, Gehzeit: 2 min
- Hauptbahnhof, Berlin, Fahrzeit: 20 min
- S-Bahn, Karl-Bonnhoeffer-Nervenklinik, Linie S25, Gehzeit: 3 min
Ihr Kontakt

Chiara Costa Jacinto
Ihr Kontakt
Marktinformationen
Mietmarkt
Reinickendorf, Berlin
siehe 1 passende MietobjekteErfahren Sie mehr
* Durchschnittspreis auf Grundlage historischer Transaktionen.







