Büros
ID B2396Provisionsfrei
Büroimmobilie - Berlin, Lichtenberg - B2396
Lichtenberg, 10365, Berlin, Berlin
17,50 € / m²
- Fläche444 - 3.747 m²
- VerfügbarkeitSofort
- Objekt
- Ausstattung
- Lage und Verkehrsanbindung
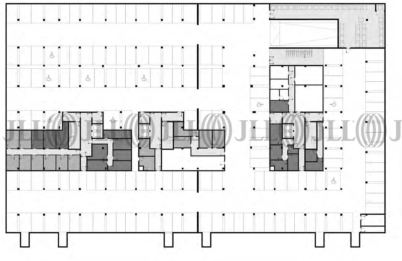
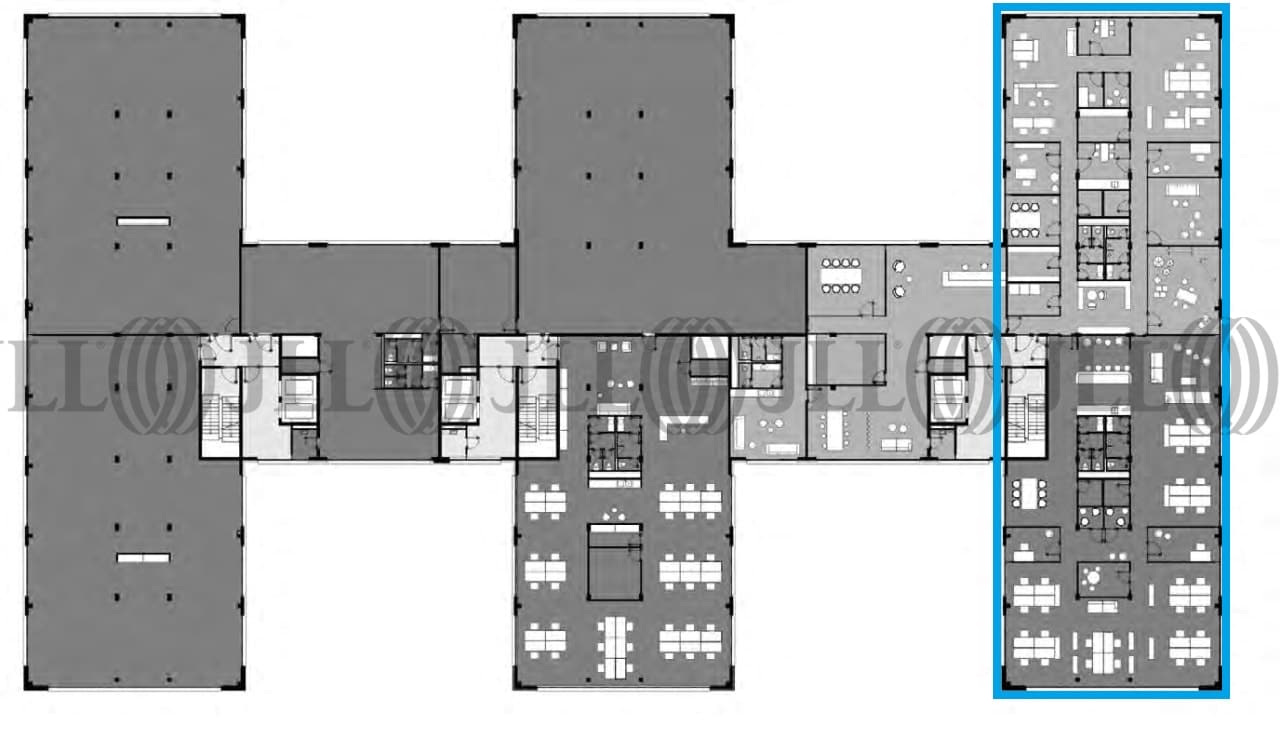
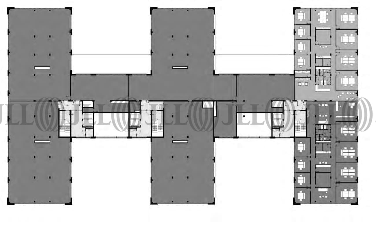
- Grundrisse
- Exposé herunterladen
- Ihr Kontakt
- Anfrage senden
Zertifizierungen
Energieausweis
DGNB: GoldFür diese Liegenschaft liegt ein Bedarfsausweis vom 23.08.2022 vom Eigentümer/Vermieter vor. Die wesentlichen Energieträger der Liegenschaft sind Heizwerk, fossil, KWK, Strom. Der Endenergiebedarf Strom beträgt 23.2 kWh/(m²*a). Der Endenergiebedarf Wärme beträgt 50.5 kWh/(m²*a).
Verfügbare Fläche
Lage und Verkehrsanbindung
Das Projekt befindet sich im Stadtteil Lichtenberg, unweit der Frankfurter Allee. Das Regierungsviertel in Berlin-Mitte erreicht man von hier aus in ca. 15 Autominuten. Einkaufsmöglichkeiten des täglichen Bedarfs sind im Umfeld angesiedelt.
- Flughafen, Berlin Brandenburg, Fahrzeit: 36 min
- Bundesautobahn, A 100, Fahrzeit: 30 min
- Bus, Betriebshof Lichtenberg; Linien 240, 256, Gehzeit: 9 min
- Straßenbahn/Tram, Betriebshof Lichtenberg; Linie 21, 37, Gehzeit: 9 min
- Hauptbahnhof, Berlin, Fahrzeit: 35 min
- U-Bahn, Magdalenenstraße; Linie U5, Gehzeit: 15 min
Ihr Kontakt

Tobias Rodewald
Ihr Kontakt








