Büros
ID B2369Büroimmobilie - Berlin, Friedrichshain - B2369
Friedrichshain, 10243, Berlin, Berlin
Provisionspflichtig: bei Anmietung 3 Netto-Monatsmieten zzgl. gesetzlicher Umsatzsteuer.** der Wert kann je nach Vertragslaufzeit variieren.
34 € / m²
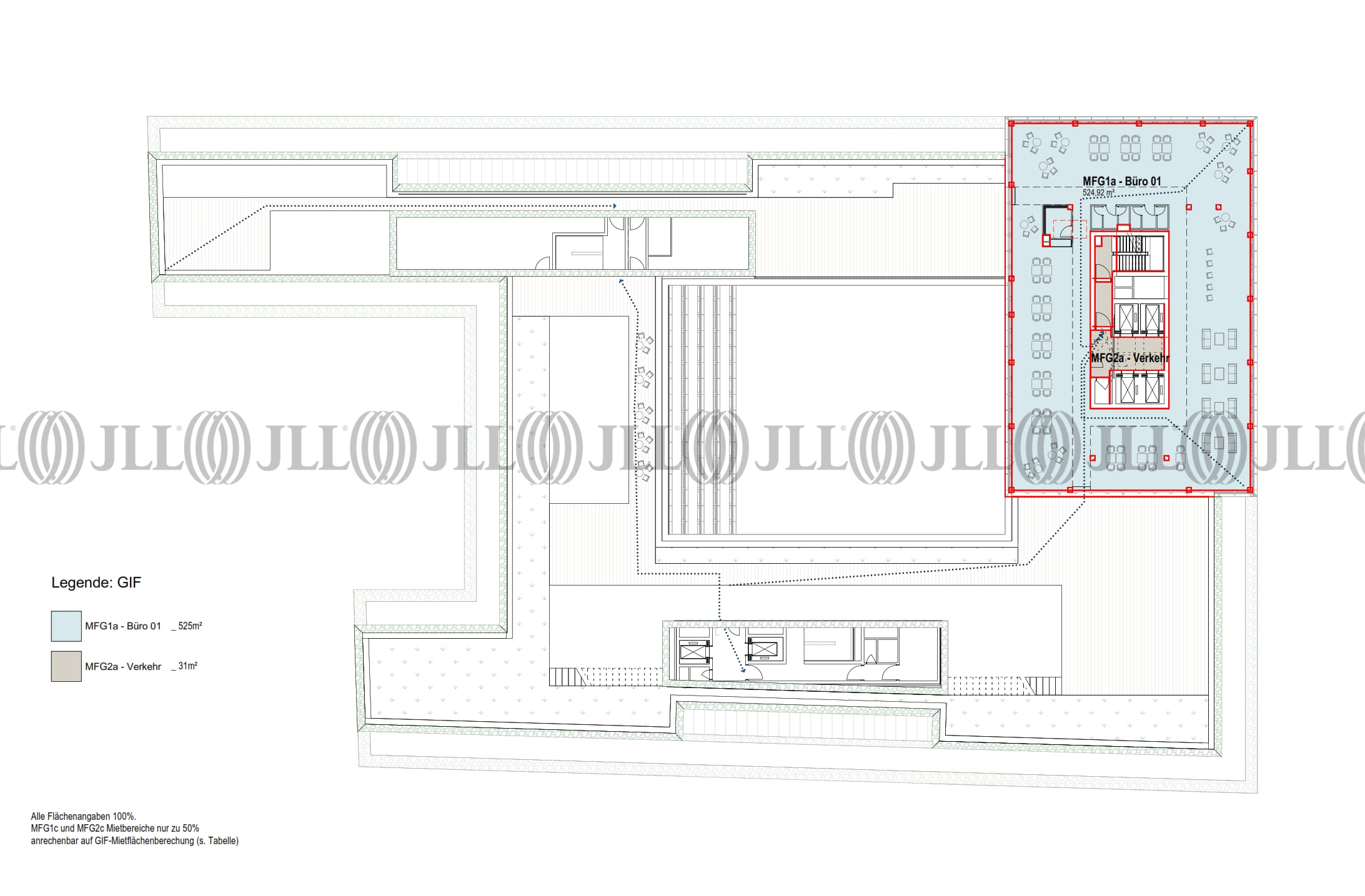
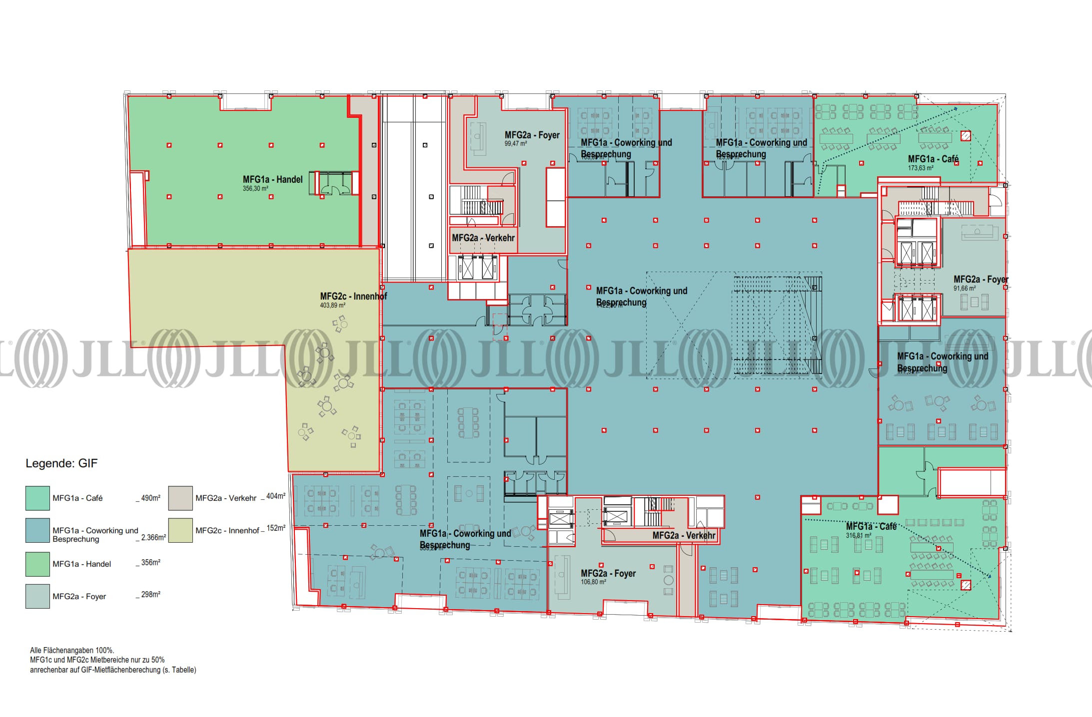
- Fläche556 - 24.097 m²
- VerfügbarkeitI quartal 2029
- Objekt
- Ausstattung
- Lage und Verkehrsanbindung
- Grundrisse
- Exposé herunterladen
- Ihr Kontakt
- Anfrage senden
Zertifizierungen
Energieausweis
DGNB: PlatinumVerfügbare Fläche
Lage und Verkehrsanbindung
- Flughafen, Berlin Brandenburg, Fahrzeit: 40 min
- Bundesautobahn, A 100, Fahrzeit: 20 min
- Bus, S Ostbahnhof/Erich-Steinfurth-Str., Linien 240, 347, Gehzeit: 1 min
- S-Bahn, Ostbahnhof, Linien S3, S5, S7, S9, S75, Gehzeit: 1 min
Ihr Kontakt

Gerald Dietzold
Ihr Kontakt
Marktinformationen
Mietmarkt
Friedrichshain, Berlin
siehe 47 passende MietobjekteErfahren Sie mehr
* Durchschnittspreis auf Grundlage historischer Transaktionen.








