Büros
ID B2353Provisionsfrei
Büroimmobilie - Berlin, Alt-Hohenschönhausen - B2353
Alt-Hohenschönhausen, 13055, Berlin, Berlin
15 € / m²
- Fläche251 - 1.969 m²
- VerfügbarkeitSofort
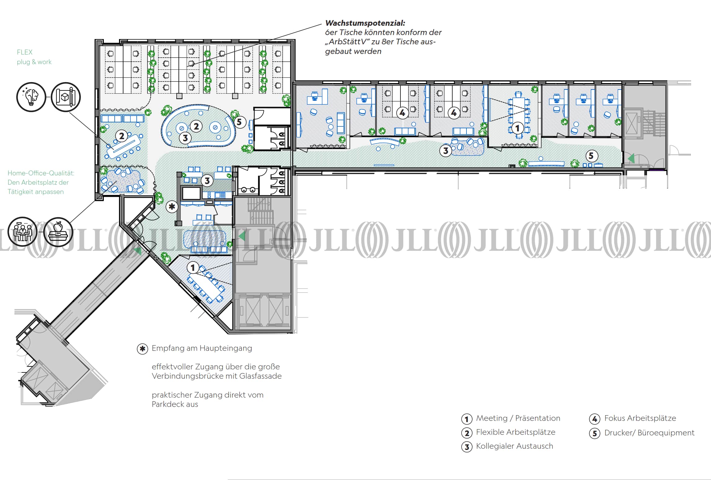
- Objekt
- Ausstattung
- Lage und Verkehrsanbindung
- Grundrisse
- Exposé herunterladen
- Ihr Kontakt
- Anfrage senden
Zertifizierungen
Energieausweis
Für diese Liegenschaft liegt ein Verbrauchsausweis vom 2022-04-01 vom Eigentümer/Vermieter vor. Die wesentlichen Energieträger der Liegenschaft sind Nahwärme,Fernwärme. Der Endenergieverbrauch Strom beträgt 25.00 kWh/(m²*a). Der Endenergieverbrauch Wärme beträgt 97.00 kWh/(m²*a).Verfügbare Fläche
Lage und Verkehrsanbindung
Das Objekt befindet sich im Bezirk Lichtenberg, gegenüber des Sportforums Hohenschönhausen. Der Volkspark Prenzlauer Berg befindet sich ebenfalls in unmittelbarer Nähe, wie auch die Landsberger Allee.
- Hauptbahnhof, Berlin, Fahrzeit: 30 min
- Straßenbahn/Tram, Hohenschönhauser Str./Weißenseer Weg; Linien M5, M6, M13, Gehzeit: 2 min
- Bundesautobahn, A 100, Fahrzeit: 30 min
- Flughafen, Berlin Brandenburg, Fahrzeit: 40 min
Ihr Kontakt

Tobias Rodewald
Ihr Kontakt




