Büros
ID B2327Provisionsfrei
Aktualisiert
Büroimmobilie - Berlin, Marzahn - B2327
Marzahn, 12681, Berlin, Berlin
7 € / m²
- Fläche37 - 5.914 m²
- VerfügbarkeitSofort
- Objekt
- Ausstattung
- Lage und Verkehrsanbindung
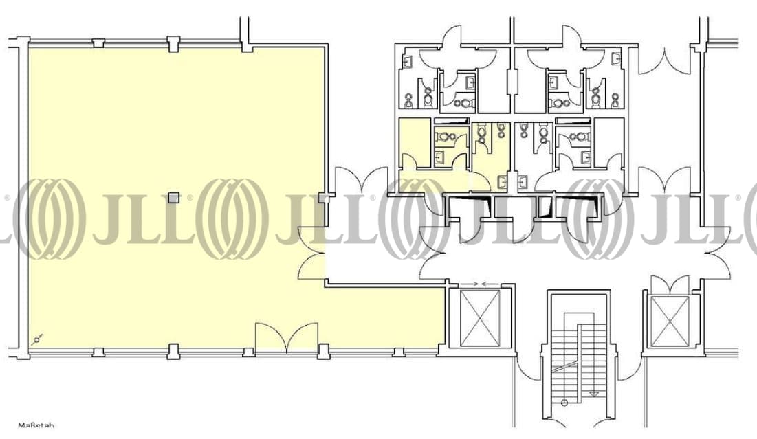
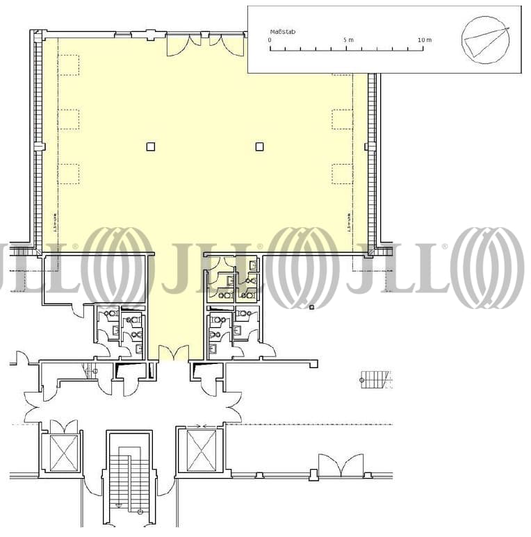
- Grundrisse
- Exposé herunterladen
- Ihr Kontakt
- Anfrage senden
Objekt
Das moderne Geschäftszentrum, erbaut in den Jahren 1995 und 1997, besteht aus 26 Gebäuden, die sich um einen begrünten Innenhof mit einem zentralen Teich gruppieren und so eine entspannte Arbeitsatmosphäre schaffen. Es bietet eine vielfältige Mischung aus Büro-, Produktions- und Lagerflächen. Personen- und Lastenaufzüge sind in allen Gebäuden vorhanden, und für Fahrzeuge stehen ausreichend Stellplätze sowie ein eigenes Parkhaus zur Verfügung.
Zertifizierungen
Energieausweis
WIREDSCORE: PlatinumFür diese Liegenschaft liegt ein Verbrauchsausweis vom 17.07.2019 vom Eigentümer/Vermieter vor. Der wesentliche Energieträger der Liegenschaft ist Fernwärme. Der Endenergieverbrauch Strom beträgt 73.10 kWh/(m²*a). Der Endenergieverbrauch Wärme beträgt 63.30 kWh/(m²*a).
Verfügbare Fläche
Lage und Verkehrsanbindung
Gelegen in einem etablierten Gewerbe- und Industriestandort im östlichen Berliner Bezirk Marzahn-Hellersdorf, profitiert der Komplex von seiner hervorragenden verkehrstechnischen Anbindung. Wichtige Verkehrsachsen wie der Berliner Autobahnring sowie die Bundesstraßen B1 und B5 sind schnell erreichbar, was den Standort sowohl für den regionalen als auch für den überregionalen Wirtschaftsverkehr attraktiv macht. In der direkten Umgebung befinden sich zahlreiche Einzelhandels- und Dienstleistungsbetriebe, die die Nahversorgung sicherstellen.
- Hauptbahnhof, Berlin, Fahrzeit: 25 min
- S-Bahn, Mehrower Allee; Linie S7, Gehzeit: 4 min
- Bus, Märkische Allee/ Wuhletalstr.; Linie 197, Gehzeit: 10 min
- Bundesautobahn, A 10, Fahrzeit: 10 min
- Bundesautobahn, A 114, Fahrzeit: 20 min
- Flughafen, Berlin Brandenburg, Fahrzeit: 35 min
Ihr Kontakt

Philipp Olsowski
Ihr Kontakt
Marktinformationen
Mietmarkt
Marzahn, Berlin
siehe 2 passende MietobjekteErfahren Sie mehr
* Durchschnittspreis auf Grundlage historischer Transaktionen.






