Büros
ID B2320Büroimmobilie - Berlin, Friedrichshain - B2320
Friedrichshain, 10243, Berlin, Berlin
Provisionspflichtig: bei Anmietung 3 Netto-Monatsmieten zzgl. gesetzlicher Umsatzsteuer.** der Wert kann je nach Vertragslaufzeit variieren.
29 € / m²
- Fläche1.052 - 4.016 m²
- VerfügbarkeitSofort
- Objekt
- Ausstattung
- Lage und Verkehrsanbindung
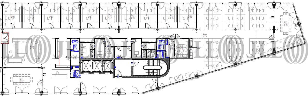
- Grundrisse
- Exposé herunterladen
- Ihr Kontakt
- Anfrage senden
Objekt
Das Gebäude „AP15“ besticht durch seine außergewöhnliche Architektur, bei der moderne und historische Elemente elegant miteinander verbunden sind. Mit seiner ikonischen Erscheinung ist es ein Blickfang in Berlin mit perfekter Sichtbarkeit über die S-Bahn. Das Haus bietet eine hochwertige Ausstattung und flexible Nutzungsmöglichkeiten für Unternehmen verschiedener Branchen. Das architektonisch außergewöhnliche Gebäude schafft eine inspirierende Arbeitsatmosphäre und überzeugt mit seiner einzigartigen Ästhetik.
Zertifizierungen
Energieausweis
DGNB: Gold WIREDSCORE: PlatinumFür diese Liegenschaft liegt ein Bedarfsausweis vom 30.03.2022 vom Eigentümer/Vermieter vor. Die wesentlichen Energieträger der Liegenschaft sind Fernwärme, Strom. Endenergiebedarf: 53.35 kWh/(m²*a)
Verfügbare Fläche
Lage und Verkehrsanbindung
Das Büroprojekt „AP15“ befindet sich im Herzen der Media Spree im Berliner Bezirk Friedrichshain-Kreuzberg. Durch seine Nähe zum Ostbahnhof ist das Gebäude bestens an den öffentlichen Nah- und Fernverkehr angebunden. Im direkten Umfeld befinden sich zahlreiche Gastronomie- und Einkaufsmöglichkeiten für den täglichen Bedarf. Ebenso ist der Mercedes Benz Platz, die East-Side Gallery und das Spreeufer fußläufig erreichbar.
- Hauptbahnhof, Berlin, Fahrzeit: 15 min
- S-Bahn, Ostbahnhof; Linien S3, S5, S7, S75, S9, Gehzeit: 5 min
- Bus, Berlin Ostbahnhof; Linien 140, 142, 147, 240, 300, 347, Gehzeit: 6 min
- Bundesautobahn, A 100, Fahrzeit: 15 min
- Bundesautobahn, A 113, Fahrzeit: 15 min
- Flughafen, Berlin Brandenburg, Fahrzeit: 30 min
Ihr Kontakt

Tobias Rodewald
Ihr Kontakt
Marktinformationen
Mietmarkt
Friedrichshain, Berlin
siehe 51 passende MietobjekteErfahren Sie mehr
* Durchschnittspreis auf Grundlage historischer Transaktionen.









