Büros
ID B2302Büroimmobilie - Berlin, Karlshorst - B2302
Karlshorst, 10318, Berlin, Berlin
Provisionspflichtig: bei Anmietung 3 Netto-Monatsmieten zzgl. gesetzlicher Umsatzsteuer.** der Wert kann je nach Vertragslaufzeit variieren.
18 € / m²
- Fläche592 m²
- VerfügbarkeitSofort
- Objekt
- Ausstattung
- Lage und Verkehrsanbindung
- Grundrisse
- Exposé herunterladen
- Ihr Kontakt
- Anfrage senden
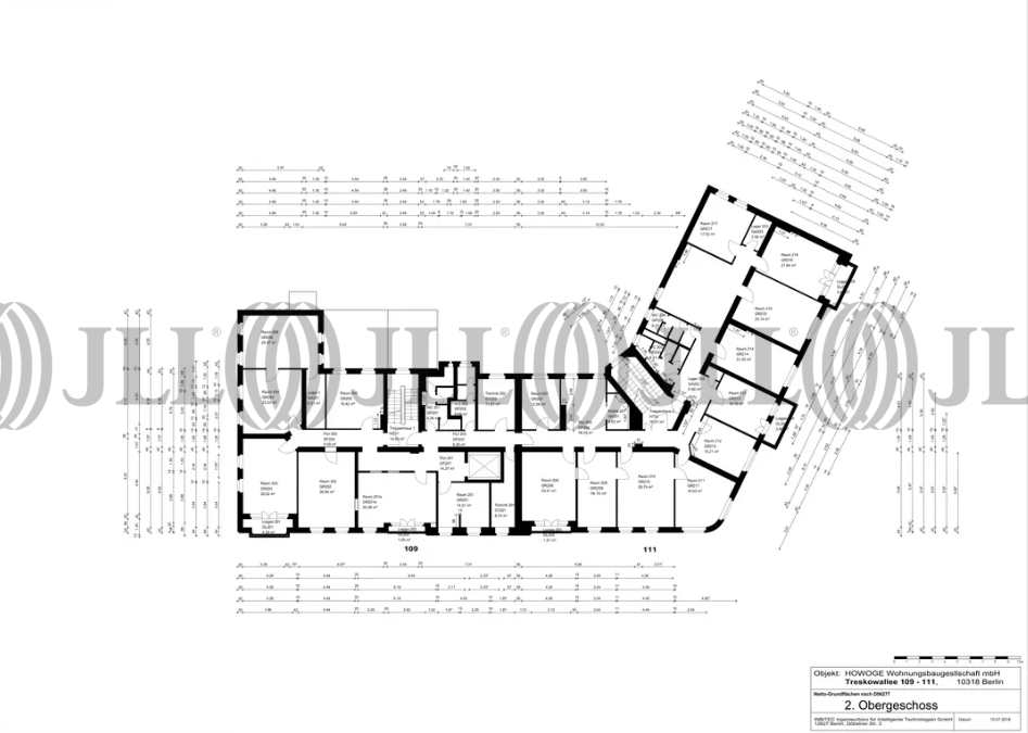
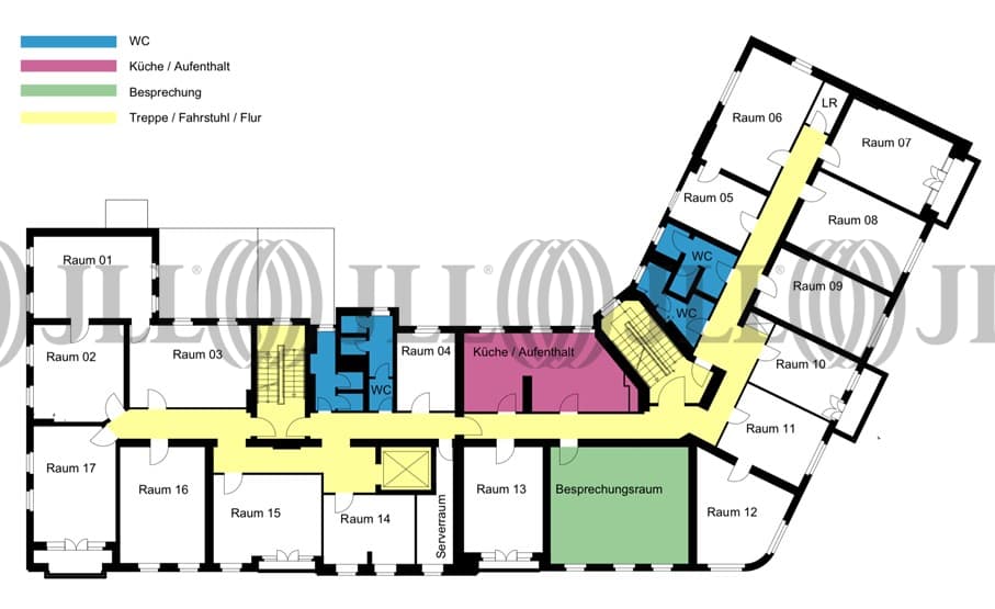
Objekt
Bei dem Anwesen handelt es sich um ein modernes Geschäftshaus, das sich durch eine funktionale Architektur auszeichnet. Es bietet helle und flexibel teilbare Büroflächen, die sich für verschiedene Nutzungskonzepte eignen. Die Einheiten sind zeitgemäß ausgestattet, unter anderem mit vorhandenen EDV-Anschlüssen und Personenaufzügen. Die Immobilie beherbergt einen Mix aus verschiedenen Dienstleistungsunternehmen und Praxen.
Zertifizierungen
Energieausweis
Für diese Liegenschaft liegt ein Verbrauchsausweis vom 14.11.2018 vom Eigentümer/Vermieter vor. Die wesentlichen Energieträger der Liegenschaft sind Erdgas schwer, Holzpellets, Strom. Der Endenergieverbrauch Strom beträgt 51.00 kWh/(m²*a). Der Endenergieverbrauch Wärme beträgt 138.30 kWh/(m²*a).Verfügbare Fläche
Lage und Verkehrsanbindung
Das Bürogebäude liegt im grünen und historisch gewachsenen Ortsteil Karlshorst im Bezirk Lichtenberg. Dieser Standort im Südosten Berlins zeichnet sich durch seine Mischung aus herrschaftlichen Altbauquartieren, Villen und modernen Wohnanlagen aus. Die Lage bietet eine hervorragende Infrastruktur mit Geschäften des täglichen Bedarfs, die fußläufig erreichbar sind. In unmittelbarer Nähe befinden sich zudem der weitläufige Tierpark Berlin und die Hochschule für Technik und Wirtschaft (HTW Berlin), die für ein dynamisches und zugleich erholsames Umfeld sorgen. Die Verkehrsanbindung ist sowohl an den öffentlichen Nahverkehr durch einen nahen S-Bahnhof sowie diverse Tram- und Buslinien als auch an den Individualverkehr durch die Lage an einer der Hauptverkehrsadern des Bezirks ausgezeichnet, was eine schnelle Erreichbarkeit der Innenstadt und des Umlandes gewährleistet.
- Flughafen, Berlin Brandenburg, Fahrzeit: 30 min
- Bundesautobahn, A 100, Fahrzeit: 25 min
- Bundesautobahn, A 113, Fahrzeit: 25 min
- S-Bahn, Karlshorst, Linie S3, Gehzeit: 1 min
- Bus, S Karlshorst, Linien 296, 396 , Gehzeit: 1 min
- Straßenbahn/Tram, S Karlshorst, Linien 21, 27, 37, 62, 67, M17, Gehzeit: 1 min
- Hauptbahnhof, Berlin, Fahrzeit: 50 min
Ihr Kontakt

Tobias Rodewald
Ihr Kontakt





