Büros
ID B2253Provisionsfrei
Büroimmobilie - Schönefeld - B2253
12529, Schönefeld, Brandenburg
16,50 € / m²
- Fläche210 - 4.939 m²
- Verfügbarkeit24 Monate ab Vertragsunterzeichnung
- Objekt
- Ausstattung
- Lage und Verkehrsanbindung
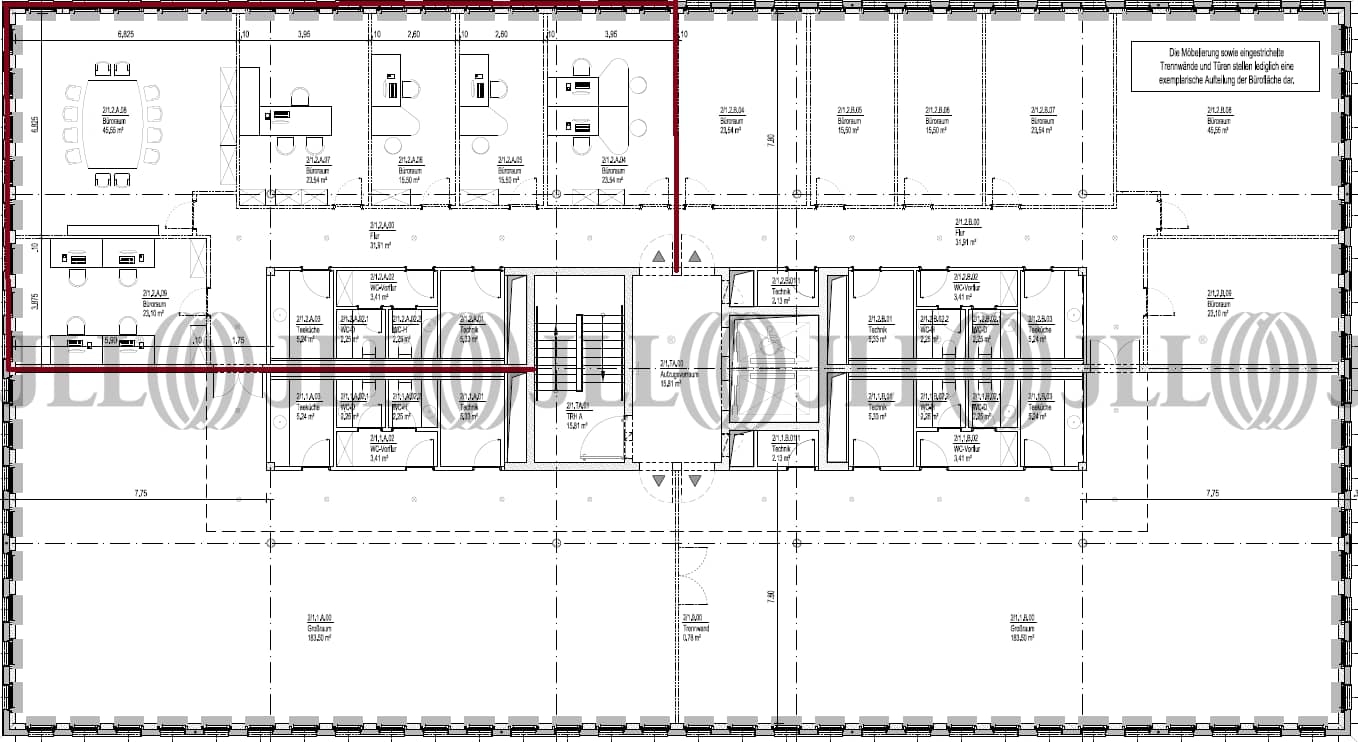
- Grundriss
- Exposé herunterladen
- Ihr Kontakt
- Anfrage senden
Objekt
Das Bürogebäude bietet insgesamt ca. 5.000 m² Bürofläche, verteilt auf insgesamt 5 Etagen. Zukünftigen Mieters stehen je Etage ca. 850m² exklusive Mietfläche zur Verfügung, die je nach Bedarf ab etwa 210 m² teilbar sind. Aufgrund seiner klaren Struktur und dem klassischen Achsmaß von 1.35 Metern bietet das Gebäude dem Mieter maximale Flexibilität und eine effiziente Flächenaufteilung, die je nach Bedarf des Mieters hergestellt wird. Technisch wird das Gebäude nach den aktuellen Standards hergestellt. Technisch wird das Gebäude nach den neuesten Standards ausgestattet und bietet dem Mieter alle Annehmlichkeiten eines Neubauprojekts.
Verfügbare Fläche
Lage und Verkehrsanbindung
Das Neubauprojekt entsteht vis-á-vis zum Schönefelder Rathaus und in unmittelbarer Nähe zum Flughafen BER. Im unmittelbaren Umfeld entstehen hier in einem der zentralen Entwicklungsgebiete Schönefelds zahlreiche neue Quartiere zum Wohnen und Arbeiten. Über den S-Bahnhof Schönefeld ist zudem eine direkte Anbindung an die Innenstadt Berlins sowie an den neuen Flughafen gegeben.
- Flughafen, Berlin Brandenburg, Fahrzeit: 12 min
- Bundesautobahn, A 100, Fahrzeit: 5 min
- Bundesautobahn, A 113, Fahrzeit: 5 min
- Bus, Grundschule Schönefeld b. Berlin, Linie 744, Gehzeit: 1 min
Ihr Kontakt

Steve Ritt
Ihr Kontakt

