Büros
ID B2242Provisionsfrei
Büroimmobilie - Leipzig, Zentrum - B2242
Zentrum, 04109, Leipzig, Sachsen
15 € / m²
- Fläche347 - 1.204 m²
- VerfügbarkeitAuf Anfrage
- Objekt
- Ausstattung
- Lage und Verkehrsanbindung
- Grundrisse
- Exposé herunterladen
- Ihr Kontakt
- Anfrage senden
Objekt
Die vakanten Büroflächen sind in einer der, über die Stadtgrenzen Leipzig hinaus bekannten, innerstädtischen Messe-Passagen verortet. Die Messehof-Passage wurde im Jahr 1965 vollendet und ist im neo-klassizistischen Architekturstil ausgeführt.
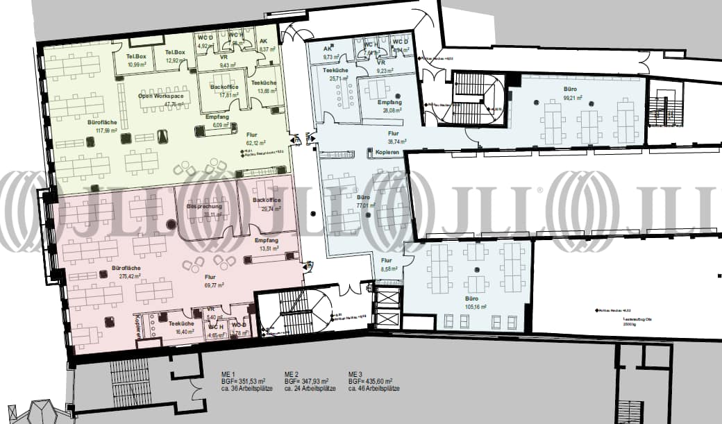
Im 2. Obergeschoss stehen ca. 1.204 m² Mietfläche zur Verfügung. Es handelt sich um eine ehemalige Einzelhandelsfläche, deren Flächenzuschnitt die Implementierung einer Open-Space-Struktur befördert. Folgende Mieteinheiten sind möglich:
- 351,53 m² für 36 Arbeitsplätze
- 347,93 m² mit 24 Arbeitsplätze
- 435,60 m² mit 46 Arbeitsplätze
- 696,85 m² mit 57 Arbeitsplätze
- 475,38 m² mit 46 Arbeitsplätze
Der Mietpreis richtet sich nach der Mietzeit und dem gewünschten Flächenausbau.
Im 2. Obergeschoss stehen ca. 1.204 m² Mietfläche zur Verfügung. Es handelt sich um eine ehemalige Einzelhandelsfläche, deren Flächenzuschnitt die Implementierung einer Open-Space-Struktur befördert. Folgende Mieteinheiten sind möglich:
- 351,53 m² für 36 Arbeitsplätze
- 347,93 m² mit 24 Arbeitsplätze
- 435,60 m² mit 46 Arbeitsplätze
- 696,85 m² mit 57 Arbeitsplätze
- 475,38 m² mit 46 Arbeitsplätze
Der Mietpreis richtet sich nach der Mietzeit und dem gewünschten Flächenausbau.
Zertifizierungen
Energieausweis
Für diese Liegenschaft liegt ein Verbrauchsausweis vom 23.04.2014 vom Eigentümer/Vermieter vor. Der wesentliche Energieträger der Liegenschaft ist Fernwärme. Der Endenergieverbrauch Strom beträgt 65.00 kWh/(m²*a). Der Endenergieverbrauch Wärme beträgt 114.00 kWh/(m²*a).Verfügbare Fläche
Lage und Verkehrsanbindung
Die Leipziger Innenstadt zeichnet sich durch eine kompakte City mit sehr attraktiven Handelsstrukturen und einem Mix aus aufwendig sanierten Handelshöfen, Passagen und stilvollen Neubauten aus. Der Messehof ist direkt über die Petersstraße und den Neumarkt zugänglich. Erstere verläuft in südlicher Richtung vom Leipziger Markt zum Wilhelm-Leuschner-Platz und zählt zu den traditionellsten und frequenzstärksten Einkaufsstraßen der Stadt Leipzig. Die Immobilie ist lediglich 2 Gehminuten vom Leipziger Markt entfernt. Hier befindet sich die unterirdische Haltestelle der S-Bahn, die seit Ende 2013 die Leipziger Innenstadt mit ihrem mitteldeutschen Umfeld verbindet. Halle/Saale, Zwickau, Dessau und Hoyerswerda sind nunmehr umstandslos zu erreichen. Dienstleister des täglichen Bedarfs befinden sich in der Nähe.
- Hauptbahnhof, Hauptbahnhof Leipzig, Gehzeit: 8 min
- Hauptbahnhof, Hauptbahnhof Leipzig, Fahrzeit: 4 min
- S-Bahn, Markt - Linien S5X,S1,S2,S3,S4,S5,S6, Gehzeit: 2 min
- Bus, Markt - Linie 89, Gehzeit: 2 min
- Bundesautobahn, A 14, Fahrzeit: 15 min
- Bundesautobahn, A 38, Fahrzeit: 15 min
- Flughafen, Leipzig/Halle, Fahrzeit: 23 min
Ihr Kontakt

Kay Förster
Ihr Kontakt
Marktinformationen
Mietmarkt
Zentrum, Leipzig
siehe 50 passende MietobjekteErfahren Sie mehr
* Durchschnittspreis auf Grundlage historischer Transaktionen.




