Büros
ID B2232Provisionsfrei
Büroimmobilie - Berlin, Mitte - B2232
Mitte, 10178, Berlin, Berlin
33 € / m²
- Fläche260 m²
- VerfügbarkeitSofort
- Ausstattung
- Lage und Verkehrsanbindung
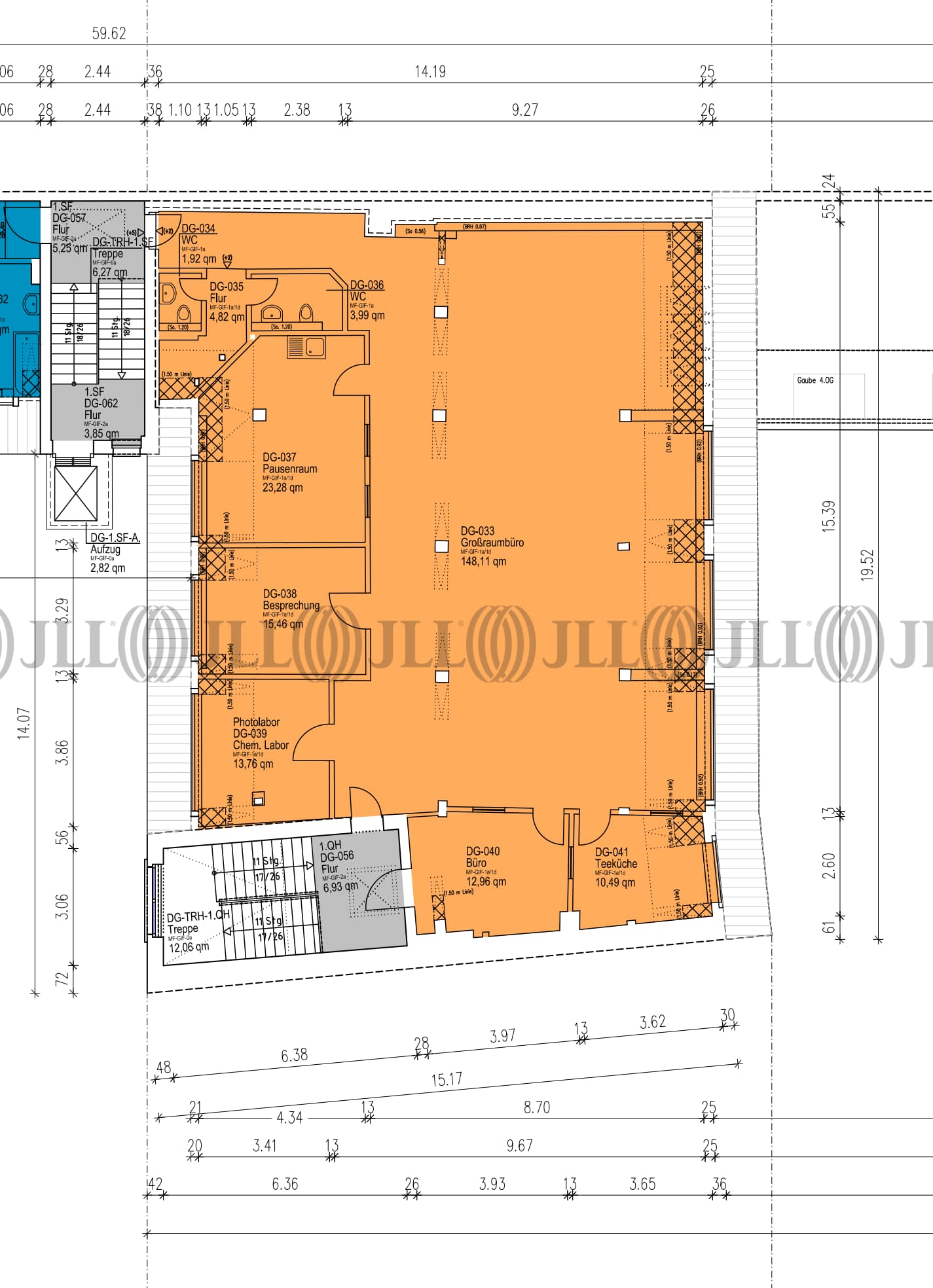
- Grundriss
- Exposé herunterladen
- Ihr Kontakt
- Anfrage senden
Verfügbare Fläche
Lage und Verkehrsanbindung
Die Immobilie befindet sich im sogenannten Scheunenviertel in Berlin-Mitte, in unmittelbarer Nähe zu dem bekannten Hackeschen Markt. Dessen sowohl kulturelle als auch konsumorientierte Vielfalt ermöglicht anspruchsvollstes Arbeiten in einem attraktiven Umfeld.
- Flughafen, Berlin Brandenburg, Fahrzeit: 35 min
- Bundesautobahn, A 100, Fahrzeit: 25 min
- Bundesautobahn, A 113, Fahrzeit: 30 min
- S-Bahn, Hackescher Markt; Linie S3, S5, S7, S9, S75, Gehzeit: 3 min
- Hauptbahnhof, Hauptbahnhof, Fahrzeit: 7 min
Ihr Kontakt

Alexandra Teich
Ihr Kontakt
Marktinformationen
Mietmarkt
Mitte, Berlin
Gew. Ø-Miete
33 € / m²
siehe 155 passende MietobjekteErfahren Sie mehr* Durchschnittspreis auf Grundlage historischer Transaktionen.





