Büros
ID B2213Provisionsfrei
Büroimmobilie - Berlin, Mitte - B2213
Mitte, 10115, Berlin, Berlin
28 € / m²
- Fläche200 - 727 m²
- VerfügbarkeitSofort
- Objekt
- Ausstattung
- Lage und Verkehrsanbindung
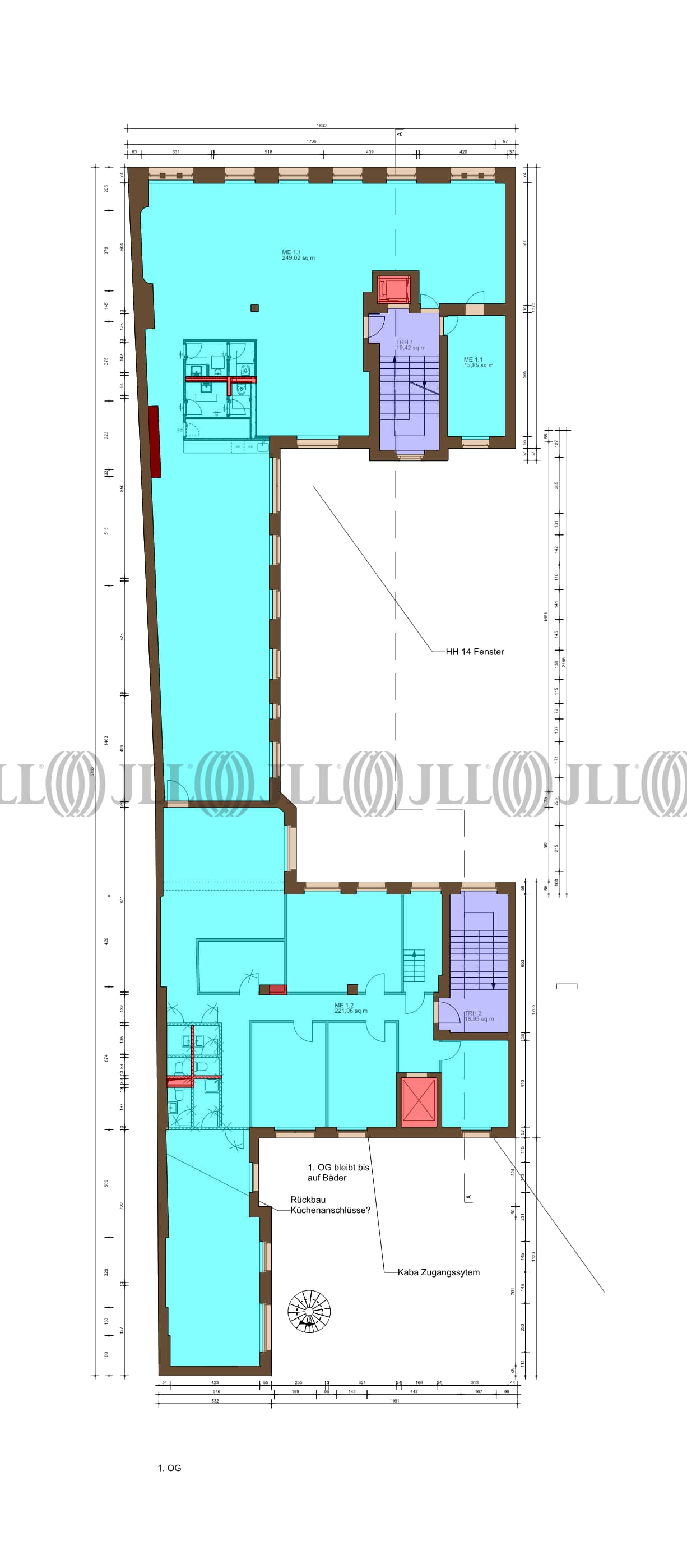
- Grundrisse
- Exposé herunterladen
- Ihr Kontakt
- Anfrage senden
Objekt
Das Objekt stellt das eindrucksvolle, ehemals als Hotel "Danziger Hof" bekannte Gebäude dar, das aufwendig und mit viel Liebe zum Detail zu modernen Büroflächen umgestaltet wurde. Heute bieten diese Flächen herausragenden Bürokomfort und sind mit der neuesten Technologie ausgestattet. Ein imposantes und repräsentatives Treppenhaus führt die Mieter sowohl über einen zentralen Treppenaufgang als auch über einen komfortablen Aufzug direkt zu ihren jeweiligen Mietbereichen.
Besonders hervorzuheben ist die flexible Gestaltung der Grundrisse, die alle Facetten moderner Bürokonzepte mühelos integrieren können, sei es in Form von offenen Großraumbüros, Team- oder Einzelbüros. Die beeindruckend hohen Decken und großen Fenster verleihen dem Innenraum eine offene und luftige Atmosphäre, in der die Raumstrukturen optimal zur Geltung kommen.
Dank der massiven Bauweise des Gebäudes ist es hervorragend gegen Temperaturschwankungen isoliert, wodurch lediglich der Dachgeschossbereich einer Klimatisierung bedurfte. Auf dem großzügigen Hof finden sich zahlreiche Fahrradstellplätze, während in der angrenzenden Tiefgarage ausreichend Parkmöglichkeiten angemietet werden können. Ergänzend dazu stehen im Untergeschoss sorgfältig sanierte Kellerflächen zur Verfügung, die bei Bedarf zusätzlich gemietet werden können.
Diese einzigartige Kombination aus historischer Eleganz und modernster Funktionalität macht das Objekt zu einem idealen Standort für anspruchsvolle Unternehmen, die Wert auf Qualität, Flexibilität und Komfort legen.
Besonders hervorzuheben ist die flexible Gestaltung der Grundrisse, die alle Facetten moderner Bürokonzepte mühelos integrieren können, sei es in Form von offenen Großraumbüros, Team- oder Einzelbüros. Die beeindruckend hohen Decken und großen Fenster verleihen dem Innenraum eine offene und luftige Atmosphäre, in der die Raumstrukturen optimal zur Geltung kommen.
Dank der massiven Bauweise des Gebäudes ist es hervorragend gegen Temperaturschwankungen isoliert, wodurch lediglich der Dachgeschossbereich einer Klimatisierung bedurfte. Auf dem großzügigen Hof finden sich zahlreiche Fahrradstellplätze, während in der angrenzenden Tiefgarage ausreichend Parkmöglichkeiten angemietet werden können. Ergänzend dazu stehen im Untergeschoss sorgfältig sanierte Kellerflächen zur Verfügung, die bei Bedarf zusätzlich gemietet werden können.
Diese einzigartige Kombination aus historischer Eleganz und modernster Funktionalität macht das Objekt zu einem idealen Standort für anspruchsvolle Unternehmen, die Wert auf Qualität, Flexibilität und Komfort legen.
Verfügbare Fläche
Lage und Verkehrsanbindung
Das Objekt befindet sich im Bezirk Mitte, direkt zwischen der Chausseestraße und dem zentralen Nordbahnhof, nahe dem Naturkundemuseum. Einkaufsmöglichkeiten für den täglichen Bedarf sind fußläufig im direkten Umfeld zu erreichen. Zudem bietet die nahegelegene Friedrichstraße weitere, vielen Einkaufsmöglichkeiten.
- Flughafen, Berlin Brandenburg, Fahrzeit: 40 min
- Bundesautobahn, A 100, Fahrzeit: 14 min
- U-Bahn, Naturkundemuseum; Linie U6, Gehzeit: 2 min
- Straßenbahn/Tram, Naturkundemuseum; Linen M5, M8, M10, 12, 50, Gehzeit: 2 min
- Hauptbahnhof, Berlin, Gehzeit: 15 min
Ihr Kontakt

Alexandra Teich
Ihr Kontakt
Marktinformationen
Mietmarkt
Mitte, Berlin
Gew. Ø-Miete
28 € / m²
siehe 166 passende MietobjekteErfahren Sie mehr* Durchschnittspreis auf Grundlage historischer Transaktionen.











