Büros
ID B2167Büroimmobilie - Berlin, Mitte - B2167
Mitte, 10179, Berlin, Berlin
Provisionspflichtig: bei Anmietung 3 Netto-Monatsmieten zzgl. gesetzlicher Umsatzsteuer.** der Wert kann je nach Vertragslaufzeit variieren.
Kontaktieren Sie uns für den Preis
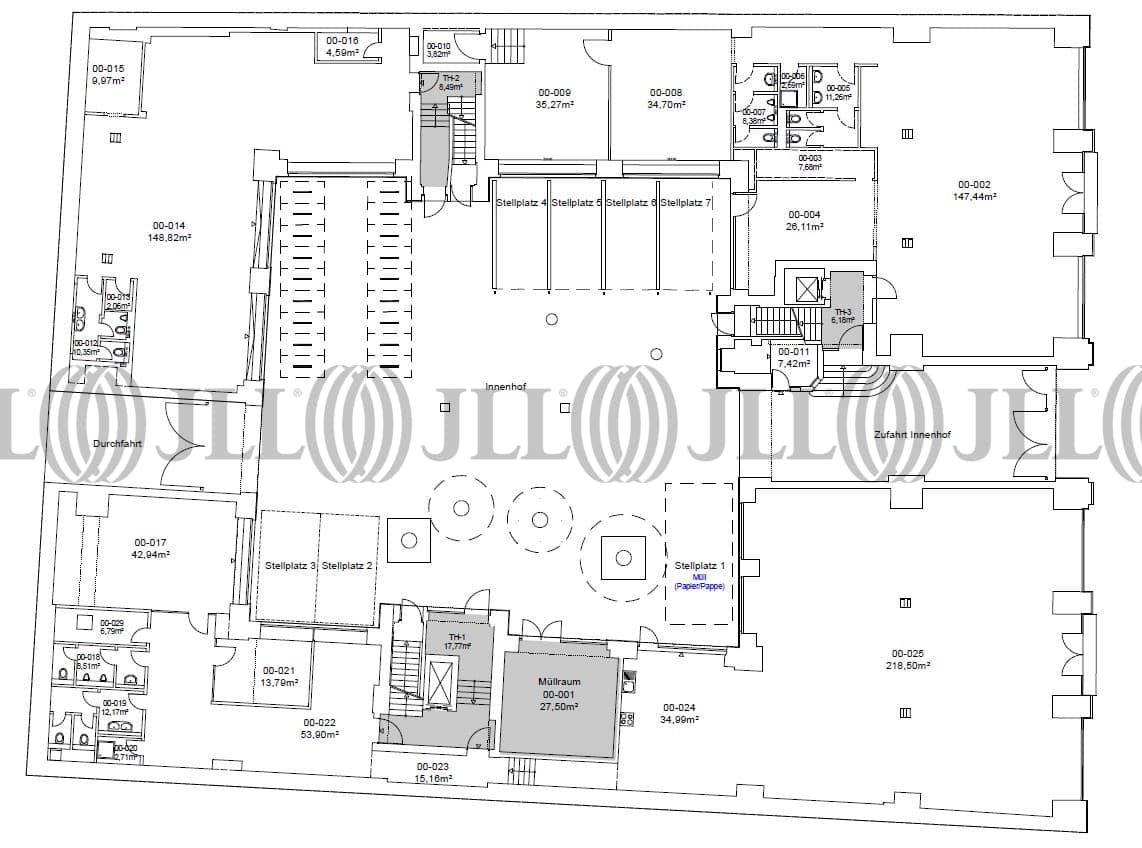
- Fläche285 - 3.234 m²
- VerfügbarkeitSofort
- Objekt
- Ausstattung
- Lage und Verkehrsanbindung
- Exposé herunterladen
- Ihr Kontakt
- Anfrage senden
Objekt
Der VICTORIAHOF wurde um 1900 von dem Architekten Kurt Berndt erbaut und weist die charakteristischen industriellen Merkmale auf, wie hohe Kappendecken und sichtbare Stahlkonstruktionsträger.
Zertifizierungen
Energieausweis
Für diese Liegenschaft liegt ein Verbrauchsausweis vom 2015-09-28 vom Eigentümer/Vermieter vor. Der wesentliche Energieträger der Liegenschaft ist KWK. Der Endenergieverbrauch Strom beträgt 30.00 kWh/(m²*a). Der Endenergieverbrauch Wärme beträgt 98.30 kWh/(m²*a).Verfügbare Fläche
Lage und Verkehrsanbindung
Das Objekt befindet sich im Berliner Bezirk Mitte im Bereich Mediaspree. Der Alexanderplatz, der Potsdamer Platz und die Friedrichstraße sind in nur wenigen Autominuten erreichbar. Attraktive Cafés und Restaurants sowie Nahversorgungsmöglichkeiten sind in fußläufiger Nähe gelegen.
- Hauptbahnhof, Berlin, Fahrzeit: 2 min
- U-Bahn, Heinrich-Heine-Straße, Linie U8, Gehzeit: 5 min
- Bus, Michaelkirchstraße, Linien165, 265, Gehzeit: 2 min
- Bundesautobahn, A 100, Fahrzeit: 20 min
- Flughafen, Berlin Brandenburg, Fahrzeit: 30 min
Ihr Kontakt

Alexandra Teich
Ihr Kontakt
Marktinformationen
Mietmarkt
Mitte, Berlin
siehe 176 passende MietobjekteErfahren Sie mehr
* Durchschnittspreis auf Grundlage historischer Transaktionen.







