Büros
ID B1983Provisionsfrei
Büroimmobilie - Berlin, Lichtenberg - B1983
Lichtenberg, 10365, Berlin, Berlin
10 € / m²
- Fläche438 - 1.321 m²
- VerfügbarkeitSofort
- Objekt
- Ausstattung
- Lage und Verkehrsanbindung
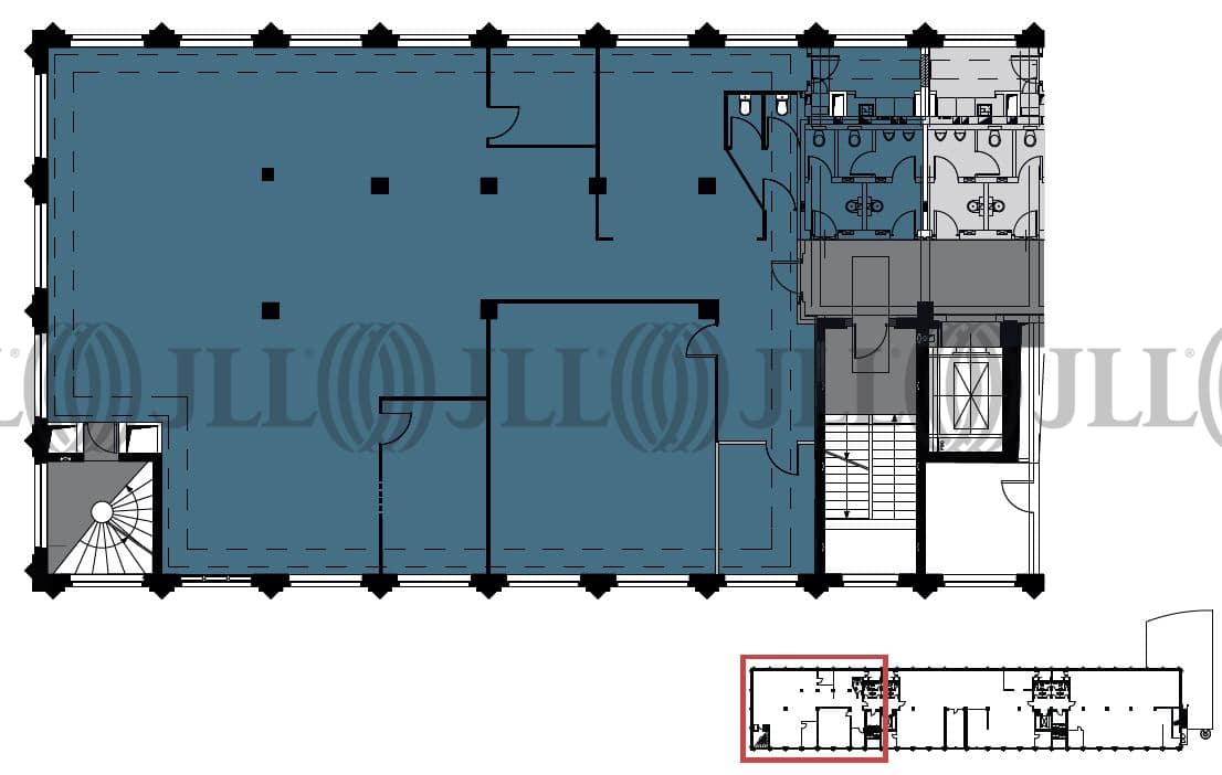
- Grundrisse
- Exposé herunterladen
- Ihr Kontakt
- Anfrage senden
Zertifizierungen
Energieausweis
Für diese Liegenschaft liegt ein Verbrauchsausweis vom 2014-04-29 vom Eigentümer/Vermieter vor. Der wesentliche Energieträger der Liegenschaft ist Fernwärme. Der Endenergieverbrauch Strom beträgt 35.00 kWh/(m²*a). Der Endenergieverbrauch Wärme beträgt 129.00 kWh/(m²*a).Verfügbare Fläche
Lage und Verkehrsanbindung
Das Objekt befindet sich im Bezirk Lichtenberg. Fußläufig oder durch eine Vielzahl von nahegelegenen Bus- und Tramlinien erreicht man in wenigen Minuten den S- und U-Bahnhof Frankfurter Allee.
- Hauptbahnhof, Berlin, Fahrzeit: 25 min
- U-Bahn, Frankfurter Allee, Linie U5, Gehzeit: 5 min
- Straßenbahn/Tram, Loeperplatz, Linien M10, M13, 16, 21, Gehzeit: 5 min
- Bus, Josef-Orlopp-Straße/ Vulkanstraße, Linie 240, Gehzeit: 3 min
- Bundesautobahn, A 100, Fahrzeit: 30 min
- Bundesautobahn, A 113, Fahrzeit: 30 min
- Flughafen, Berlin Brandenburg, Fahrzeit: 40 min
Ihr Kontakt

Alexandra Teich
Ihr Kontakt









