Büros
ID B1976Provisionsfrei
Büroimmobilie - Berlin, Neukölln - B1976
Neukölln, 12057, Berlin, Berlin
21 € / m²
- Fläche374 - 7.901 m²
- VerfügbarkeitSofort
- Objekt
- Ausstattung
- Lage und Verkehrsanbindung
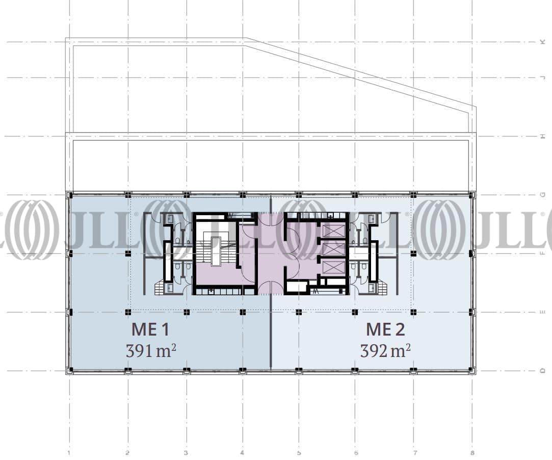
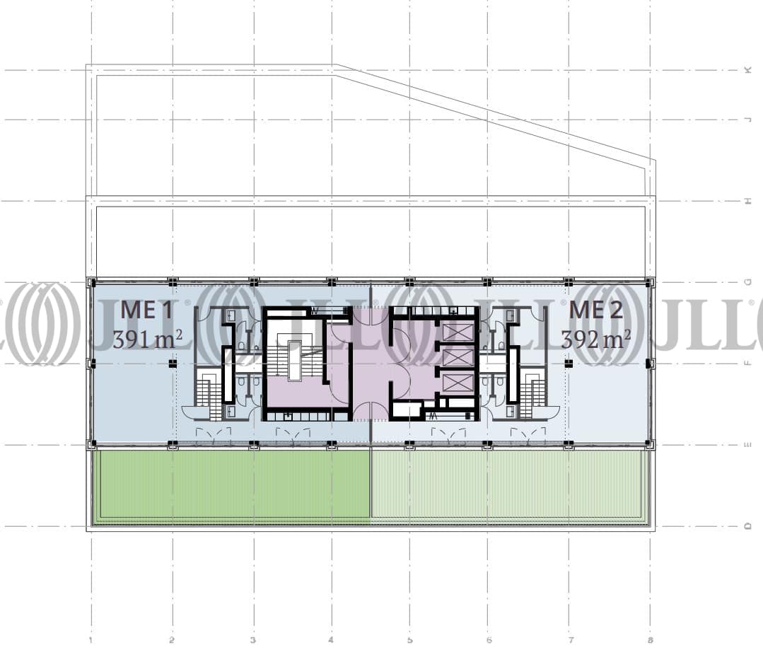
- Grundrisse
- Exposé herunterladen
- Ihr Kontakt
- Anfrage senden
Objekt
Das Objekt, direkt am Neuköllner Schifffahrtskanal gelegen, wurde als Arbeitswelt gestaltet, die höchsten Ansprüchen gerecht wird: Von klassischer Form, mit flexibel gestaltbaren Flächen und bestens ausgestattet. Neues Arbeiten auf elf großzügigen Etagen – im zukunftsweisenden Süden der Metropole und einer Toplage, die kaum zu glauben ist.
Zertifizierungen
Energieausweis
LEED: GoldFür diese Liegenschaft liegt ein Bedarfsausweis vom 12.07.2023 vom Eigentümer/Vermieter vor. Der wesentliche Energieträger der Liegenschaft ist Fernwärme. Der Endenergiebedarf Strom beträgt 25.00 kWh/(m²*a). Der Endenergiebedarf Wärme beträgt 47.00 kWh/(m²*a).
Verfügbare Fläche
Lage und Verkehrsanbindung
- Hauptbahnhof, Berlin, Fahrzeit: 30 min
- S-Bahn, Sonnenallee; Linien S41, S42, Gehzeit: 10 min
- Bus, Neuköllnische Brücke; Linien 246, 370, Gehzeit: 4 min
- Bundesautobahn, A 100, Fahrzeit: 10 min
- Bundesautobahn, A 113, Fahrzeit: 5 min
- Flughafen, Berlin Brandenburg, Fahrzeit: 20 min
Ihr Kontakt

Steve Ritt
Ihr Kontakt
Marktinformationen
Mietmarkt
Neukölln, Berlin
siehe 1 passende MietobjekteErfahren Sie mehr
* Durchschnittspreis auf Grundlage historischer Transaktionen.




