Büros
ID B1928Aktualisiert
Büroimmobilie - Berlin, Tiergarten - B1928
Tiergarten, 10785, Berlin, Berlin
Provisionspflichtig: bei Anmietung 3 Netto-Monatsmieten zzgl. gesetzlicher Umsatzsteuer.** der Wert kann je nach Vertragslaufzeit variieren.
18 € / m²
- Fläche511 m²
- VerfügbarkeitSofort
- Objekt
- Ausstattung
- Lage und Verkehrsanbindung
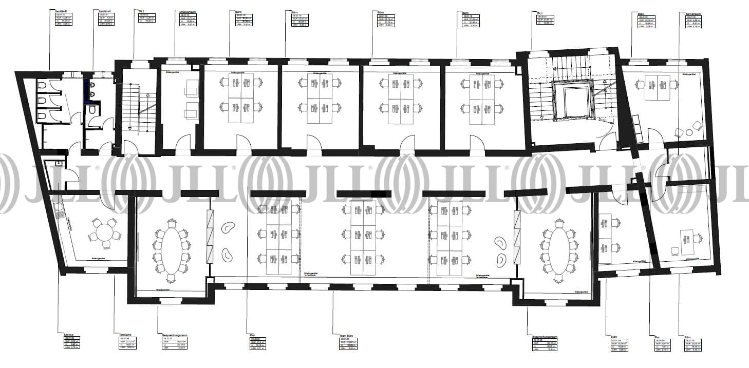
- Grundriss
- Exposé herunterladen
- Ihr Kontakt
- Anfrage senden
Objekt
Die Immobilie verfügt über einen attraktiven Eingangsbereich, der durch einen Wachdienst und Videoüberwachung gesichert ist. In den oberen Etagen bieten Terrassen einen attraktiven Blick auf das Wasser. Die Büroflächen sind hochwertig ausgestattet und verfügen über einen außen- sowie innenliegenden Sonnenschutz. Flexible Grundrisse ermöglichen eine individuelle Gestaltung der Arbeitsbereiche. Dank einer jüngsten Komplettsanierung im Jahr 2019 präsentiert sich das Gebäude in einem neuwertigen Zustand.
Zertifizierungen
Energieausweis
Für diese Liegenschaft liegt ein Bedarfsausweis vom 24.04.2024 vom Eigentümer/Vermieter vor. Die wesentlichen Energieträger der Liegenschaft sind Erdgas schwer, Strom. Der Endenergiebedarf Strom beträgt 11 kWh/(m²*a). Der Endenergiebedarf Wärme beträgt 162 kWh/(m²*a).Verfügbare Fläche
Lage und Verkehrsanbindung
Das Objekt befindet sich in einer attraktiven und zentralen Lage im Berliner Bezirk Tiergarten, direkt an einem Kanal. Diese bevorzugte Wasserlage bietet ein ruhiges und zugleich inspirierendes Arbeitsumfeld unweit des politischen und kulturellen Zentrums der Hauptstadt. In der unmittelbaren Umgebung befindet sich der Große Tiergarten, der als größte Parkanlage Berlins zu Pausen und Spaziergängen einlädt. Einkaufsmöglichkeiten und Restaurants befinden sich in der Nähe.
- Hauptbahnhof, Berlin, Fahrzeit: 10 min
- U-Bahn, Nollendorfplatz, Linien U1,U2, U3, U4, Gehzeit: 13 min
- Bus, Lützowplatz, Linien M29, 100, 106, 187, Gehzeit: 6 min
- Bundesautobahn, A 100, Fahrzeit: 20 min
- Flughafen, Berlin Brandenburg, Fahrzeit: 30 min
Ihr Kontakt

Alexandra Teich
Ihr Kontakt
Marktinformationen
Mietmarkt
Tiergarten, Berlin
siehe 1 passende MietobjekteErfahren Sie mehr
* Durchschnittspreis auf Grundlage historischer Transaktionen.














