Büros
ID B1925Provisionsfrei
Aktualisiert
Büroimmobilie - Berlin, Mitte - B1925
Mitte, 10117, Berlin, Berlin
22 € / m²
- Fläche167 - 427 m²
- VerfügbarkeitSofort
- Objekt
- Ausstattung
- Lage und Verkehrsanbindung
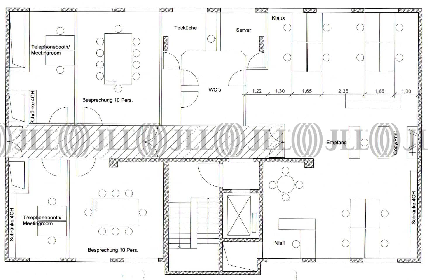
- Grundrisse
- Exposé herunterladen
- Ihr Kontakt
- Anfrage senden
Zertifizierungen
Energieausweis
Für diese Liegenschaft liegt ein Verbrauchsausweis vom 10.07.2017 vom Eigentümer/Vermieter vor. Die wesentlichen Energieträger der Liegenschaft sind Heizwerk, fossil, Strom. Der Endenergieverbrauch Strom beträgt 57.30 kWh/(m²*a). Der Endenergieverbrauch Wärme beträgt 88.10 kWh/(m²*a).Verfügbare Fläche
Lage und Verkehrsanbindung
Das Objekt befindet sich im Berliner Bezirk Mitte, an der Nahtstelle zwischen dem Ost- und Westteil der Stadt. In unmittelbarer Nachbarschaft befinden sich die Friedrichstraße und der Checkpoint Charlie. Das Axel-Springer-Haus, der Gropius-Bau, der Preußische Landtag und der historische Gendarmenmarkt sind in wenigen Gehminuten zu erreichen.
- Flughafen, Berlin Brandenburg, Fahrzeit: 40 min
- Bundesautobahn, A 100, Fahrzeit: 25 min
- Bundesautobahn, A 113, Fahrzeit: 30 min
- Bus, Kochstraße/ Checkpoint Charlie, Linie M29, Gehzeit: 5 min
- U-Bahn, Kochstraße/ Checkpoint Charlie, Linie U6, Gehzeit: 5 min
Ihr Kontakt

Chiara Costa Jacinto
Ihr Kontakt
Marktinformationen
Mietmarkt
Mitte, Berlin
Gew. Ø-Miete
22 € / m²
siehe 167 passende MietobjekteErfahren Sie mehr* Durchschnittspreis auf Grundlage historischer Transaktionen.





