Büros
ID B1911Provisionsfrei
Büroimmobilie - Hennigsdorf - B1911
16761, Hennigsdorf, Brandenburg
8,50 € / m²
- Fläche238 - 3.023 m²
- VerfügbarkeitSofort
- Objekt
- Ausstattung
- Lage und Verkehrsanbindung
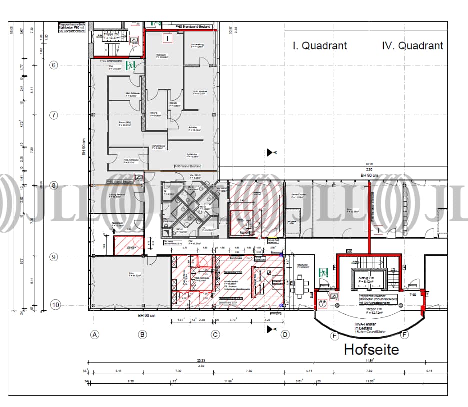
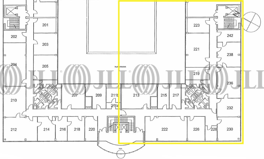
- Grundrisse
- Exposé herunterladen
- Ihr Kontakt
- Anfrage senden
Objekt
Dieses repräsentative Büro- und Geschäftshausensemble besticht durch seine moderne Architektur und eine markante, blau schimmernde Glasfassade, die ihm einen hohen Wiedererkennungswert verleiht. Die flexiblen und effizient gestalteten Grundrisse ermöglichen vielfältige Bürokonzepte, von Einzel- bis zu Großraumbüros, und lassen sich individuell an die Bedürfnisse der Mieter anpassen. Helle, lichtdurchflutete Räume und eine hochwertige technische Ausstattung schaffen eine angenehme und produktive Arbeitsatmosphäre. Das campusähnliche Areal mit seinen gepflegten Grünanlagen fördert den Austausch und bietet den Mitarbeitern ein attraktives Arbeitsumfeld. Ausreichend vorhandene Parkplätze auf dem Gelände runden das professionelle Gesamtbild dieser Gewerbeimmobilie ab.
Verfügbare Fläche
Lage und Verkehrsanbindung
Der Standort befindet sich in einem etablierten und dynamischen Gewerbegebiet in Hennigsdorf, nordwestlich der Berliner Stadtgrenze. Die verkehrstechnische Anbindung ist exzellent: Die Autobahn A111 ist in wenigen Minuten erreichbar und bietet eine schnelle Verbindung sowohl in die Berliner Innenstadt als auch zum Berliner Ring (A10). Ebenso ist die Anbindung an den öffentlichen Nahverkehr durch die Nähe zum S- und Regionalbahnhof gesichert, welcher eine direkte und zügige Verbindung ins Zentrum der Hauptstadt gewährleistet. Das Umfeld ist von zahlreichen Technologie- und Dienstleistungsunternehmen geprägt. Alle wichtigen Einrichtungen des täglichen Bedarfs, wie Einkaufsmöglichkeiten und gastronomische Angebote, sind in der unmittelbaren Umgebung vorhanden und bequem zu erreichen. Die Nähe zur Havel bietet zudem attraktive Möglichkeiten zur Naherholung.
- Bahnhof, Hennigsdorf; Linien RB20, RB55, RE6, Gehzeit: 9 min
- S-Bahn, Hennigsdorf; Linie S25, Gehzeit: 9 min
- Bus, Henningsdorf/ Neuendorfstraße; Linien 807, 808, 809, Gehzeit: 5 min
- Bundesautobahn, A 100, Fahrzeit: 30 min
- Flughafen, Berlin Brandenburg, Fahrzeit: 60 min
Ihr Kontakt

Alexandra Teich
Ihr Kontakt





