Büros
ID B1865Provisionsfrei
Aktualisiert
Büroimmobilie - Berlin, Charlottenburg - B1865
Charlottenburg, 10587, Berlin, Berlin
10 € / m²
- Fläche165 - 9.100 m²
- VerfügbarkeitSofort
- Objekt
- Ausstattung
- Lage und Verkehrsanbindung
- Grundrisse
- Exposé herunterladen
- Ihr Kontakt
- Anfrage senden
Objekt
Im charakteristischen Stil der Gewerbearchitektur des. 19. Jahrhunderts errichtet, waren die Hallen und Gebäude dieses Gewerbeshofs in Berlin-Charlottenburg einst Teil einer Textil- und Maschinenfabrik. Bereits vor einigen Jahren wurden die markanten Altbauten mit breiten, historischen Klinkerfronten durch zwei moderne Bürohäuser ergänzt. Die aktuelle Projektentwicklungen rundet das Ensemble ab und vervollständigt den Hof auf besondere Art und Weise.
Es entstehen zwei neue Gebäude (Holzbinderkonstruktion mit freistehender seitlicher Galerie sowie ein neuer Baustein mit moderner Glasfassade). Des Weiteren werden drei der geschichtsträchtigen Gebäude aufwendig revitalisiert und auf zeitgemäßes, hochwertiges Niveau gebracht.
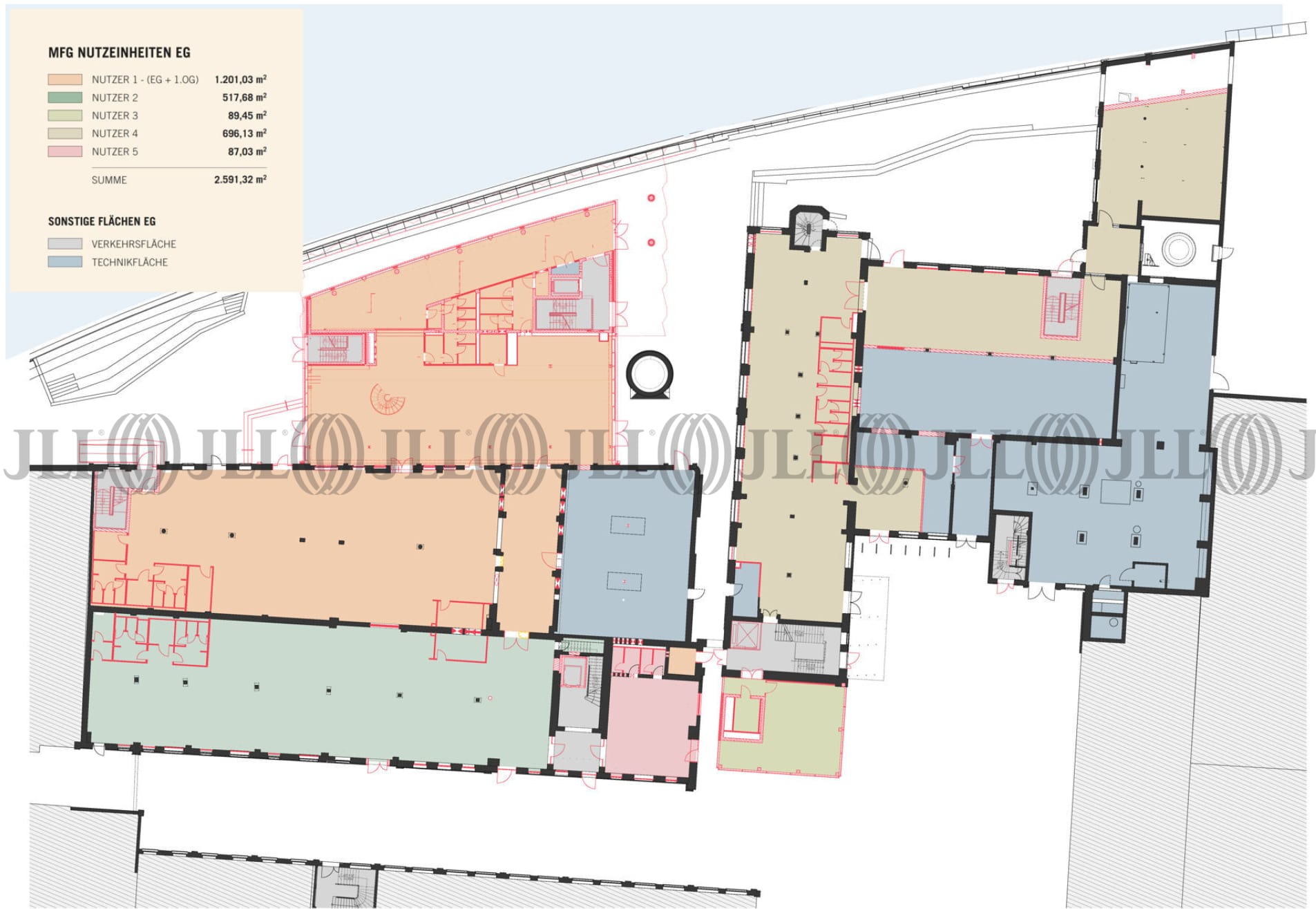
Die Flächen werden „Open Space“ gehalten, der Grundrisse wird flexibel und individuell auf Mieterwunsch angepasst, hochqualitative Einzelbüros, Neben- und Besprechungsräume sind möglich. Die Gebäudeteile Friedrich, Oskar, Fritz und Julius können miteinander verbunden oder autark angemietet werden und bieten somit ideale Voraussetzungen für Office- oder Dienstleistungsnutzung aus allen Branchen.
Es entstehen zwei neue Gebäude (Holzbinderkonstruktion mit freistehender seitlicher Galerie sowie ein neuer Baustein mit moderner Glasfassade). Des Weiteren werden drei der geschichtsträchtigen Gebäude aufwendig revitalisiert und auf zeitgemäßes, hochwertiges Niveau gebracht.
Die Flächen werden „Open Space“ gehalten, der Grundrisse wird flexibel und individuell auf Mieterwunsch angepasst, hochqualitative Einzelbüros, Neben- und Besprechungsräume sind möglich. Die Gebäudeteile Friedrich, Oskar, Fritz und Julius können miteinander verbunden oder autark angemietet werden und bieten somit ideale Voraussetzungen für Office- oder Dienstleistungsnutzung aus allen Branchen.
Zertifizierungen
Energieausweis
WIREDSCORE: PlatinumVerfügbare Fläche
Lage und Verkehrsanbindung
Der Standort befindet sich in einem dynamischen Geschäftsviertel im Berliner Bezirk Charlottenburg, in unmittelbarer Nähe zur Spree. Dieses Areal hat sich zu einem Anziehungspunkt für Unternehmen entwickelt und profitiert von der Nähe zu bedeutenden akademischen und Forschungseinrichtungen wie der Technischen Universität und der Universität der Künste. Die Umgebung ist geprägt von einer Mischung aus Gewerbe, Wissenschaft und Kultur. Die Anbindung an den öffentlichen Nahverkehr ist durch ein dichtes Netz von Bussen, S- und U-Bahnen exzellent, wodurch andere Stadtzentren schnell erreichbar sind. Der nahegelegene Bahnhof Zoologischer Garten bietet zudem Anschluss an den Regionalverkehr. Die City West befindet sich in einem stetigen Aufschwung, was sich auch in einer regen Bautätigkeit und der Ansiedlung von Banken, Versicherungen und Finanzdienstleistern in der Nachbarschaft zeigt.
- Hauptbahnhof, Berlin, Fahrzeit: 10 min
- U-Bahn, Turmstraße, Gehzeit: 15 min
- Bus, Franklinstraße; Linien 101, 245, Gehzeit: 2 min
- Bundesautobahn, A 100, Fahrzeit: 10 min
- Flughafen, Berlin Brandenburg, Fahrzeit: 40 min
Ihr Kontakt

Tobias Rodewald
Ihr Kontakt
Marktinformationen
Mietmarkt
Charlottenburg, Berlin
Gew. Ø-Miete
10 € / m²
siehe 101 passende MietobjekteErfahren Sie mehr* Durchschnittspreis auf Grundlage historischer Transaktionen.

















