Büros
ID B1848Provisionsfrei
Aktualisiert
Büroimmobilie - Berlin, Mitte - B1848
Mitte, 10115, Berlin, Berlin
26 € / m²
- Fläche305 m²
- VerfügbarkeitSofort
- Objekt
- Ausstattung
- Lage und Verkehrsanbindung
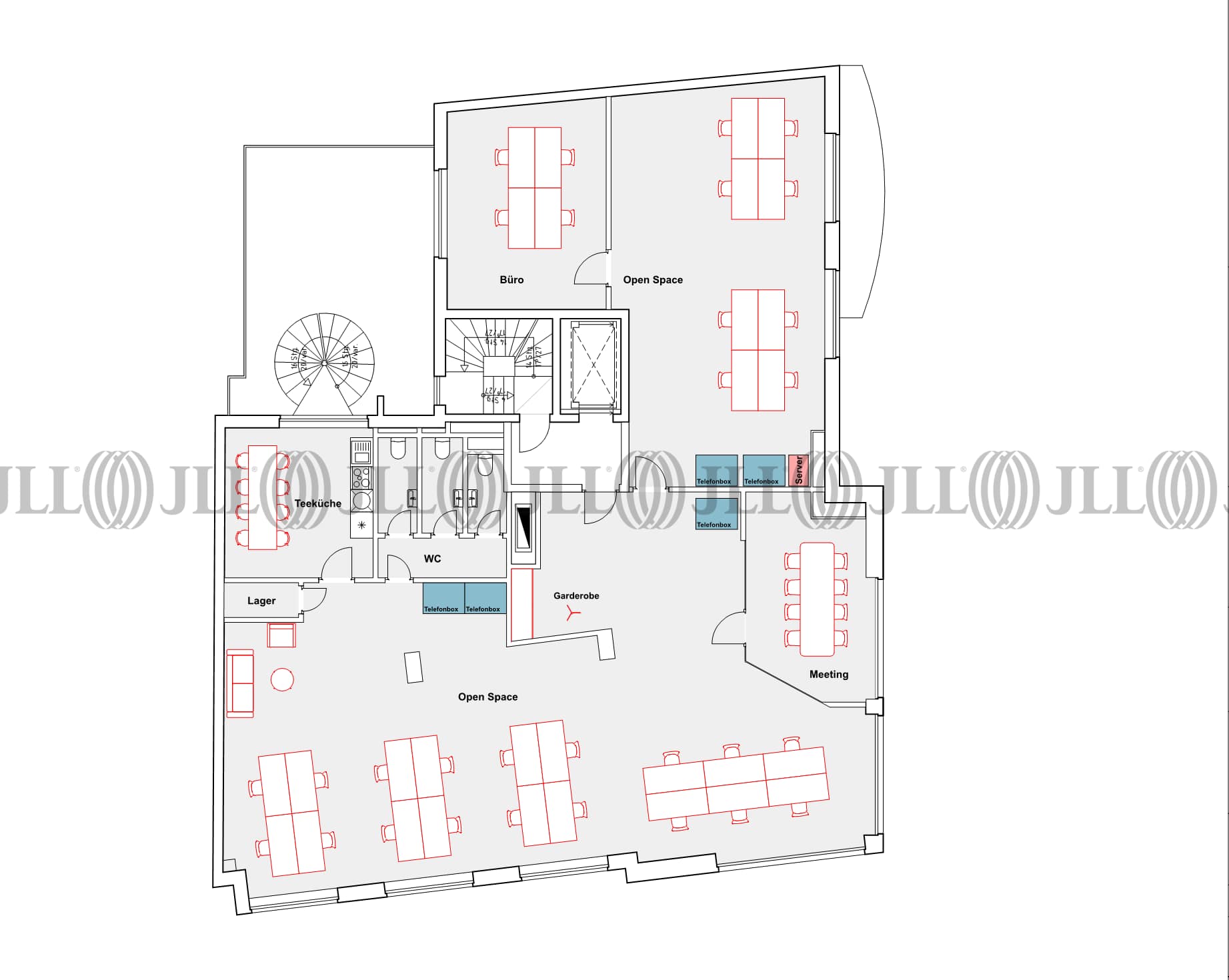
- Grundriss
- Exposé herunterladen
- Ihr Kontakt
- Anfrage senden
Objekt
Dieses moderne Bürogebäude, errichtet im Jahr 1995, befindet sich in einem neuwertigen Zustand. Es bietet eine barrierefreie Erschließung mittels eines Personenaufzugs. Die Büroflächen sind mit einer modernen Klimaanlage ausgestattet, die für ein angenehmes Arbeitsklima sorgt. Eine strukturierte CAT-7-Verkabelung gewährleistet eine zeitgemäße und leistungsfähige IT-Infrastruktur. Ergänzt wird die Ausstattung durch eine hochwertige Küche. Bei Bedarf können die Flächen auch voll möbliert angemietet werden, was unter anderem Schreibtische, Stühle, Monitore und Telefonboxen umfassen kann. Individuelle Ausbauwünsche der Mieter können nach Absprache berücksichtigt werden.
Zertifizierungen
Energieausweis
Für diese Liegenschaft liegt ein Verbrauchsausweis vom 18.11.2013 vom Eigentümer/Vermieter vor. Der wesentliche Energieträger der Liegenschaft ist Heizwerk, fossil. Der Endenergieverbrauch Strom beträgt 112.50 kWh/(m²*a). Der Endenergieverbrauch Wärme beträgt 112.50 kWh/(m²*a).Verfügbare Fläche
Lage und Verkehrsanbindung
Das Objekt befindet sich in einer äußerst zentralen und geschichtsträchtigen Lage im Berliner Bezirk Mitte. Die Umgebung ist geprägt von einer dynamischen Mischung aus historischen Bauten und moderner Architektur. Einst ein bedeutender Industriestandort, hat sich das Viertel zu einem lebendigen und kreativen Quartier gewandelt. In unmittelbarer Nachbarschaft befindet sich die markante Zentrale des Bundesnachrichtendienstes.1 Die Anbindung an den öffentlichen Nahverkehr ist exzellent; U-Bahn, S-Bahn und Tram sind in wenigen Minuten fußläufig erreichbar und bieten schnelle Verbindungen zum Hauptbahnhof und zum Flughafen. Zahlreiche kulturelle Einrichtungen, Restaurants, Cafés und Einkaufsmöglichkeiten befinden sich in der direkten Umgebung und tragen zur hohen Attraktivität des Standortes bei.
- Hauptbahnhof, Berlin, Gehzeit: 15 min
- U-Bahn, Naturkundemuseum; Linie U6, Gehzeit: 3 min
- Bus, Berlin Nordbahnhof; Linien12, 247, Gehzeit: 10 min
- Bundesautobahn, A 100, Fahrzeit: 10 min
- Bundesautobahn, A 113, Fahrzeit: 30 min
- Flughafen, Berlin Brandenburg, Fahrzeit: 40 min
Ihr Kontakt

Chiara Costa Jacinto
Ihr Kontakt
Marktinformationen
Mietmarkt
Mitte, Berlin
Gew. Ø-Miete
26 € / m²
siehe 170 passende MietobjekteErfahren Sie mehr* Durchschnittspreis auf Grundlage historischer Transaktionen.












