Büros
ID B1846Provisionsfrei
Aktualisiert
Büroimmobilie - Leipzig, Seehausen - B1846
Seehausen, 04356, Leipzig, Sachsen
Kontaktieren Sie uns für den Preis
- Fläche365 - 2.856 m²
- VerfügbarkeitSofort
- Objekt
- Ausstattung
- Lage und Verkehrsanbindung
- Grundrisse
- Exposé herunterladen
- Ihr Kontakt
- Anfrage senden
Objekt
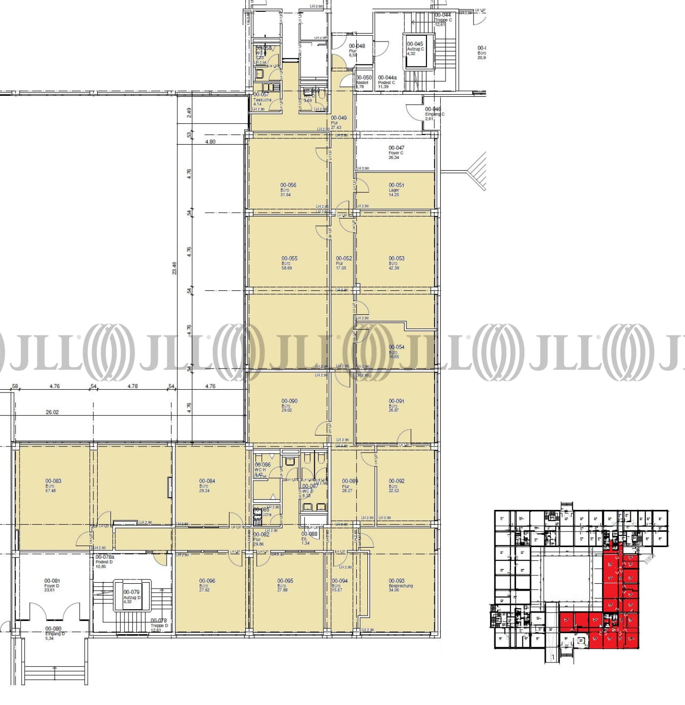
Der Komplex besteht aus vier Gebäuden und bietet insgesamt eine Fläche von etwa 50.000 m² für Büro- und Servicezwecke. Es gibt Mieteinheiten in verschiedenen Größenordnungen, beginnend bei etwa 365 m². Einige dieser Flächen sind noch im unausgebauten Zustand, was Ihnen die Möglichkeit gibt, die Raumstruktur flexibel und nach Ihren individuellen Vorstellungen anzupassen.
Der finale Mietpreis richtet sich nach den gewünschten Grundrissanpassungen, mieterspezifischen Ausbauwünschen und der Vertragslaufzeit.
Der finale Mietpreis richtet sich nach den gewünschten Grundrissanpassungen, mieterspezifischen Ausbauwünschen und der Vertragslaufzeit.
Zertifizierungen
Energieausweis
Für diese Liegenschaft liegt ein Bedarfsausweis vom 15.01.2024 vom Eigentümer/Vermieter vor. Der wesentliche Energieträger der Liegenschaft ist Fernwärme. Der Endenergiebedarf Strom beträgt 20,3 kWh/(m²*a). Der Endenergiebedarf Wärme beträgt 49,0 kWh/(m²*a).Verfügbare Fläche
Lage und Verkehrsanbindung
Die Büroobjekte wurden Mitte der 1990-iger Jahre errichtet. Der Komplex befindet sich in verkehrsgünstiger Lage an der Autobahn A 14. Durch die exponierte Lage ist auch die Innenstadt über die vierspurige Bundesstraße B 2 sehr gut erreichbar. Die Liegenschaft ist darüber hinaus an den öffentlichen Personennahverkehr angebunden. Die “Neue Messe” liegt ca. 5 Gehminuten entfernt. Der Flughafen „Leipzig-Halle” sowie das “Schkeuditzer Kreuz” sind über die Autobahn in ca. 10 Minuten erreichbar.
- Flughafen, Leipzig/Halle, Fahrzeit: 12 min
- Bundesautobahn, A 14, Fahrzeit: 4 min
- Bundesautobahn, A 9, Fahrzeit: 14 min
- Bundesstraße, B 2, Fahrzeit: 3 min
Ihr Kontakt

Kay Förster
Ihr Kontakt



