Büros
ID B1824Provisionsfrei
Büroimmobilie - Berlin, Alt-Treptow - B1824
Alt-Treptow, 12435, Berlin, Berlin
Kontaktieren Sie uns für den Preis
- Fläche178 - 7.553 m²
- VerfügbarkeitSofort
- Objekt
- Ausstattung
- Lage und Verkehrsanbindung
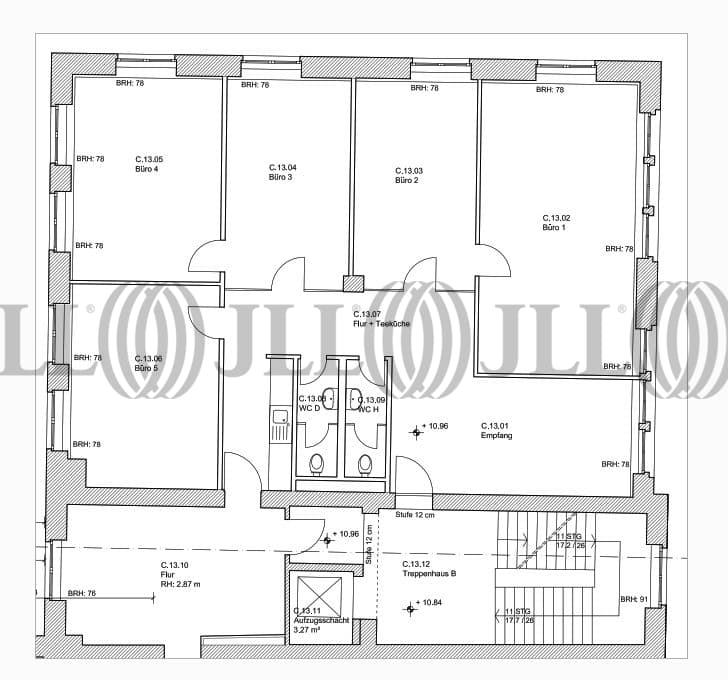
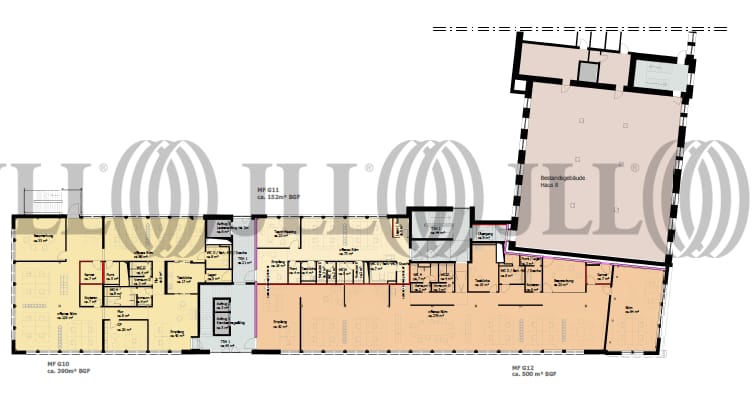
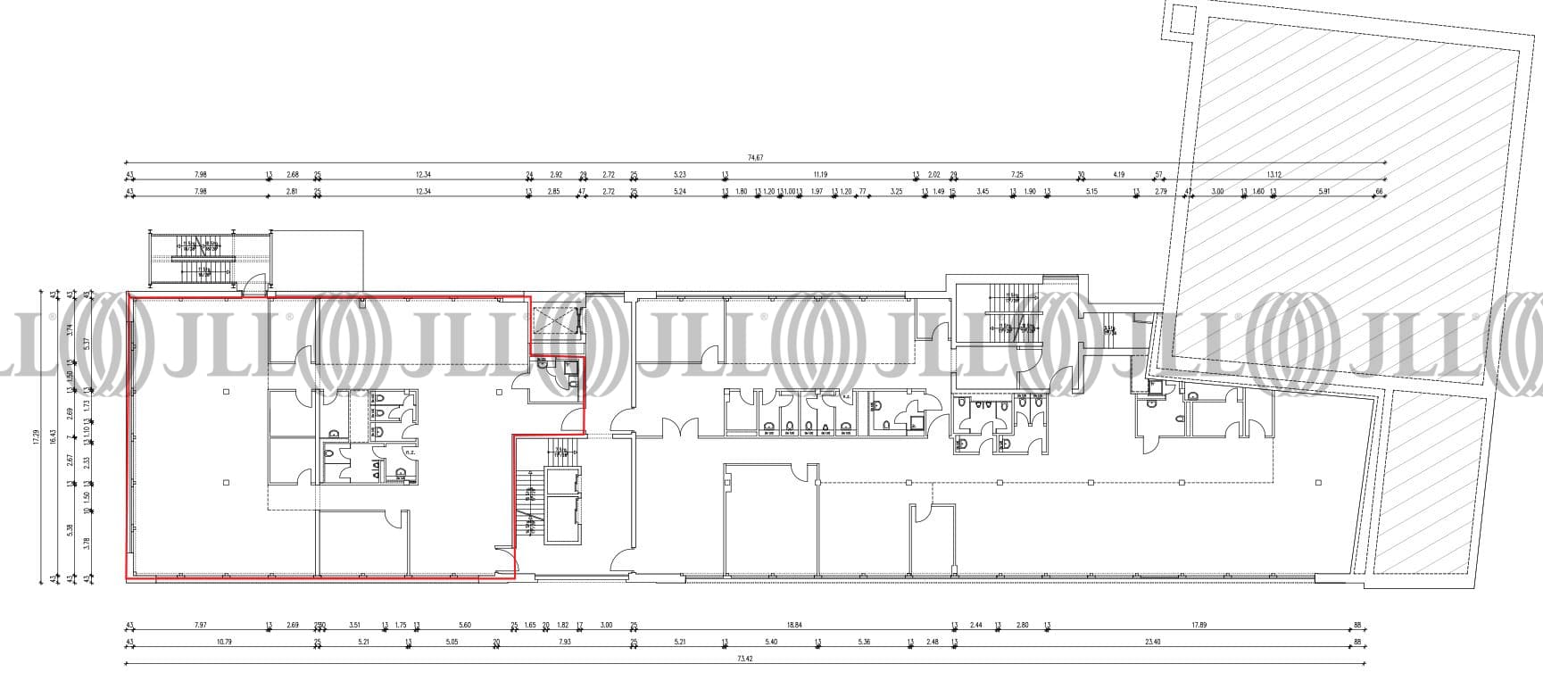
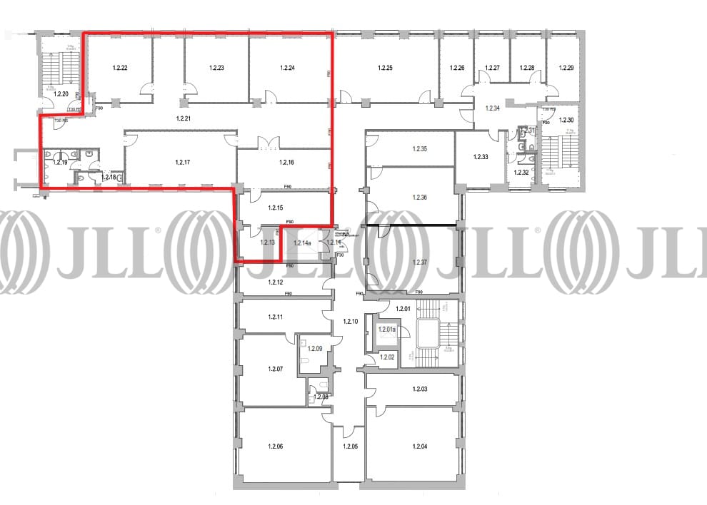
- Grundrisse
- Exposé herunterladen
- Ihr Kontakt
- Anfrage senden
Objekt
Im Bouché Gewerbepark finden Sie für jede Anforderung, ob Büro, Ateliers, Lager, oder Fertigung, den richtigen Rahmen. Das Gelände umfasst ein 27.000 qm großes, voll erschlossenes Gebiet. Notwendige Veränderungen sind bei Expansion problemlos möglich. Alle Firmen vom Existenzgründer, bis zum mittelständischen Unternehmen mieten einen zukunftssicheren Standort - über 80 ansässige Firmen unterschiedlichster Branchen sind bereits vom Standort überzeugt.
Zertifizierungen
Energieausweis
Für diese Liegenschaft liegt ein Verbrauchsausweis vom 2011-04-11 vom Eigentümer/Vermieter vor. Der wesentliche Energieträger der Liegenschaft ist Erdgas schwer. Der Endenergieverbrauch Strom beträgt 63.00 kWh/(m²*a). Der Endenergieverbrauch Wärme beträgt 102.00 kWh/(m²*a).Verfügbare Fläche
Lage und Verkehrsanbindung
Der Bouché Gewerbepark in Berlin-Treptow ist zwischen den Stadtbezirken Kreuzberg und Friedrichshain gelegen. Es ist ein unverwechselbares Industrie-Ensemble für Büro-, Atelier-, Produktion- und Dienstleistungsnutzung.
- Flughafen, Berlin Brandenburg, Fahrzeit: 25 min
- Bundesautobahn, A 100, Fahrzeit: 15 min
- Bundesautobahn, A 113, Fahrzeit: 15 min
- Bundesstraße, B 96 a, Fahrzeit: 2 min
- Bus, Eichenstr./ Puschkinallee, Linien 104, 165, Gehzeit: 4 min
- Hauptbahnhof, Berlin, Fahrzeit: 30 min
- S-Bahn, Treptower Park, Linien S8, S9, S41, S42, S45. S46, Gehzeit: 10 min
Ihr Kontakt

Tobias Rodewald
Ihr Kontakt















