Büros
ID B1819Provisionsfrei
Büroimmobilie - Berlin, Wilmersdorf - B1819
Wilmersdorf, 10713, Berlin, Berlin
16 € / m²
- Fläche165 - 1.368 m²
- VerfügbarkeitSofort
- Objekt
- Ausstattung
- Lage und Verkehrsanbindung
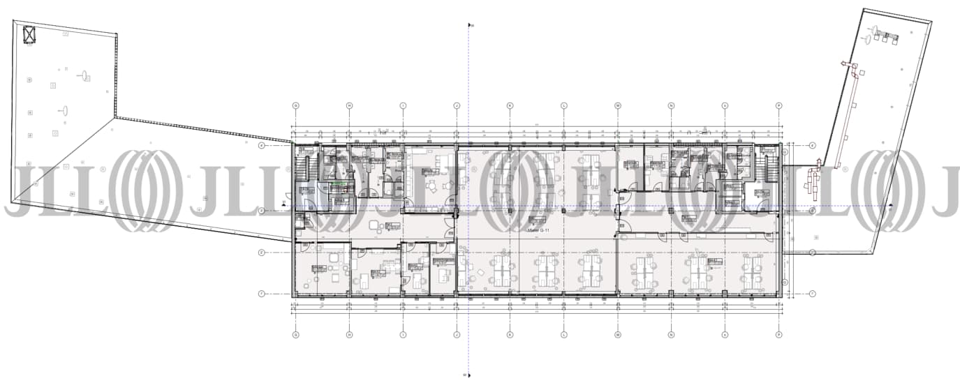
- Grundrisse
- Exposé herunterladen
- Ihr Kontakt
- Anfrage senden
Objekt
Dieses repräsentative Bürohochhaus, das architektonisch in ein belebtes Einkaufszentrum integriert ist, bietet moderne und flexible Arbeitswelten. Mit seiner markanten Glasfassade, die sich über mehr als zehn Stockwerke erstreckt, setzt das Gebäude ein architektonisches Zeichen. Die Büroflächen zeichnen sich durch effiziente und anpassungsfähige Grundrisse aus, die eine individuelle Raumaufteilung für verschiedenste Unternehmenskonzepte ermöglichen. Großzügige Fensterfronten sorgen für helle, lichtdurchflutete Arbeitsbereiche und bieten in den oberen Etagen einen beeindruckenden Panoramablick über die Dächer der Stadt. Eine zeitgemäße technische Ausstattung, einschließlich Klimatisierung und schneller Personenaufzüge, gewährleistet einen hohen Arbeitskomfort. Den Mietern stehen zudem Parkmöglichkeiten in der hauseigenen Tiefgarage zur Verfügung, was den Arbeitsweg erheblich erleichtert.
Zertifizierungen
Energieausweis
Für diese Liegenschaft liegt ein Bedarfsausweis vom 2015-01-05 vom Eigentümer/Vermieter vor. Die wesentlichen Energieträger der Liegenschaft sind Strom,KWK,Heizwerk, fossil. Der Endenergiebedarf Strom beträgt 32.40 kWh/(m²*a). Der Endenergiebedarf Wärme beträgt 302.80 kWh/(m²*a).Verfügbare Fläche
Lage und Verkehrsanbindung
Der Standort befindet sich in einer der begehrtesten und etabliertesten Lagen im Westen Berlins, im Herzen von Wilmersdorf. Das direkte Umfeld ist geprägt von einer sehr lebhaften und urbanen Atmosphäre mit einer hervorragenden Infrastruktur für den täglichen Bedarf. Durch die direkte Anbindung an ein großes Shoppingcenter finden sich zahlreiche Einzelhandelsgeschäfte, Supermärkte und ein vielfältiges gastronomisches Angebot unmittelbar vor der Tür. Die Anbindung an den öffentlichen Nahverkehr ist exzellent: Eine U-Bahn-Station der Linie U7 sowie diverse Buslinien sind fußläufig in wenigen Augenblicken erreichbar und garantieren eine schnelle Verbindung in alle Teile der Hauptstadt. Die Stadtautobahn A100 ist ebenfalls in kurzer Fahrzeit zu erreichen. Das Viertel bietet eine hohe Lebensqualität mit charmanten Wohnstraßen und der Nähe zum weitläufigen Volkspark Wilmersdorf, der zu Pausen und sportlichen Aktivitäten einlädt.
- U-Bahn, Blissestraße, Linie U7, Gehzeit: 1 min
- Bus, U Blissestraße/ Uhlandstraße, Linien 104, 249, 310, Gehzeit: 1 min
- Bundesautobahn, A 100, Fahrzeit: 20 min
- Bundesautobahn, A 113, Fahrzeit: 30 min
- Flughafen, Berlin Brandenburg, Fahrzeit: 40 min
Ihr Kontakt

Alexandra Teich
Ihr Kontakt
Marktinformationen
Mietmarkt
Wilmersdorf, Berlin
siehe 0 passende MietobjekteErfahren Sie mehr
* Durchschnittspreis auf Grundlage historischer Transaktionen.


