Büros
ID B1816Provisionsfrei
Büroimmobilie - Berlin, Tempelhof - B1816
Tempelhof, 12099, Berlin, Berlin
9,50 € / m²
- Fläche186 - 1.142 m²
- VerfügbarkeitSofort
- Objekt
- Ausstattung
- Lage und Verkehrsanbindung
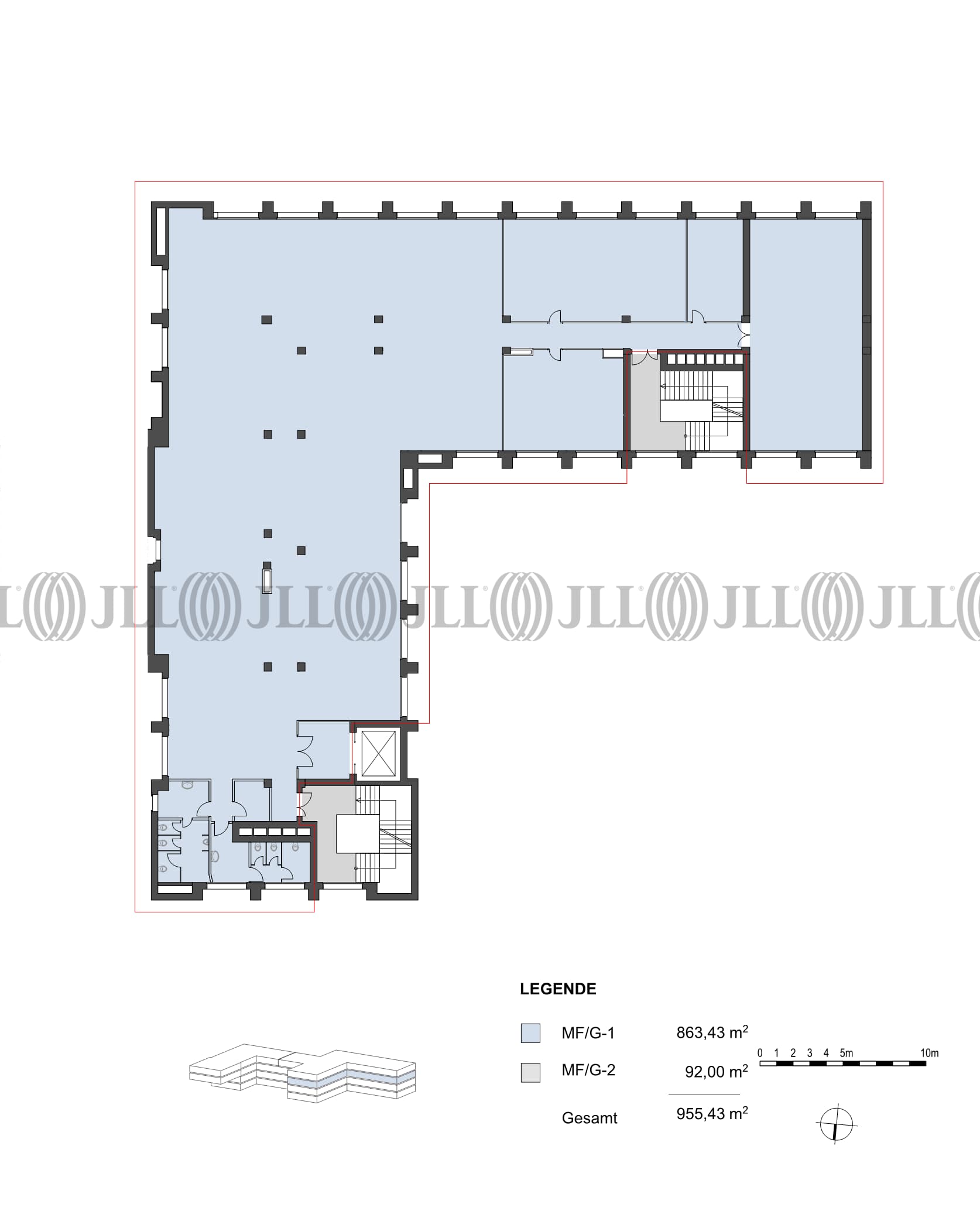
- Grundriss
- Exposé herunterladen
- Ihr Kontakt
- Anfrage senden
Objekt
Das Ensemble, bestehend aus einem mehrgeschossigen Bürogebäude und zugehörigen Produktions- sowie Lagerflächen, präsentiert sich als ein umfangreiches Industrieareal. Die zwischen 1934 und 1984 errichteten Gebäude vereinen klassische Industriearchitektur mit modernen Produktionseinheiten. In den 1990er Jahren fand eine umfassende Modernisierung aller Gebäude statt. Die Büroflächen zeichnen sich durch helle und funktionale Räume aus, die durch gemeinschaftlich nutzbare Bereiche und Konferenzräume ergänzt werden. Eine flexible Raumaufteilung ist ebenso möglich wie ein Ausbau nach den Wünschen des Mieters.
Zertifizierungen
Energieausweis
Für diese Liegenschaft liegt ein Bedarfsausweis vom 09.09.2020 vom Eigentümer/Vermieter vor. Die wesentlichen Energieträger der Liegenschaft sind Gas, Strom. Endenergiebedarf: 219.40000 kWh/(m²*a)Verfügbare Fläche
Lage und Verkehrsanbindung
Gelegen in einem Gewerbegebiet im Ortsteil Tempelhof, profitiert der Standort von einer ruhigen und dennoch gut vernetzten Lage. Er befindet sich direkt am Teltowkanal und bietet eine gute Anbindung an den öffentlichen Nahverkehr durch eine Buslinie sowie den U-Bahnhof Ullsteinstraße. Die Stadtautobahn A100 ist in wenigen Autominuten erreichbar. In fußläufiger Entfernung liegt das Einkaufszentrum Tempelhofer Hafen, das eine Vielzahl an Einkaufsmöglichkeiten und gastronomischen Angeboten bereithält. Die Umgebung ist geprägt von einer Mischung aus Gewerbe und urbanem Leben, was den Standort für Unternehmen attraktiv macht.
- Flughafen, Berlin Brandenburg, Fahrzeit: 25 min
- Bundesautobahn, A 100, Fahrzeit: 10 min
- Bundesautobahn, B 96, Fahrzeit: 3 min
- Hauptbahnhof, Berlin, Fahrzeit: 20 min
- U-Bahn, Ullsteinstraße; Linie U6, Gehzeit: 10 min
- Bus, Colditzstr./ Ullsteinstr.; Linie 170, Gehzeit: 5 min
Ihr Kontakt

Tobias Rodewald
Ihr Kontakt
Marktinformationen
Mietmarkt
Tempelhof, Berlin
siehe 4 passende MietobjekteErfahren Sie mehr
* Durchschnittspreis auf Grundlage historischer Transaktionen.





